Регистрация

В новом квартале на Ангарской продают квартиры, в том числе и с отделкой. Почем?

06.08.2025 22437

Около четырех лет назад территорию бывшей исправительной колонии в Заводском районе начал осваивать госзастройщик. Сегодня квартал в районе улицы Ангарской не узнать. Свежие высотки активно заселяются и обживаются. Кому-то квартиры достались сразу с отделкой, а некоторые новоселы уже успели сделать ремонты. Мы посмотрели, какое жилье тут сейчас продается. Среди вариантов есть как готовые квартиры, так и метры «с голыми стенами».

Напомним, что стройка в районе улиц Ангарской и Магнитной в Минске идет с конца 2021 года. В советское время в этих местах располагалась исправительно-трудовая колония. Позже спецучреждение расформировали, от старых зданий избавились, а площадку отдали УКСу Заводского района.

В настоящий момент в новом квартале неподалеку от станции метро «Могилевская» и торгового центра «МОМО» уже построено 6 домов. Это − 5 односекционных столбиков и 1 многоподъездный дом. Многоэтажки от госзастройщика получились довольно симпатичными: отделка «под кирпич», приятные цвета, сквозные подъезды.

На жилье в новостройках могли претендовать только очередники. Квартиры распределялись среди многодетных семей, работников минских предприятий, сотрудников госорганов. Стоимость льготируемого квадрата в зависимости от дома составляла 1700−2000 рублей, сверх нормы — 2600 рублей.

Неподалеку от нового квартала располагается станция метро Могилевская, а также торговый центр МОМО.

Что тут сегодня продается?

Сейчас в новостройках на Магнитной предлагаются всего 2 квартиры.

Первый вариант — большая трехкомнатная квартира в доме по улице Ангарской, 17 В. Это жилье предлагается с дизайнерской отделкой от собственника. Трешка располагается на тринадцатом этаже 19-ти этажного столбика. В квартире — три раздельных комнаты и кухня. Стоимость 77-метровой трешки составляет 140 тысяч долларов (1799 долларов — за метр).

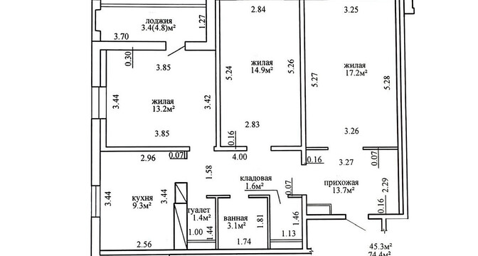
Новых жильцов ищет и двухкомнатная квартира в доме по улице Ангарской, 17. Жилье располагается на девятом этаже 19-ти этажной высотки. Двушка предлагается без отделки, только с унитазом. Площадь квартиры составляет 60 квадратных метров, площадь кухни — 9 квадратных метров. Стоимость — 98 тысяч долларов (1625 долларов — за метр).

На сегодняшний день в квартале осталось построить два панельных дома. К их возведению должны приступить в этом году, а полностью завершить квартал планируется уже в 2026-м.

Кстати, найти недорогие квартиры в новых жилых комплексах поможет наш обзор по новостройкам Минска. Этот продукт подготовлен аналитиками Realt и точно пригодится тем, кто в данный момент изучает рынок новостроек столицы.

Читать:
Лента новостей
Опрос
Как вы считаете, покупать квартиру лучше сейчас или следует подождать?