Регистрация

Есть около метро. Как выглядят самые бюджетные трешки с хорошим ремонтом в Минске?

06.08.2025 14387

Подобрали пять самых бюджетных трехкомнатных квартир, где сделан хороший ремонт. Все трешки уже обставлены мебелью и бытовой техникой. Среди вариантов есть жилье с перепланировкой и рядом с метро. Цены на квартиры варьируются от 83 до 112 тысяч долларов. Посмотрите, как они выглядят.

Улица Брилевская (Октябрьский район)

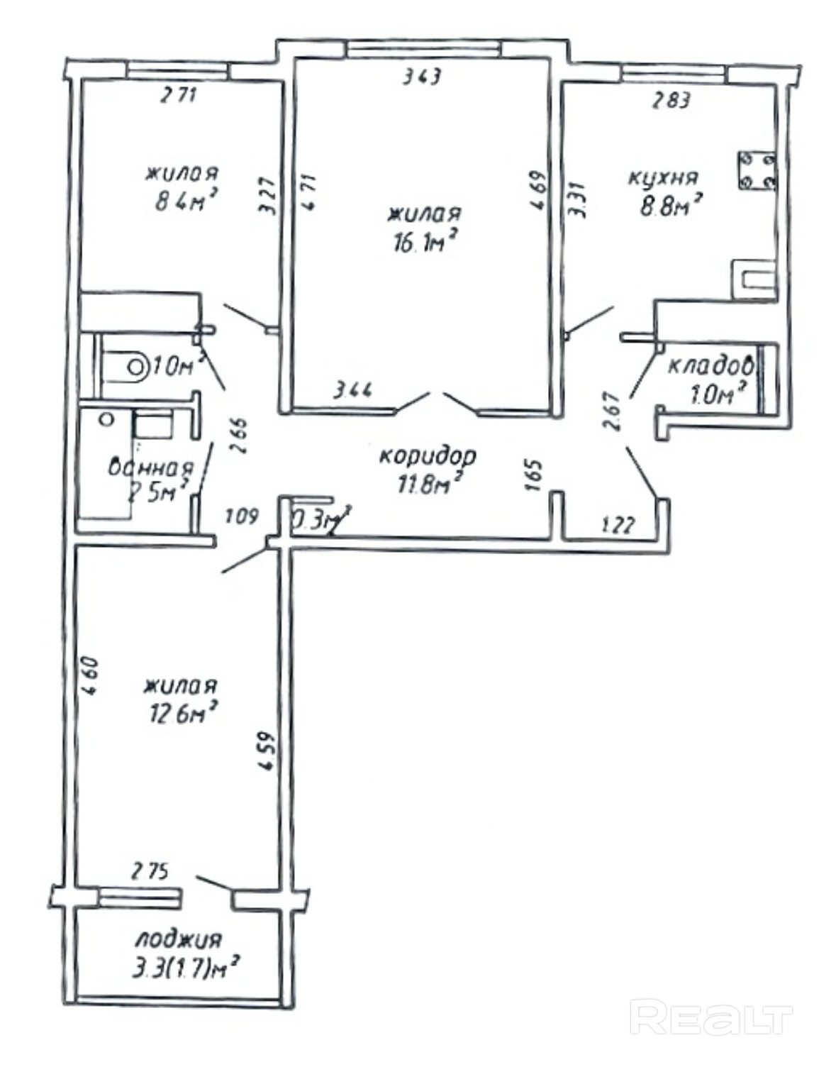
Эта трехкомнатная квартира находится в пятиэтажке на Брилевской, 24. Дом построили в 1967 году. Жилье располагается на третьем этаже и занимает 56,8 м². На кухню отведено 5,9 м².

В квартире сделан хороший современный ремонт. Владельцы немного поменяли планировку. Изначально одна из комнат была проходной и совмещена с коридором. Теперь вход в одну из спален располагается с другой стороны. Ее также увеличили за счет переноса входной двери. Одну кладовую перенесли таким образом, чтобы она служила личной гардеробной. 

Кухня и гостиная имеют г-образный вид. Сейчас они совмещены. 

Квартира полностью укомплектована мебелью и техникой. Из последнего тут есть духовой шкаф, варочная поверхность, посудомоечная машина, кондиционер, стиральная машина. В каждой комнате предусмотрены разные сценарии освещения, размещены проходные выключатели.

Санузел здесь раздельный. Из гостиный есть выход на балкон, который идет на две комнаты.

Дом находится в нескольких остановках от станции метро «Институт культуры». Рядом есть магазины, тренажерные залы и заправка.

Стоимость квадратного метра — 1 884 доллара, а квартиры107 тысяч долларов.

Улица Голубева (Московский район)

Девятиэтажка на Голубева, 3 была построена в 1980 году. На седьмом этаже продается квартира площадью 63,63 м². На кухню выделено 7,19 м². Капремонт прошел в 2014 году.

В квартире три изолированные комнаты. Она в хорошем состоянии, с мебелью и техникой. В окнах установлены стеклопакеты. На полу в коридоре, кухне и санузле лежит плитка, а в жилых комнатах — ламинат. Потолки — натяжные. В одной из комнат есть выход на застекленную лоджию.

Санузел — раздельный.

Поблизости есть гимназия и детский сад. Станция метро «Петровщина» находится в 5 минутах ходьбы.

Стоимость квадратного метра составляет 1 729 долларов. Трешка обойдется в 110 тысяч долларов.

Проспект Рокоссовского (Ленинский район)

Квартира выставлена на продажу в 12-этажном доме на проспекте Рокоссовского, 58/1. Он был построен в 1985 году. Трешка располагается на третьем этаже. Ее площадь — 64,2 м², кухня занимает 8,8 м².

Квартира с новым ремонтом. Она обставлена мебелью и техникой. На полу тут лежит ламинат, стены оклеены обоями, в окнах стоят стеклопакеты.  Все комнаты в трешке раздельные, в одной из них есть выход на застекленный балкон.

 

 

На полу в ванной и санузле лежит плитка.

Во дворе расположены два детских сада и две школы. В шаговой доступности - продуктовые магазины. Недалеко находится набережная реки Свислочь, бассейн, теннисный центр и главная минская велодорожка.

Квадрат стоит 1 698 долларовКвартира обойдется в 109 тысяч долларов.

Улица Чкалова (Октябрьский район)

Квартира находится на первом этаже пятиэтажки 1964 года постройки на Чкалова, 23/2. Ее площадь — 56,4 м². Метраж кухни — 5,7 м².

Квартира с одной изолированной комнатой. Внутри сделан хороший ремонт. Тут остается практически вся мебель. В окнах стоят новые стеклопакеты, потолки — натяжные с разными режимами освещения. Выделены электрические автоматы, газовая колонка на гарантии.

Санузел в трешке совмещенный.

В нескольких минутах ходьбы находятся остановки общественного транспорта. За 5 минут можно добраться до станции метро «Институт культуры».

Цена метра — 1 472 доллара. Квартира обойдется в 83 тысячи долларов.

Улица Лынькова (Фрунзенский район)

Дом на Лынькова, 15 был построен в 1979 году. Он девятиэтажный. Квартира продается на восьмом этаже и занимает 66,5 м². Площадь кухни — 8,3 м².

Дом после капитального ремонта. Комнаты на обе стороны. Одна из них — проходная. В окнах стоят стеклопакеты. Кухня обставлена необходимой бытовой техникой. Кстати, в квартире две лоджии.

.

Санузел и ванная облицованы плиткой.

Дом находится в 15−20 минутах от станций метро «Спортивная» и «Пушкинская». Еще ближе располагается проспект Победителей.

Стоимость квадратного метра — 1 684 доллара. Цена трешки — 112 тысяч долларов.

Кстати, почти все квартиры на Realt, можно купить в кредит или лизинг. Получить индивидуальную консультацию от специалистов можно вот здесь.

Читайте также:

Белорус сделал из старой бытовки стильную дачу всего за 1500 рублей. Показываем, что получилось

1163 доллара за метр и отдельный СПА-комплекс. Смотрите, какой красивый дом продают в Заславле

Читать:
Лента новостей
Опрос
Как вы считаете, покупать квартиру лучше сейчас или следует подождать?