До 65 тысяч долларов. Как выглядят самые дешевые двушки в Минске
В этой подборке собраны бюджетные двухкомнатные квартиры. Их цена не превышает 65 тысяч долларов. Все варианты нуждаются в ремонте, находятся на разных этажах и в трех районах города. Некоторые квартиры располагаются в шаговой доступности от метро. Показываем их планировки и пишем цену.

- Фото носит иллюстративный характер
Улица Народная (Заводской район)
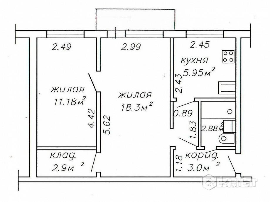
Пятиэтажка на Народной, 18 была построена в 1962 году. На четвертом этаже продается квартира в 46,4 м². Кухня занимает 5,9 м².
Жилье подготовлено к ремонту — комнаты освобождены от техники и мебели. Здесь проходной зал. В этой же комнате есть балкон. В крайней — небольшая кладовая. На полу в квартире лежат доски, в окнах установлены стеклопакеты.
В 10 минутах ходьбы находится станция метро «Партизанская».
Двушка стоит 65 тысяч долларов. Цена квадрата — 1 401 доллар.
Улица Брилевская (Октябрьский район)
В 1958 году на Брилевской, 11 появилась кирпичная четырехэтажка. На третьем продается двушка в 32,8 м². На кухню выделено 7,8 м². В 2017 году тут прошел капремонт.
Жилье нуждается в обновлении. Тут две отдельные комнаты. В окнах стоят стеклопакеты, на полу лежат ламинат и плитка, стены оклеены обоями.
Здесь совмещенный санузел, есть подвал.
До метро «Институт культуры» — одна остановка на общественном транспорте.
Цена за квартиру — 64 тысячи долларов, метр обойдется в 1 951 доллар.
Улица Маяковского (Ленинский район)
Пятиэтажный дом на Маяковского, 172 Б построили в 1963 году, капремонт запланирован как раз на 2025-й. Квартира находится на последнем этаже. Ее площадь — 45 м², а кухня занимает 6 квадратных метров.
Двушка продается под ремонт, но одна комната уже готова к проживанию. Кстати, обе теперь изолированные. В квартире стоят новые окна и входная дверь.
Из гостиной есть выход на балкон.
Дом стоит у Лошицкого парка, рядом есть магазины и остановки транспорта.
За жилье просят 64 800 долларов. Получается, что квадратный метр стоит 1 440 долларов.
Бульвар Шевченко (Центральный район)
На последнем этаже продается квартира в пятиэтажном кирпичном доме на бульваре Шевченко, 12. Его возвели в 1963 году. Площадь жилья составляет 40 м². Из них на кухню выделено 5,95 метра. Капремонт делали в 2020 году.
Квартира нуждается в обновлении. Одна комната тут проходная. Из нее есть выход на застекленный балкон. Во второй имеется кладовая. В окнах стоят стеклопакеты, полы тут деревянные, сверху — ламинат. Санузел здесь совмещенный. Вместе с ключами от квартиры покупателю достанется и подвал.
В нескольких остановках — Комаровский рынок. Поблизости находятся парк Победы и Комсомольские озеро. Рядом есть магазины.
Двушка стоит 65 тысяч долларов. Квадратный метр обойдется 1 625 долларов.
Партизанский проспект (Заводской район)
Эта двухкомнатная квартира в 40,3 квадрата располагается в кирпичной трехэтажке 1947 года на Партизанском проспекте, 124. Она находится на втором этаже. Кухня занимает 5,5 м².
Квартира под ремонт. Обе комнаты изолированные. Высота потолков достигает трех метров.
Санузел — раздельный.
Рядом находится остановка общественного транспорта. Пешком можно дойти до станции метро «Автозаводская».
Последняя квартира в подборке стоит 65 тысяч долларов. Метр — 1 613 долларов.
Кстати, почти все квартиры на Realt, можно купить в кредит или лизинг. Получить индивидуальную консультацию от специалистов можно вот здесь.
Читайте также:
Дизайнерское решение для молодой семьи. Преобразовываем маленькую кухню в эргономичное и функциональное пространство
Где жить во время LIDBEER: недорогие и удобные места для проживания
Показываем как выглядит самая дешевая двушка в «Леваде». И что по цене?