Регистрация

Две квартиры в элитном ЖК попали на аукцион. С ними связана интересная история

21.07.2025 9203

На площадке по продаже имущества «БелЮрОбеспечение» появились две квартиры в жилом комплексе «Академический, что находится недалеко от Академии Наук. Жилье с незаконченным ремонтом продают в счет долгов Светланы Сечко. Женщина с таким же именем несколько лет назад занималась двойной продажей недвижимости и была осуждена за это. Рассказываем, что это за квартиры.

Обе квартиры расположены в доме на улице Сурганова, 7а в Минске. Это — жилой комплекс «Академический», который возвели тут в 2010-х годах на месте снесенных производственных зданий. Застройщиком двух каркасно-блочных высоток выступала «Арэса-Сервис». Сейчас жилой комплекс на улице Сурганова окружают советские двухэтажки и пятиэтажки. Через дорогу расположен аквапарк «Фристайл», Дворец водного спорта и Ботанический сад.

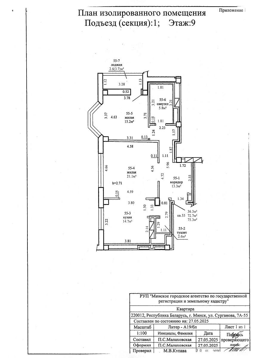
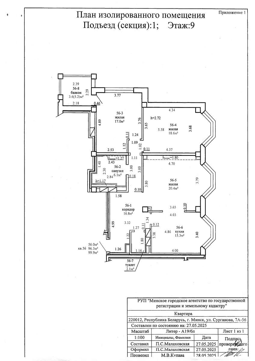
Именно в этом доме 2014 года постройки и продаются две арестованные квартиры. Они находятся рядом, на девятом этаже. Общая площадь двушки насчитывает 72,8 квадрата, трешки — 98,9 квадрата.

Судя по представленным фотографиям, в квартирах сделан частичный ремонт. Тут есть обои, плитка и напольное покрытие. При этом потолки, межкомнатные двери, розетки и плинтуса отсутствуют.

Так выглядит трехкомнатная квартира.

Начальная цена двухкомнатной квартиры составляет 364 тысячи рублей (124 тысячи долларов), а трехкомнатной — 414 тысяч рублей (141 тысячу долларов). Торги по квартирам назначены на 5 августа. Подать заявку можно до 14 августа.

А так выглядит двухкомнатная квартира.

Среди обременений указан арест следственных органов, а также запрет совершения регистрационных действий судебного исполнителя.

Напомним, что о махинациях с продажей несуществующих квартир стало известно в 2019 году. В то время застройщики порой расплачивались с подрядчиками не деньгами, а построенными квартирами. Подрядчик же в свою очередь реализовывал квартиры на вторичном рынке. По такой схеме работал и известный поставщик бетона (компания ООО «Светлана»). Сперва продажи были реальными, но затем в ход пошло несуществующее жилье по очень привлекательным ценам. В итоге, без квартир осталось около 60 человек, а общая сумма ущерба составила около 5 миллионов рублей. В 2023 году Светлану Сечко приговорили к восьми годам лишения свободы.

Читайте также:

В центре Минска за 8 млн долларов продают известный спорткомплекс с куполом на крыше. О чем речь?

Читать:
Лента новостей
Опрос
Как вы считаете, покупать квартиру лучше сейчас или следует подождать?