Регистрация

Эти дома давно сдали, но в них остались свободные квартиры. Нашли в Минске жилье от 710 евро за квадрат

11.07.2025 42088

Обычно квартиры в минских новостройках раскупают еще во время стройки. Что говорить — за жильем в некоторых домах и вовсе выстраиваются очереди. Однако почти в каждом ЖК имеются какие-то отказные или нестандартные квартиры (больших площадей или необычных планировок), которые не успевают найти своего покупателя. Сегодня мы решили рассказать про уже введенные в эксплуатацию жилые комплексы из нашего обзора по новостройкам, в которых еще остались непроданные квартиры от застройщиков. Среди вариантов — как обычные однушки, двушки и трешки, так и по-настоящему эксклюзивное жилье.

ЖК «Антоновский квартал»

Этот панельный жилой комплекс, изменивший район «Пролетарки», строили около 4 лет. Ранее в районе улиц Стрелковой и Рыбалко располагались производственные здания, а теперь стоят 9 многоэтажных домов. Возводила яркие высотки «Антоновского квартала» компания «БелаТЭП. Третья очередь строительства включала в себя три панельных дома высотой 10, 16 и 19 этажей. Именно в этих готовых домах еще есть свободные квартиры.

Так, в высотке на 19 этажей осталось 3 однушки и 1 евродвушка. Однокомнатные квартиры площадью 44 квадрата на 10, 16 и 17-м этажах предлагаются за 81,7 тысячи долларов (1820 долларов − за метр). Евродвушка площадью тех же 44 квадрата на 3-м этаже обойдется в 80,8 тысячи долларов (1820 долларов — за метр).

В новостройке на 16 этажей еще пустуют две однушки. Стоимость каждой 38-метровой студии равняется 71 тысяче долларов (1870 долларов − за метр). Все квартиры предлагаются без отделки.

ЖК «Каскад»

Жилой комплекс «Каскад» построили на месте исправительной колонии в районе улицы Кальварийской. Территорию осваивала компания «Юнивест-М». Концепция жилого комплекса получилась амбициозной — интересная архитектура, дворы без машин, свой детский сад, множество полезной инфраструктуры внутри квартала. Сегодня жилой комплекс «Каскад», состоящий из шести домов, полностью сдан и давно заселен. Ведь самым первым многоэтажкам миниполиса сейчас уже более 10 лет.

При этом в жилом комплексе все еще продается несколько двухкомнатных и трехкомнатных квартир. Все они находятся в жилом доме по улице Скрыганова, 2Б. Эту сдвоенную 25-этажную высотку сдали в эксплуатацию в 2016 году. Двушка в доме осталась только одна — она расположена на 22-м этаже, а вот выбор трешек — все еще широкий. Есть этажи как пониже, так и повыше. Квартиры имеют необычные планировки (треугольные, с ломаными линиями и полукруглыми стенами), но предлагаются с бонусом — парковочным местом на крыше паркинга. Приобрести жилье можно в рассрочку.

Что касается стоимости, то 77-метровая двухкомнатная квартира продается по цене в 123 тысячи долларов (1600 долларов — за метр), а 105−107 метровые трехкомнатные квартиры — по стоимости от 147 тысяч долларов (1400 долларов — за метр).

Дом в Горном переулке

Несколько лет назад в районе Золотой Горки, что возле площади Победы, тихо вырос двенадцатиэтажный дом. Новостройка появилась в обжитом квартале среди хрущевок и сталинок. Многоэтажка в Горном переулке от компании «Макроинжиниринг» позиционировалась, как «дом премиум-класса в сердце столицы».

Дом рассчитанный на 79 квартир может похвастаться закрытой территорией, подземным паркингом, холлом с фресками и керамической плиткой под мрамор. На каждом этаже тут располагается по 6−7 квартир. Некоторые квартиры имеют нестандартные планировки.

Согласно шахматке, размещенной на сайте, застройщика, сейчас в доме остаются непроданными около 10 квартир на верхних этажах. Самое экономичное предложение — однушка площадью 49 квадратных метров. Такие квартиры остались на 9−11 этажах. Жилье со строительной отделкой предлагается за 108 тысяч долларов (2200 долларов — за метр). Самый дорогой вариант — четырехкомнатная квартира площадью 126 квадратных метров, расположенная на последнем этаже. За жилье без отделки просят 316 тысяч долларов (2500 долларов — за метр). Также в продаже есть квартиры площадью 78−84 квадратных метра.

ЖК «Чайковский»

Этот комплекс-исполин вырос в районе Тимирязева-Грибоедова в 2016—2017 годах. ЖК, который построила «Дана Холдингз», состоит из двух многоэтажных домов — бело-бирюзовой стены и бежево-коричневого столбика.

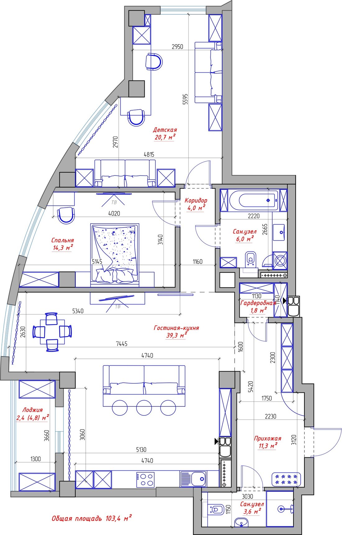
Несмотря на то, что новостройки давно заселены, тут еще остается одна свободная квартира площадью 224 квадратных метра. Жилье находится на третьем этаже высотного дома по улице Грибоедова, 1.

Особенность квартиры — огромная терраса, по площади превосходящая саму квартиру. Стоимость квадрата в этой трешке, учитывая необычную планировку, составляет всего 710 евро. Получается, что вся нестандартная квартира обойдется покупателю в 159 тысяч евро.

ЖК «Маяк Минска»

Судьба яблоневого сада за станцией метро «Восток» решилась в 2008 году, когда компания «Зомекс Инвестмент» (будущая «Дана Холдингз») получила право застройки этой территории. Сегодня жилой комплекс «Маяк Минска» − один из крупнейших современных кварталов столицы. И хотя белорусской Венецией он так и не стал, цены на недвижимость в «Маяке» и по сей день остаются на высоте.

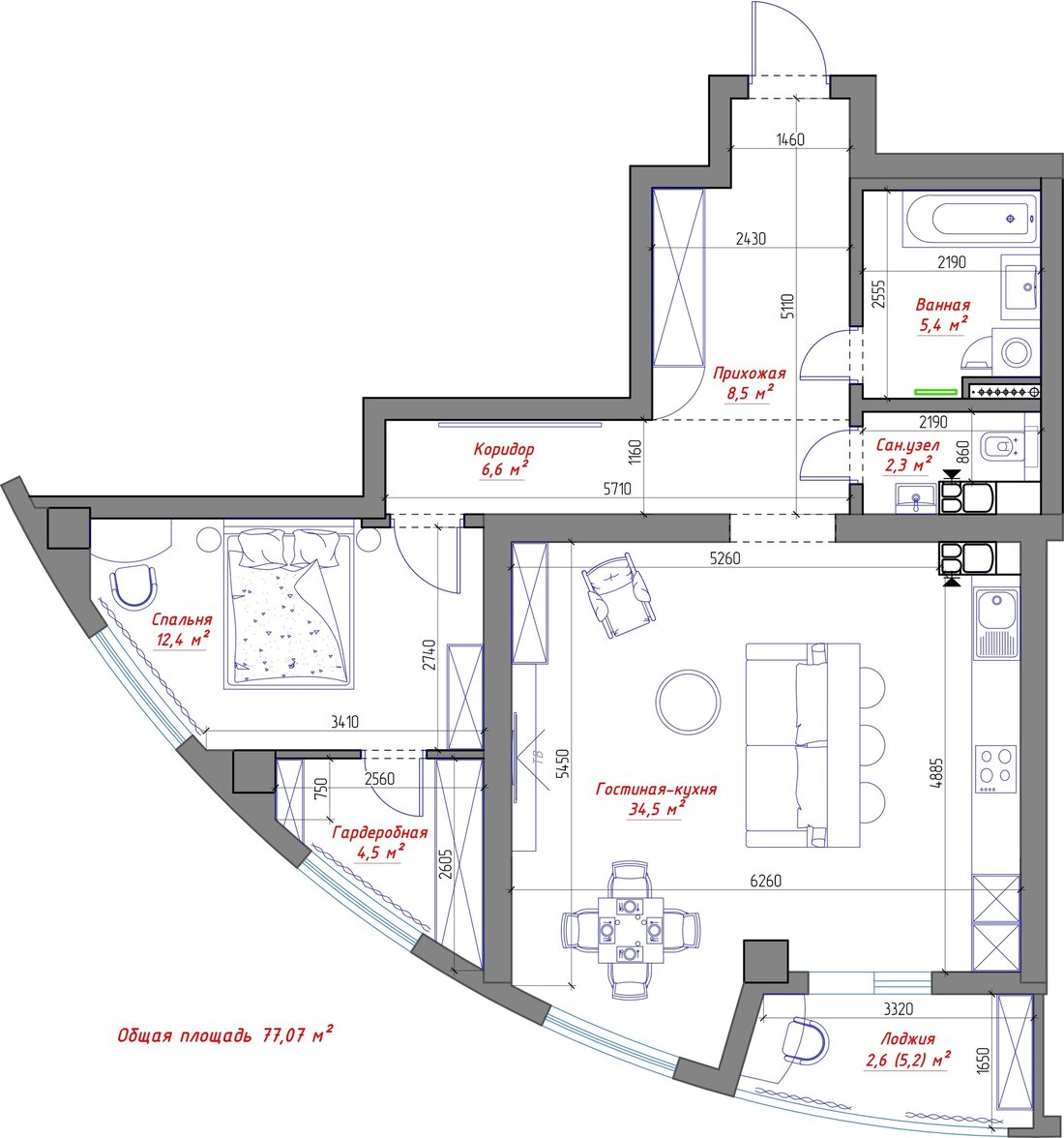
В настоящий момент жилой комплекс из нескольких десятков домов полностью сдан в эксплуатацию, но согласно информации на сайте застройщика, тут все еще свободны около 20 квартир. В основном — это просторные квартиры площадью от 80 квадратов и до бесконечности.

Среди вариантов, как и в предыдущем комплексе, есть нестандартные апартаменты с террасами. Одна из самых небольших квартир в продаже — это 79-метровая квартира в доме «Тинторетто». Трешка на втором этаже предлагается за 118 тысяч евро (1490 евро — за метр). Для сравнения возьмем квартиру побольше — так, на втором этаже дома «Миро» все еще продается 166-метровое жилье. За квартиру с большой террасой просят 248 тысяч евро (1490 евро — за метр).

ЖК «Парк Челюскинцев»

Этот жилой комплекс от сербского застройщика расположился недалеко от проспекта Независимости. Всего в нескольких минутах ходьбы от ЖК находятся сразу две станции метро: «Московская» и «Парк Челюскинцев». Комплекс состоит из дома-стены (три корпуса) и шести домов-столбиков.

Согласно информации на сайте застройщика, в ожидании жильцов еще находится около 25 квартир. Так, большой выбор трехкомнатных квартир площадью 77−90 квадратов имеется в одноподъездных высотках с видом на Парк Челюскинцев. К примеру, 77-метровая квартира на шестом этаже готового дома будет стоить 117 тысяч евро (1530 евро — за метр), а трешка площадью 90 квадратов (с террасой) на том же втором этаже — 135 тысяч евро (1500 евро — за метр). Все это варианты без отделки.

Найти недорогие квартиры в новых жилых комплексах поможет наш обзор по новостройкам Минска. Этот продукт подготовлен аналитиками Realt и точно пригодится тем, кто сейчас изучает рынок новостроек столицы.

Читайте также:

Недалеко от метро «Малиновка» строят необычную жилую высотку. Показываем, что уже сделано

Появились цены на второй дом в ЖК «Гулливер». Стоимость евродвушек начинается от 87 тысяч долларов

В июле 1944 года тут прошел уникальный парад. Рассказываем о «золотом полуострове» в центре Минска

Читать:
Лента новостей
Опрос
Как вы считаете, покупать квартиру лучше сейчас или следует подождать?