Регистрация

В знаменитом Доме шести премьеров продают квартиру с ремонтом. Как она выглядит и сколько стоит?

26.06.2025 15902

Этот дом на Броневом переулке строили для партийной элиты во второй половине 60-х. В разное время здесь жили шесть председателей Совета министров Беларуси (в том числе и Вячеслав Кебич) — отсюда и Дом шести премьеров — это название закрепилось за зданием достаточно плотно. Сейчас на продажу в этом доме выставили просторную аккуратную трешку.

Это пятиэтажный кирпичный дом на переулке Броневом, 4. В доме 4 подъезда и 44 квартиры. Здесь жили шесть бывших председателей Совмина БССР — Николай Авхимович, Тихон Киселев, Александр Аксенов, Владимир Бровиков, Михаил Ковалев и Вячеслав Кебич. Еще среди жильцов был один из руководителей партизанского движения Сергей Притыцкий и подпольщик и командир партизанской бригады Владимир Лобанок, в честь которых названы улицы в Минске. А бывший мэр Минска Василий Шарапов прожил в этом доме полвека — с 1967 по 2017 год.

Вот этот здание на снимках из Википедии.

И вот точка на карте. Рядом улицы Захарова и Первомайская. До парка Горького и площади Победы около 500 метров.

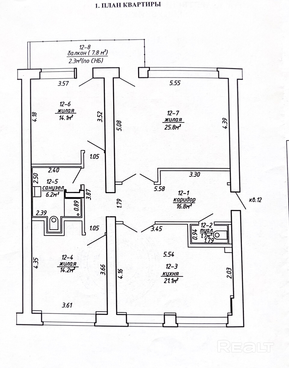
Квартира, выставленная на продажу, находится на втором этаже. Ее общая площадь — 102 квадрата, а жилая — 54. В комнатах минимум мебели, но сделан ремонт. Есть встроенные шкафы и полки.

На полу в жилых зонах лежит паркет, а в кухне и частично в прихожей плитка. Стены светлые.

Кухня полностью оборудована — здесь есть вся мебель с техникой и большой обеденный стол. Площадь кухни — 21 квадрат. Прихожая в квартире тоже немаленькая — 17 метров.

Метраж гостиной — больше 25 квадратов. В ней и еще одной жилой комнате есть выход на балкон.

Еще две жилые комнаты занимают по 14 метров каждая.

Санузлов, судя по планировке, два. В одном установлен унитаз, второй — совмещенный с ванной комнатой.

Квартира в этом непростом доме стоит 450 тысяч долларов. Метр выходит 4 403 доллара.

Читайте также:

Очень редкое предложение. В красных домах на Уручье продают квартиру с идеальным ремонтом

Заглянули в ТРЦ Avia Mall в Минск-Мире спустя два месяца после открытия. Есть новые магазины?

В известном доме в центре Минска продают квартиру, где остановилось время. Показываем

Читать:
Лента новостей
Опрос
Как вы считаете, покупать квартиру лучше сейчас или следует подождать?