Регистрация

Нашли готовый дом с ремонтом за Национальной библиотекой. Рассказываем, сколько он стоит

26.06.2025 20354

Всегда хотели жить в экологически чистом месте, но при этом оставаться в черте города? В базе Realt мы нашли подходящий вариант. На продажу выставлен полностью готовый для проживания дом с хорошим ремонтом, гаражом и бассейном. Кстати, расположен он в элитном районе недалеко от Национальной библиотеки. Вместе с экспертами АН «Сильван-Инвест» смотрим, как он выглядит и сколько стоит.

Жилой трехуровневый дом находится в экологически чистом районе недалеко от станций метро «Восток» и «Московская». Совсем рядом расположились парк Писателей и живописная зеленая зона. Также недалеко проходит Слепянская водная система. Место идеально для тех, кто ведет активный образ жизни, любит пешие и велопрогулки, а также наслаждаться природой.

Стоит обратить внимание на дом семьям с детьми. Рядом с ним есть школы, детские сады, семейные клубы, детские развивающие центры. В шаговой доступности — ТРЦ Dana Mall с десятками магазинов и большим фудкортом, медицинские учреждения, а также множество кафе и ресторанов.

Сам дом был построен в 2004 году из силикатных блоков. В нем паровое отопление, есть газ и электроснабжение, канализация — центральная. Объект подключен к центральному водоснабжению.

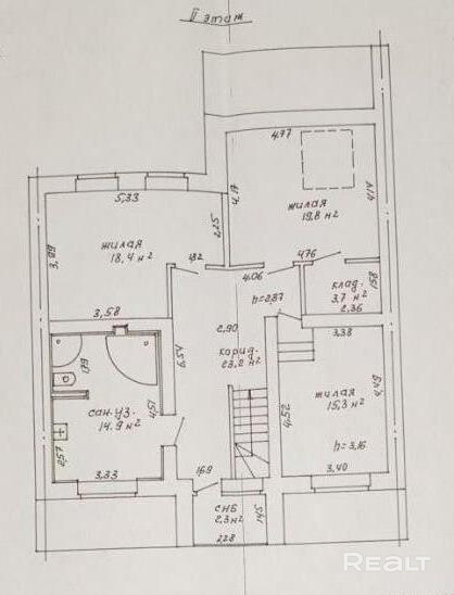
Его общая площадь — 276 квадратов, при этом на трех этажах можно увидеть не только стандартные жилые комнаты, но и специально оборудованные места для отдыха. Заходя на первый этаж дома, попадаем в холл. Далее расположена кухня с гостиной площадью около 50 квадратов. Также на этом этаже есть гаражное помещение, гостевой санузел и выход на веранду.

Поднимаясь на второй этаж, оказываемся в холле, который объединяет три жилые комнаты, гардеробную и просторный совмещенный санузел с душем и джакузи.

Есть в доме и подвальное помещение, где размещены хозяйственные комнаты, котельная, а также оборудовано место под сауну и бассейн. А еще установлен теннисный стол.

В доме сделан хороший классический ремонт, есть вся необходимая для проживания мебель. На окнах и дверях на первом этаже установлены металлические роллеты, а на цокольном этаже, кстати, есть приточно-вытяжная вентиляция.

В частной собственности находится благоустроенный земельный участок 0,0316 га. На территории уложен газон, дорожки из плитки, высажено множество деревьев и кустарников.

Стоимость такого дома оценивается в 390 тысяч долларов, то есть, квадратный метр в нем стоит 1 413 тысяч долларов. Это, пожалуй, одно из эксклюзивных предложений: в черте города, с просторной площадью и комфортной планировкой, с достаточно доступной ценой м².

Чтобы узнать о доме больше и записаться на просмотр, звоните по номерам +375 (29) 196−39−02, +375 (29) 778−38−91, пишите на почту flat@silvan7800.by или оставляйте свою заявку в форме ниже.

Читать:
Теги:

Страны: Беларусь

Темы: Новости

Лента новостей
Опрос
Как вы считаете, покупать квартиру лучше сейчас или следует подождать?