Регистрация

Заезжай и живи. Как выглядят и сколько стоят сталинки с ремонтом в Минске

20.06.2025 28283

При покупке сталинки некоторых останавливает, что в квартире придется многое переделывать и серьезно вкладываться в ремонт. Но на Realt есть и другие варианты — квартиры, в которые можно заезжать сразу после покупки и ничего не переделывать. Бонусом — толстые стены с отличной изоляцией, высокие потолки и хорошая локация. Смотрим такие варианты.

Трешка около двух станций метро

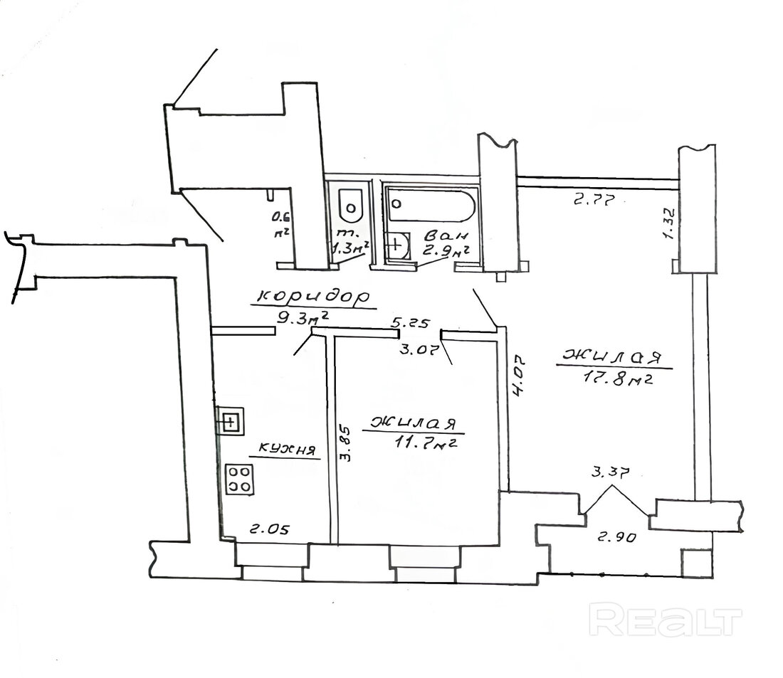
Первый вариант — самый классический из нашей подборки, но при этом самый просторный. Это трехкомнатная квартира по адресу Калинина, 30. До станций метро «Парк Челюскинцев» и «Академия наук» можно дойти за 10 минут.

Квартира расположена на втором этаже четырехэтажного дома 1937 года. Общая площадь — 75 квадратов, жилых метров — 37. Площадь кухни — 10 квадратов. В кухне несколько окон, одно из них над рабочей поверхностью. Потолки в трешке — три метра, а толщина стен — больше 50 см.

В квартире заменены все коммуникации. На полу лежит паркетная доска и итальянский керамогранит.

Балкон застекленный, установлены стеклопакеты.

В совмещенном санузле установлена ванна, есть стиральная машина.

За два месяца квартира подешевела на 10 тысяч долларов и теперь стоит 129 900 долларов. Метр выходит 1 730 долларов.

Двушка около «Купаловской» 

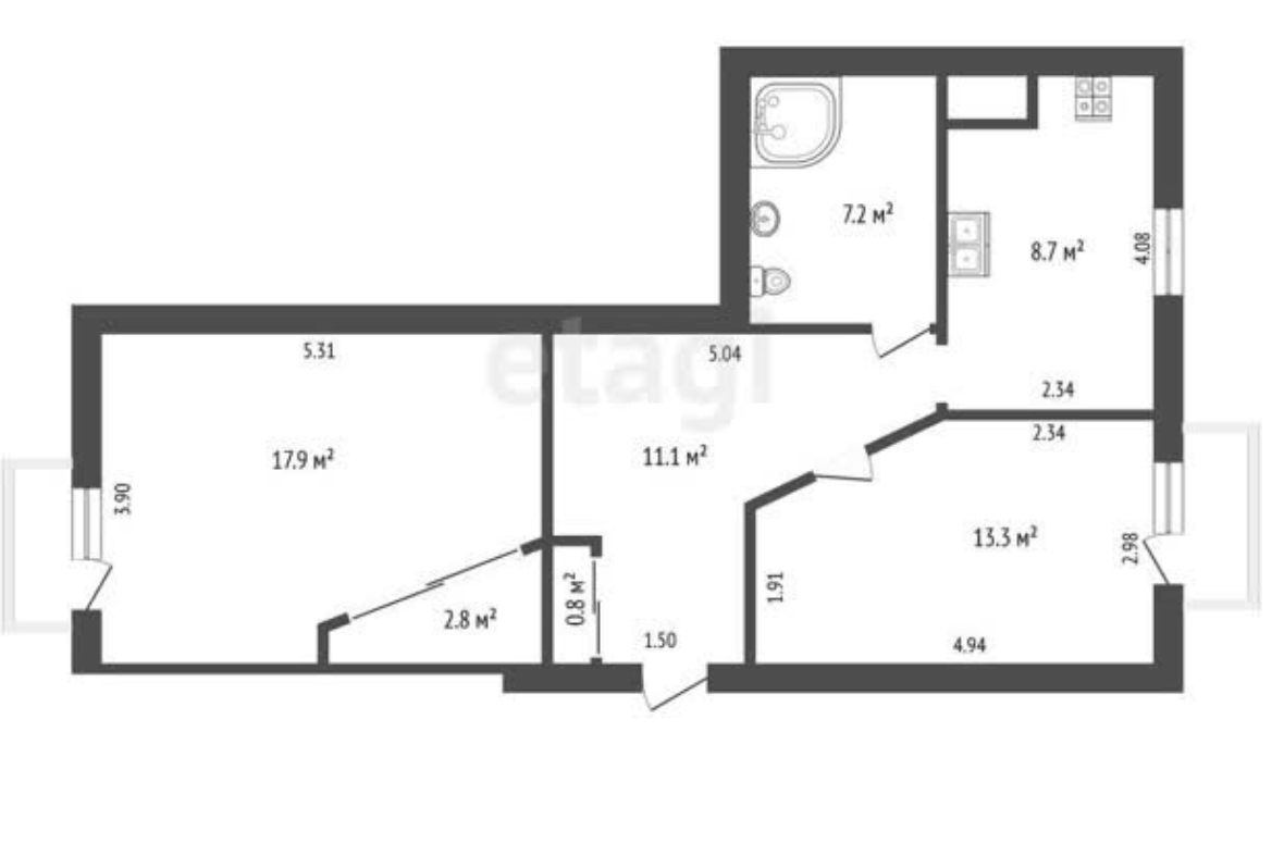
Двухкомнатная квартира в самом центре Минска, на проспекте Независимости, 19. До станций метро «Октябрьская» и «Купаловская» буквально пару минут.  

Квартира расположена на пятом этаже шестиэтажного дома 1951 года постройки. Общая площадь — 62 квадрата, половина их них жилые. Метраж кухни — 9 квадратов.

Окна выходят на разные стороны. Кстати, в гостиной они арочные, а в спальне — уютный балкончик.

На полу паркетная доска и плитка, на стенах — декоративная штукатурка.

Санузел объединенный и очень просторный для сталинки — больше семи метров. Установлена ванна и стиральная машина.

Двушка стоит 159 900 долларов, а метр выходит 2 587 долларов.

Двушка на площади Победы

Двухкомнатная квартира на четвертом этаже пятиэтажного дома на проспекте Независимости, 37. До входа в метро на станции «Площадь Победы» буквально минута.

Общая площадь двушки — 50 квадратов, 30 из них жилые. Площадь кухни — 9 метров. 

В гостиной есть выход на балкон с видом на проспект. Установлены двойные шумоизоляционные окна. Межкомнатные двери отреставрированы. В квартире установлен кондиционер.

Санузел раздельный. Установлена ванна. Подключена стиральная машина.

Квартира стоит 180 тысяч долларов. Метр — 3 636 долларов.

Двушка около площади Ленина

Двухкомнатная квартира на Ульяновской, 32. До станции метро «Площадь Ленина» около пяти минут. Это сталинка 1953 года постройки, в которой в 2020 году прошел капремонт.  

Квартира на третьем этаже пятиэтажного дома. Общий метраж — 59 квадратов, жилых метров — 37, площадь кухни — 7 квадратов. Потолки — три метра.

Во время ремонта в квартире заменили окна, электропроводку, розетки, трубы, стояк и всю сантехнику. В кухне есть посудомоечная машина, газовая плита и встроенная микроволновка.

В гостиной несколько окон и широкие дверные проемы.

В спальне установлен шкаф-купе.

Санузел раздельный. Установлена душевая, подключена стиральная машина и бойлер.

Квартира стоит 153 900 долларов (метр — 2 622 доллара).

Двушка на улице Фрунзе

Самый дорогой вариант нашей подборки — двушка в сталинке на Фрунзе, 9. Дм построен в 1955 году, в 2022 году прошел капремонт. До станции метро «Площадь Победы» около 400 метров.

Квартира расположена на втором этаже четырехэтажного дома. Окна выходят на парк Горького и зеленую зону.

Общая площадь квартиры — 56 квадратов, жилая 33 квадрата.

Продавец говорит, что ремонт делали для себя. Во время ремонта полностью снесли и заново возвели все стены, сделали новую стяжку пола. Перепланировка узаконена.

На полу — натуральный дуб, стены окрашены моющейся немецкой краской Caparol Amphibolin.

В кухне из техники есть холодильник, посудомойка, духовой шкаф с функцией СВЧ.

Санузел раздельный. Установлена ванна, подключена стиральная машина.

Такая квартира стоит 280 тысяч долларов, а метр выходит 5 027 долларов.

Кстати, эти квартиры, как и остальные на Realt, можно купить в лизинг. Получить индивидуальную консультацию от специалистов можно вот здесь.

Читайте также:

В сталинке в уютном уголке Минска продают квартиру художника. Смотрите, сколько там картин

До 55 тысяч долларов. Посмотрите, как выглядят самые дешевые однушки в Минске

Хуторской ренессанс. Как минчанка построила барнхаус у Налибокской пущи

Читать:
Лента новостей
Опрос
Как вы считаете, покупать квартиру лучше сейчас или следует подождать?