Регистрация

Проверили, как строятся «Петровские верфи». Кстати, тут продается много квартир без отделки

18.04.2025 10015

Екатерина Апарина, фото: Дарья Бурякина

Стройка этого жилого комплекса стартовала в 2020 году после сноса частного сектора. Архитекторы из Санкт-Петербурга решили добавить Минску морского колорита. В итоге, в районе станции метро «Петровщина» стал расти жилой комплекс «Петровские верфи». Мы съездили на улицу Семашко и посмотрели, как продвигается стройка. Заодно узнали, сколько тут стоят квартиры.

Напомним, что застройщиком всего комплекса многоэтажек выступает УКС «Запад». Сначала на месте старых хат вырос дом «Маяк», затем «Парус», а потом подтянулись и «Корабли». Сейчас основное строительство сосредоточено на «набережной», которая в будущем станет коммерческим стилобатом.

Первый из «Кораблей» сдали в прошлом году. Правда, с большим опозданием. Сроки были сдвинуты из-за смены подрядчика и необычной конструкции здания. Второй аналогичный дом растет гораздо быстрее.

Все четыре дома в нижней части ЖК будут идентичными. Каждый рассчитан на 8 этажей и 88 квартир. Квартиры в первой восьмиэтажке предлагали как нуждающимся в улучшении жилищных условий, так и все желающим.

Сданная новостройка получила яркий фасад, оригинальные входные группы, систему видеонаблюдения и детскую площадку.

Рядом подрастает и второй «Корабль». Здесь всем желающим уже предложили 56 квартир из 88. Стоимость квадратного метра в них составляла 4000−4800 рублей. Дополнительно нужно было заплатить 25 тысяч рублей за парковочное место. Правда, на сегодняшний момент доступных к продаже квартир нет — потенциальным дольщикам нужно ждать следующую декларацию от УКСа.

Второй «Корабль» начали возводить в марте прошлого года. Завершить стройку предполагалось в первом квартале 2025 года, но судя по всему, срок продлят на несколько месяцев.

Что тут продается?

Квартир от застройщика в комплексе сейчас нет, зато есть варианты от собственников. Так, в сданном «Корабле» ищут новых хозяев 4 квартиры. Все варианты предлагаются без отделки.

Самое бюджетное предложение — двухкомнатная квартира (евродвушка), расположенная на третьем этаже. Ее общая площадь составляет 46 квадратных метров. Высота потолка — 2,7 метра. Стоимость квартиры — 79,3 тысячи долларов (1698 долларов — за метр).

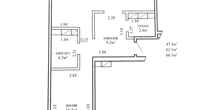
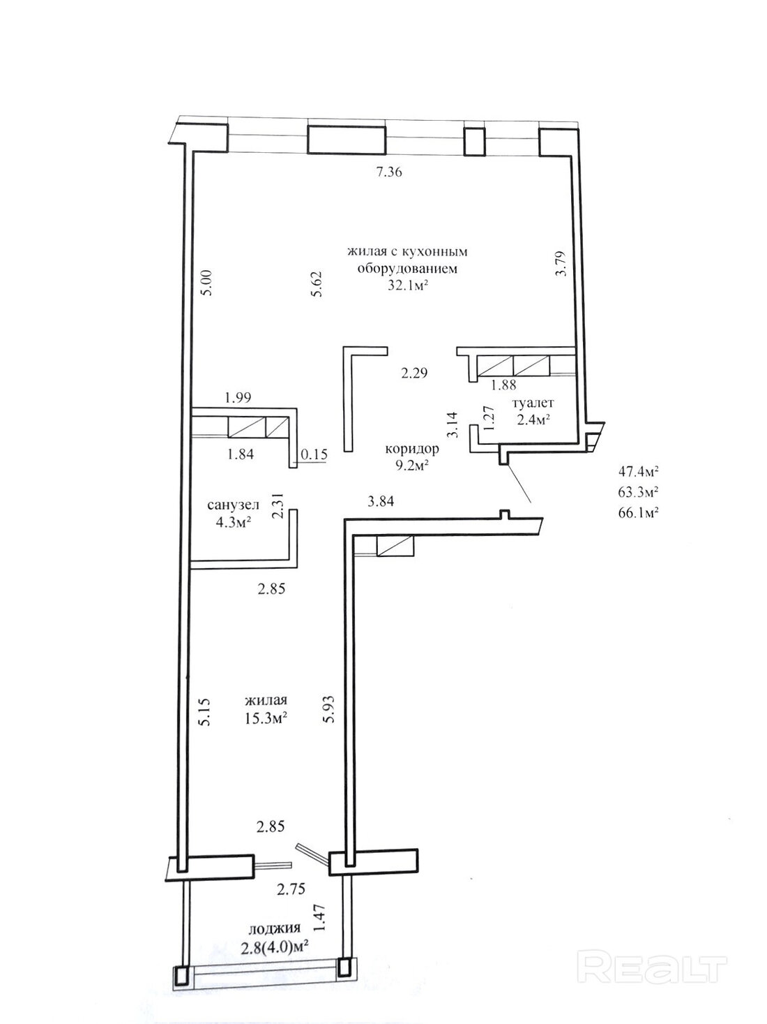
Также в продаже есть двухкомнатная квартира площадью 66 квадратных метров. В квартире на третьем этаже — рациональная планировка с окнами, выходящими на разные стороны, два санузла, застекленная лоджия с окнами в пол, высокие потолки. Можно сделать евротрешку. Внутри установлен видеодомофон, выполнена разводка электрики, установлен унитаз, стальные панельные радиаторы, счетчики учета горячего и холодного водоснабжения. Стоимость — 99,3 тысячи долларов (1511 долларов — за метр).

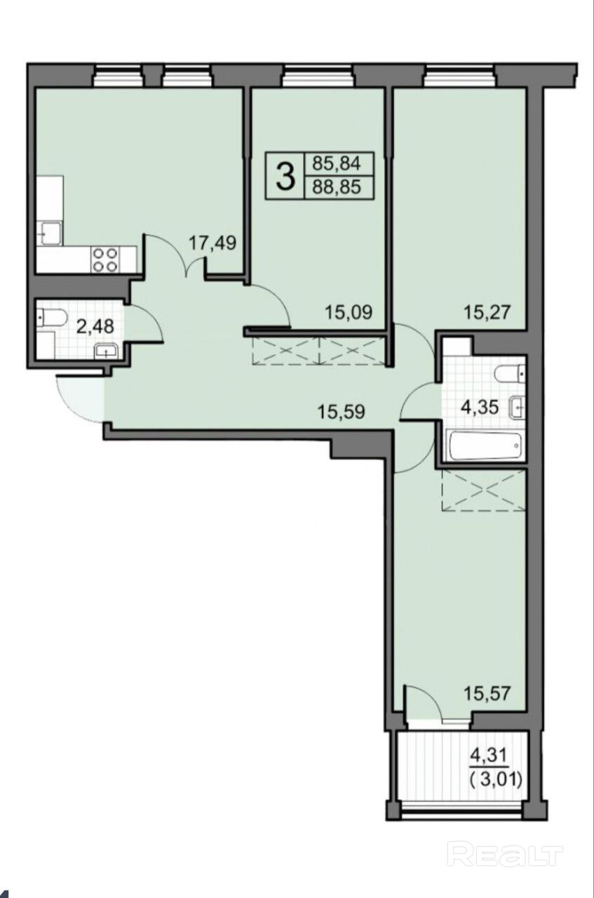
Самое дорогое предложение — трехкомнатная квартира на 8-м этаже. Площадь этой квартиры по СНБ — 88 квадратных метров. Планировка — 3 отдельные комнаты и кухня-гостиная, 2 санузла, застекленная лоджия, все окна в пол. Функциональная планировка квартиры позволяет воплотить самые смелые дизайнерские проекты. Стоимость — 124,5 тысячи долларов (1401 доллар — за метр).

Весь жилой комплекс «Петровские верфи» будет состоять из 9 жилых домов, символизирующих питерскую набережную с кораблями. Доминантой комплекса будет дом, напоминающий маяк. Концепцию квартала разработали специалисты питерского архитектурного бюро «Студия 17».

Найти недорогие квартиры в новых жилых комплексах поможет наш обзор по новостройкам Минска. Этот продукт подготовлен аналитиками Realt и точно пригодится тем, кто сейчас изучает рынок новостроек столицы.

Читайте также:

В тихом уголке Минска предложили квартиры от 57 тысяч долларов. Что это за дом?

В Уручье строят дом с очень недорогими квартирами. Кто может претендовать на жилье?

В Лошице сдали монолитный дом. Посмотрели, почем в нем продают квартиры

Более 180 сделок за месяц! Рассказываем о тех, кто приводит к продавцам квартир реальных покупателей

Читать:
Лента новостей
Опрос
Как вы считаете, покупать квартиру лучше сейчас или следует подождать?