Регистрация

Как вам такой интерьер? Нашли в Минске квартиру с морской тематикой

06.04.2025 7529

В нулевые годы во многих уголках частного сектора Минска строились огромные коттеджи, которые делились на 3, 5, 10 и более квартир. Один из таких домов возвели в Заводском районе столицы. Малоэтажка находится прямо на берегу Слепянской водной системы. А сейчас в ней продается ну очень необычная квартира (таунхаус). Показываем, как она устроена внутри и рассказываем, сколько такая стоит.

Этот трехэтажный дом, поделенный на 4 квартиры, расположен на улице Щетовка, 20. Ранее в этих местах была одноименная деревня, от которой сегодня осталось только название улицы.

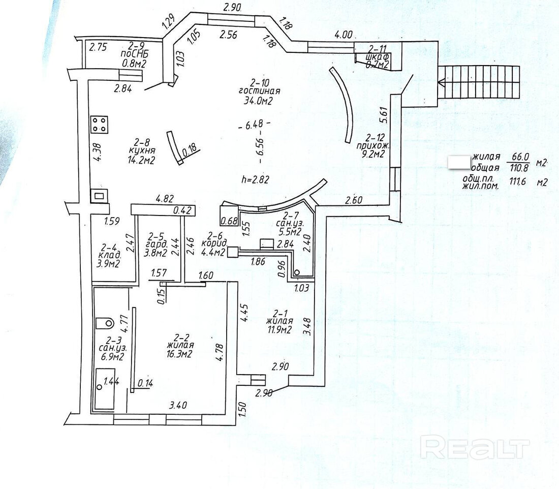
Таунхаус, в котором находится выставленная на продажу квартира, был возведен в 2010 году. Сама квартира располагается на первом этаже. В нее ведут два входа.

Общая площадь жилья составляет 111 квадратных метров. Квартира состоит из кухни, круглой гостиной, спальни с гардеробной и детской комнаты. Также тут предусмотрена кладовка и два санузла.

Уникальный дизайн квартиры разработал и воплотил в жизнь белорусский архитектор Роман Гогошин. Упоминание о проекте под названием «В стиле морской волны» можно найти на сайте архитектора.

Внутренняя отделка таунхауса удивляет витражами с подсветкой в морской тематике, радиусными стенами, фантасмагорическими перегородками и проемами.

Обращает на себя внимание и торшер ручной работы — его длина, кстати, составляет 6 метров.

Путешествие по волнам продолжается и в детской.

А вот хозяйская спальня выполнена совершенно в другом стиле. Здесь главенствует жгучая Африка. В интерьере преобладают красный и черный цвета, а за массивной деревянной кроватью «растут» баобабы.

Высота потолков в таунхаусе составляет 2,7 метра. Отапливается постройка газом.

Четырехквартирный дом стоит на участке в 15 соток. На территории есть качели и зона барбекю. Рядом с таунхаусом предусмотрено 1 парковочное место.

Расположение у дома — шикарное. Трехэтажное здание стоит на первой береговой линии, примыкающей к Слепянской водной системе. До реки — всего 50 метров.

Окружает малоквартирный дом усадебная застройка, при этом до ближайшей остановки, школы, детского сада и магазина можно дойти пешком за несколько минут.

А стоит этот таунхаус 223 тысячи долларов (1998 долларов — за метр).

Читайте также:

Ого, такие окна бывают в Каменной Горке? Смотрим нестандартную однушку недалеко от метро

Вы точно знаете тех, кто жил в этом доме. Нашли аккуратную двушку на берегу Свислочи

Локация — мечта. Нашли в центре Минска трешку с хорошей планировкой

«Однажды я прямо на сделке одолжила покупательнице деньги». Агент по недвижимости — честно о своей работе

Читать:
Лента новостей
Опрос
Как вы считаете, покупать квартиру лучше сейчас или следует подождать?