Регистрация

Таких квартир в Минске единицы. Смотрим сталинку с идеальным ремонтом около «Динамо»

26.03.2025 10820

В базе Realt появилась интересная квартира. И это как раз тот случай, когда эпитеты «эксклюзивная» и «уникальная» на самом деле отражают действительность. Расположена евротрешка в трехэтажной сталинке после капремонта на улице Кирова. В стильный ремонт вписали настоящий камин на дровах. На квартиру обратила внимание автор телеграм-канала «Будни риэлтора». Показываем детали и рассказываем, сколько стоит такое жилье.

Эта квартира расположена на третьем этаже дома по адресу Кирова, 23. Он построен в 1947 году, в 2023 году в доме сделали капремонт. Дом расположен напротив стадиона «Динамо». До станции метро «Купаловская» около 300 метров. До железнодорожного вокзала — около километра, можно дойти за 15 минут. Рядом с домом — Национальный художественный музей.

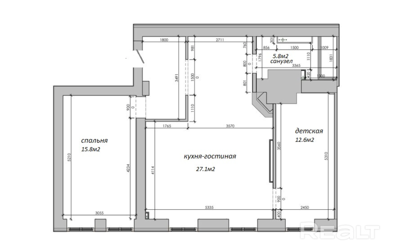
Общий метраж квартиры — 72 квадрата, жилых метров — 44. Кухня совмещена с гостиной, эта комната занимает 27 квадратов. Высота потолков, как и положено сталинке, выше трех метров.

Входная дверь в квартиру усиленная, изготовлена по индивидуальному заказу. Межкомнатные двери — скрытого монтажа. Стены во всей квартире выкрашены в светлый цвет. Есть яркие акценты — синие кухонные фасады и диван.

Отдельная деталь гостиной — камин на дровах, который идеально вписан в интерьер.

Площадь спальни — 16 квадратов. На стенах в комнате — модинги. Установлен вместительный шкаф, стоит двуспальная кровать.

Еще одну комнату называют детской. Но по факту она может быть просто дополнительной спальней или кабинетом — здесь есть рабочее и спальное места, а выглядит все стильно, как и вся квартира.

Санузел в квартире совмещенный. Здесь электрическая система подогрева полов. Установлена большая акриловая ванна. Вся сантехника и смесители Villeroy&Boch, а инсталляция Grohe. Есть бойлер и стирально-сушильная машина.

Стоит квартира 239 тысяч долларов. Метр выходит 3 338 долларов. Купить ее, как и другие квартиры на Realt, можно в лизинг. Для первого взноса достаточно суммы около 70 тысяч долларов. Получить индивидуальную консультацию от специалистов можно здесь.

Читайте также:

Из окна вид на Раковское предместье. В самом известном доме на Немиге продают двушку

В известной сталинке в центре Минска продается красивая квартира. Сколько стоит?

Стиральная машина дешевле в два раза. Сходили в необычный магазин уцененной техники

Читать:
Лента новостей
Опрос
Как вы считаете, покупать квартиру лучше сейчас или следует подождать?