Регистрация

У этого симпатичного ЖК — непростая история. Рассказываем, что тут продается

15.03.2025 7221

Эти яркие высотки на улице Быховской успели потрепать нервы дольщикам. Дело в том, что красные дома сдали на 4 года позже, чем планировалось. Сегодня, когда все неурядицы уже позади, мы решили вспомнить, что это за комплекс и посмотреть, почем тут продаются квартиры.

Комплекс на Быховской, 10 состоит из 176 квартир и 2 подъездов (отдельных столбиков на 13 и 19 этажей). Между домами запроектирован общий подземный паркинг и дворовая территория.

Застройщиком дома выступала архитектурная мастерская «Апрель». Начали строить комплекс в 2015 году. Проект выделялся хорошей локацией (рядом — новая станция метро «Ковальская Слобода») и невысокой ценой.

Первоначально жилой комплекс на Быховской собирались сдать в 2018-м году, но из-за череды разнообразных событий, стройка растянулась аж до 2022 года. Более того — дольщикам даже пришлось доплачивать, чтобы поскорее получить ключи.

В итоге, подъезды дома сдавали по очереди: тот, что пониже ввели в строй в 2020-м году, тот, что повыше — только в 2022-м. Причем, городские власти разрешили застройщику сдать жилую часть комплекса без подземного паркинга и благоустроенного двора. Судя по фотографиям из объявлений, детская площадка между домами пока так и не появилась.

Зато дом оборудован камерами видеонаблюдения, а также бесшумными высокоскоростными лифтами OTIS. Комплекс обслуживается товариществом собственников.

На первых этажах 19-этажки предусмотрены офисные помещения. Тут уже работает маркетплейс, коворкинг и другие сервисы.

Отдельно стоит сказать про хорошее расположение комплекса. Дом граничит с тихим частным сектором и защищен от лишнего шума. При этом в шаговой доступности находятся две станции метро. До станции «Ковальская Слобода» — 3 минуты, до «Института Культуры» — 12 минут.

А что тут сейчас продается?

На нашей площадке в настоящий момент выставлено 5 квартир в «красных» домах на Быховской. Тут есть как квартиры с ремонтом, так и без него.

Самый недорогой вариант — однокомнатная квартира площадью 51 квадратный метр. Однушка без отделки расположена на седьмом этаже. Она стоит 85 тысяч долларов (1667 долларов — за метр).

Также в продаже есть просторная квартира-студия. Это жилье расположено на третьем этаже дома и вместе с лоджией насчитывает 57 квадратных метров площади. В квартире сделан стильный дизайнерский ремонт. Стены выравнены, оштукатурены и окрашены. На полу уложен кварц винил и керамогранит. В санузлах установлена сантехника таких брендов как GROHE, Villeroy & Boch. Квартира состоит из общего пространства, поделенного на функциональные зоны — кухни, гостиной и спальни. Также тут есть вместительная гардеробная с возможностью подключения стиральной машины и сушки. Во всех помещениях установлено трековое освещение. Высота потолков — 2,7 метра. Стоимость квартиры — 128,9 тысячи долларов (2234 доллара — за метр).

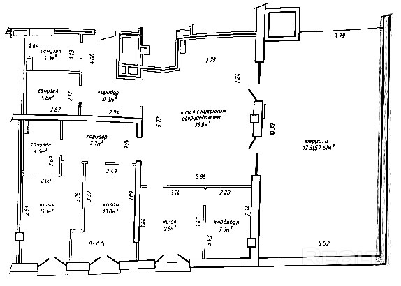
Интересный (и самый дорогой) вариант для покупки — квартира с террасой. Это жилье находится на последнем этаже дома и занимает 134 квадратных метра площади, из которых 57 квадратов приходится на террасу. По планировке квартира состоит из кухни-гостиной и трех отдельных комнат. Она предлагается без какой-либо отделки. Изюминкой четырешки является огромная терраса на крыше дома, откуда открывается потрясающий вид на окрестности. Стоимость квартиры — 250 тысяч долларов (1855 долларов — за метр).

Читайте также:

Нашли интересные высотки из 90-х в тихом уголке Минска. Здесь есть необычные квартиры

Что за элитный дом спрятался в тихом центре? Рассказываем, какие квартиры тут продают

Этот минский дом строили около 20 лет. Рассказываем про «китайскую стену» на Маяковского

Читать:
Лента новостей
Опрос
Как вы считаете, покупать квартиру лучше сейчас или следует подождать?