Регистрация

Выбираем квартиры в очень известных домах Минска. Вот варианты с ремонтом и по адекватной цене

04.03.2025 12152

В Минске, как и в любом городе, есть здания, знаковые для его истории. Жилье в таких домах всегда остается в цене, а среди соседей часто можно встретить известных людей или их родственников. Сегодня посмотрим как раз такие квартиры — двушки и трешки в известных домах в центре Минска. Стоят квартиры из подборки до 200 тысяч долларов, но все их можно купить в лизинг — для первого взноса хватит 40−60 тысяч долларов. Просчитать условия лизинга можно в каждом объявлении, а получить ответы на вопросы — по ссылке.

Двушка в Генеральской сталинке

Про квартиры в этом доме, которые выставляют на продажу, мы периодически рассказываем. Они появляются здесь не так часто, но периодически все же бывает. В прошлом году, например, мы показывали вот такую стильную двушку. Сейчас есть вариант подешевле — двухкомнатная квартира с классическим ремонтом.

Генеральским домом в Минске называют две сталинки напротив парка Челюскинцев, примыкающие друг к другу — это дома №91 и №93 на проспекте Независимости. Строить их начали еще до войны, а достроили после. Квартиры там получали непростые семьи, в том числе и высшие армейские чины — отсюда и название — генеральский дом. 

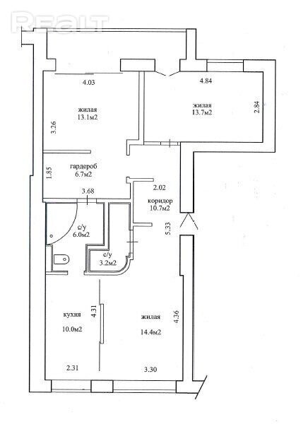
Квартира, о которой рассказываем сегодня, расположена на последнем четвертом этаже. Ее общая площадь — 64 квадрата, 37 из которых жилые, а метраж кухни составляет почти 10 квадратов. Окна выходят во двор. 

В квартире трехметровые потолки. В каждой комнате несколько окон — три в гостиной и по два окна в спальне и кухне. Санузел совмещенный. Установлена ванна. Есть стиральная машина.

Стоит двушка в Генеральской сталинке 130 тысяч долларов. Метр выходит достаточно бюджетным для такого дома — 2 044 доллара. Для покупки в лизинг достаточно первого взноса 40 тысяч долларов. В объявлении можно просчитать различные условия покупки. 

Двушка на Площади Победы

Второй вариант — двухкомнатная квартира по адресу Независимости, 37. Это дом из комплекса «Подвиг народа бессмертен» на площади Победы. Он слева, если стоять лицом к этим двум зданиям. 

Квартира расположена на третьем этаже пятиэтажного дома. Хоть она и считается двухкомнатной, но фактически это целая евротрешка. Здесь есть кухня-столовая, которая по размеру не уступает любой кухне, совмещенной с гостиной; спальня и кабинет с большим окном и видом на Площадь Победы.

Ремонт в квартире выполнен в классическом стиле, но выбраны нейтральные цвета, а стены выкрашены в белый цвет. В кухне на полу лежит плитка, а в столовой, как и в жилых комнатах, ламинат.

В спальне стоит кровать и шкаф.

Особое внимание привлекает кабинет. Посмотрите, какое там французское окно с видом на Площадь Победы и широкие двери. Есть в кабинете и небольшой диван для отдыха.

Санузел совмещенный. В просторной комнате получилось разместить, ванну, душевую и два умывальника. Есть и стиральная машина.

В квартире установлено два кондиционера, стеклопакеты деревянные. Перепланировка узаконена, пишет продавец.

Квартира обойдется в 150 тысяч долларов. Метр — 2 294 доллара. Для покупки в лизинг нужен первый взнос от 45 тысяч долларов. В объявлении можно просчитать, какими будут ежемесячные платежи в этом случае.

Трешка в доме для партэлиты на Маркса

Этот дом на Маркса, 42 строили для партийных работников, ученых, писателей, артистов и других непростых белорусов. Это не сталинка, а дом помоложе — его сдали во второй половине 60-х. В доме 9 этажей и квартиры улучшенной планировки. Еще из интересных архитектурных особенностей — каждый подъезд в доме расположен на разном уровне из-за того, что здание стоит на спуске.

В квартире, которую выставили на продажу, три комнаты. Общая площадь — 80 квадратов, почти половина из них — жилые. Площадь кухни — 10 метров. От гостиной кухню отделяет стена-перегородка. 

Еще в одной комнате оборудована спальня. А третья жилая комната может использоваться как кабинет или гостевая спальня. В двух этих комнатах есть выходы на общую просторную лоджию.

Санузел совмещенный. Есть и ванна, и душевая кабина. В шкафу спрятаны стиральная и сушильная машины. 

Стоимость квартиры — 197 тысяч долларов (метр — 2 447 долларов). Минимальный первый взнос при покупке в лизинг — 60 тысяч долларов. В объявлении можно просчитать различные условия лизинга. 

Двушка в доме у метро «Площадь Победы» 

Еще один вариант около Площади Победы — двушка в лофт-стиле прямо у метро. Второй этаж шестиэтажной сталинки на проспекте Независимости, 37. 

Общая площадь квартиры — 57 квадратов, 34 из них жилые, кухня — 8 метров. Квартира яркая, ремонт выполнен в стиле лофт. В спальне есть и рабочее место, огражденное от кровати перегородкой. Кухня и гостиная объединены. Санузел совмещенный.

Квартира стоит 195 тысяч долларов (метр — 3 451 доллар). При покупке в лизинг на первый взнос нужно от 58 тысяч долларов. В объявлении можно просчитать различные условия.

Читайте также:

Как выглядит и сколько стоит самая дешевая квартира с ремонтом в ЖК «Левада»

С системой «умный дом». За сколько продают новый барнхаус в СТ в 18 км от Минска?

Из окна видна Свислочь. Около площади Победы продают монументальную сталинку

Читать:
Лента новостей
Опрос
Как вы считаете, покупать квартиру лучше сейчас или следует подождать?