Архитектор построил стильный дом на хуторе под Минском, а теперь продает. Показываем изнутри
Тихая деревня рядом с Минском, лес и поле, хутор с просторным стильным домом — так вкратце можно описать свежий объект в продаже на Realt. Строил его для себя супружеский тандем архитектора и дизайнера, что не могло не отразиться на внешнем виде, планировке и дизайн-проекте. Архитектурный образ строения современный, с лаконичным фасадом, четкими линиями и огромными окнами — даже удивительно, как органично он вписался в местный деревенский антураж. Сегодня мы расскажем из чего он построен, как устроен, почему и за сколько продается.
Супругам повезло найти особенное место: уединенное, без соседей, практически хутор. С одной стороны — открытый простор полей с живописными холмами, с другой — лес. Деревня называется Ольховец, но вы вряд ли о ней слышали — здесь нет производств и ферм, тут всего с десяток домов и вокруг леса. Не сразу и на карте найдешь.
— Место для нашего будущего загородного дома мы с супругой выбирали долго, наверное, года два, — говорит архитектор и владелец в одном лице Андрей Соловьев. — В приоритете были мядельское и логойское направления — у нас до этого была дача на Логойщине и эти места нам понравились.
Но это не глухомань — связь с цивилизацией поддерживает асфальтированная дорога, по которой можно за полчаса добраться до Минска или до горнолыжного комплекса в Силичах с его развлечениями и ресторанами.
— Каким будет дом подсказало само место, — говорит архитектор. — Было желание найти новый образ для деревни — традиционный, но современный. Хотелось, чтобы он органично встроился в местное окружение как недостающий пазл.
Во внешнем виде строения и в самом деле читаются классические черты. Правда, не простой деревянной хаты, а скорее усадьбы из прошлого века — этакий панский дом в современном формате: высокий, солидный, с колоннами у входа, с лаконичным деревянным фасадом, панорамными окнами и фальцевой кровлей.
Крыша имеет особенность — она не имеет свесов. Водосточных желобов не рассмотреть, но это не значит, что их нет — они спрятаны под фасадом. Благодаря такому решению дом имеет четко очерченный контур.
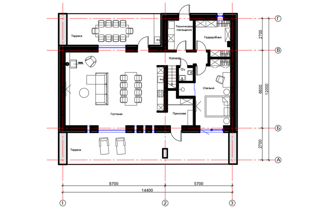
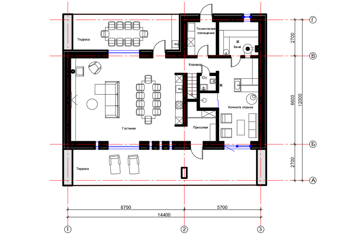
Входная зона ориентирована на юг, утоплена в тело здания и совмещает функцию передней террасы. Со второй, северной стороны, находится еще одна терраса. Для настила использована лиственница.
Благодаря панорамным окнам, выходящим на обе террасы, дом просматривается насквозь. В привычной застройке это было бы спорным решением, но здесь мы имеем дело с простором без дачных заборов и соседей — любопытство проявят разве что косули и зайцы.
— Панорамные окна задумывались как интерактивные картины, которые меняются в течение дня и года, — говорит Андрей. — В одном можно наблюдать, как поле меняет краски в зависимости от времени года, в противоположное можно наблюдать рассветы.
Строился дом по современным канонам (по всем этапам имеются фотоотчеты). Основанием является ленточный фундамент с монолитной железобетонной плитой пола. Цоколь утеплен, отмостка гидроизолирована. Стены первого этажа сложены из керамических блоков, с утеплением каменной ватой (100 мм). Керамоблоки создают комфортный микроклимат внутри дома: зимой сухо и тепло, летом не жарко.
Второй этаж собран по классической каркасной технологии: деревянный каркас, минераловатный утеплитель, пароизоляция изнутри, ветрозащитная мембрана снаружи. Внутри стены и потолки второго этажа подшиты плитным материалом.
Для отделки фасада использовали деревянный скошенный планкен. От модных нынче расцветок черно-серой гаммы отказались — дерево покрыли защитным составом, который подчеркивает природный цвет древесины.
Площадь дома — 167,4 м2, плюс террасы (это еще 60,2 м2).
— Планировку мы делали под себя, поэтому некоторые решения покажутся нестандартными, — говорит Андрей. — Например, над пространством гостиной со встроенной кухней нет перекрытия — потолком являются скаты крыши. Благодаря такому решению и панорамным окнам высотой два метра мы получили практически безграничное, наполненное светом пространство. За стеной, у которой по дизайн-проекту моей супруги будет размещаться кухня, запланирована домашняя СПА-зона, с парилкой, комнатой отдыха, душевой и санузлом.
Здесь пока нет перегородок — просто помещение 9 на 4 метра с дверью на террасу.
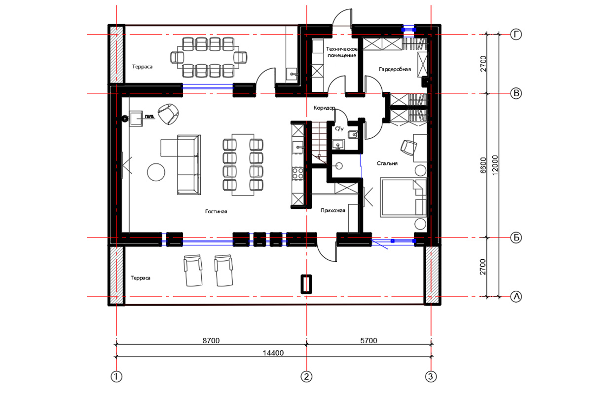
— Так как решение о продаже мы приняли до того, как начали работы в этой части дома, то решили оставить здесь свободную планировку, — объясняет Андрей. — Новый владелец волен распорядится этим пространством иначе. Например, сделать здесь спальню с гардеробной, или тренажерный зал — все, что сочтет необходимым.

- Альтернативная планировка без сауны
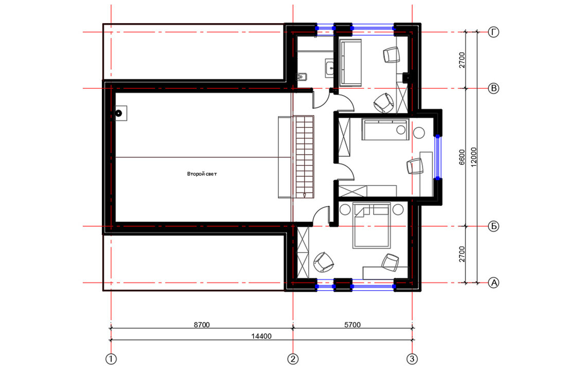
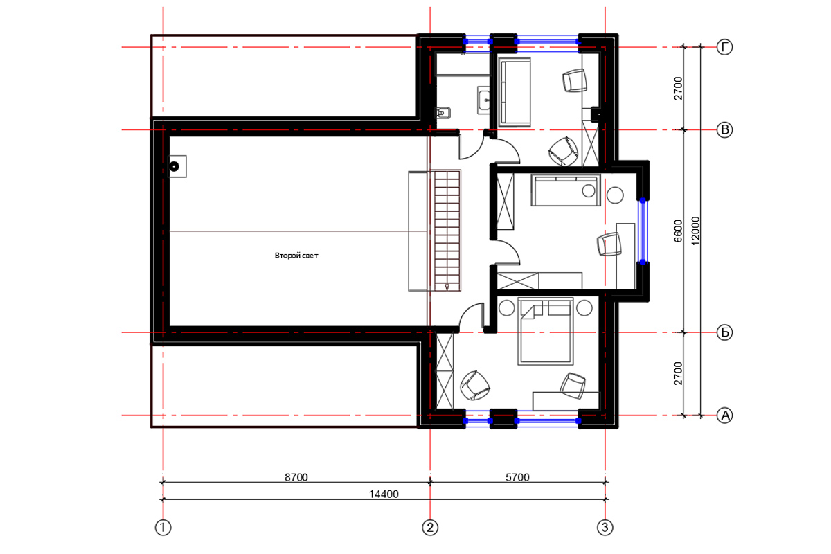
Кстати, над этой частью дома расположена спальная зона с тремя спальнями и санузлом. С открытой части второго этажа открывается вид на двусветное пространство гостиной.
Каким задумывался интерьер, можно судить по дизайн-проекту Аллы Соловьевой, супруги архитектора. Он разрабатывался совместно с архитектурно-строительным проектом, так что на руки покупатель получит полный комплект документации.
Сейчас в доме выполнены лишь черновые отделочные работы. Однако в плане обеспечения инженерными сетями все хорошо: сделана разводка электрики, пробурена скважина, водопровод заведен в дом. Канализация местная (система из нескольких колодцев).
Отопление запроектировано комбинированное — электрокотел, котел на дровах и камин.
— На дом нам выдели 12 Квт, — говорит Андрей. — Электроэнергия для отопления будет считаться по льготному тарифу. Все оборудование уже закуплено, осталось его смонтировать. Система отопления спроектирована с возможностью дистанционного управления.
Взглянув еще раз на дом и оценив масштаб завершающих работ, у нас вопрос — зачем продавать его в трех шагах от финиша?
— Когда архитектор строит один дом, в голове его рождается идея второго, — говорит Андрей Соловьев. — Сейчас мои мысли заняты новым проектом. Этот же новому владельцу закончить будет несложно.
Стоимость же этой современной усадьбы под чистовую внутреннюю отделку на 11 сотках без соседей — 150 000 долларов. Дорого это или нет — решать вам, но мы можем констатировать, что подобные объекты в продаже попадаются редко и обычно стоят дороже.
Всего в 3,5 км от Минска — тишина природного заказника, лесные пейзажи и уют современного загородного квартала.
«Зеленая гавань» сочетает архитектуру, вдохновленную природой, и комфорт городской жизни. Песчаные оттенки фасадов, скатные крыши, просторные террасы и низкая плотность застройки — все продумано так, чтобы гармонировать с окружающим ландшафтом.
Квартира в урбан-вилле рядом с гольф-полями, уютные евродвушки с готовой отделкой — разные форматы для разных ритмов жизни. Выбирайте свою квартиру мечты тут.