Регистрация

Дом с баней и пруд с карасями. Изучили интересный вариант в 20 минутах от Минска

13.02.2025 16360

Ценообразование на загородное жилье часто удивляет и порой так и хочется спросить продавца — за что такие деньги? Но в этот раз мы расскажем о доме, стоимость которого выглядит вполне обосновано. В цену входит практически новый коттедж с готовым интерьером в 20 минутах от Минска, со встроенной бытовой техникой и мебелью, с «бошевским» отопительным оборудованием, системой «Умный дом». Плюс гараж на две машины, терраса с печью барбекю, пруд с амурами, лес через дорогу и участок со взрослыми деревьями. Вишенка на торте — отдельная деревянная баня. В конце обзора мы укажем цену, а вы решайте, дорого или нет.

Этот дом построен в Володьках, в коттеджной части деревни. Локация неплохая — всего 20−25 минут до Минска по слуцкой трассе, рядом лес, в шаговой доступности магазины, школа, амбулатория, автобусная остановка.

Сдали его в эксплуатацию в 2022 году, так что это практически новый дом. Построен по классике — стены из газосиликата 400 мм, утепление 50 мм, на фасаде — декоративная штукатурка. Входная группа выделена клинкером. Крыша утеплена (200 мм), кровля — мягкая черепица, мансардные окна — Velux. Межэтажное перекрытие — железобетонное. Окна энергоэффективные, в деревянном профиле.

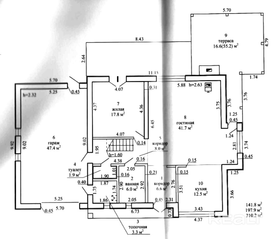
Общая площадь с учетом мансарды — 197,9 м2.

На первом этаже находятся кухня со встроенной бытовой техникой, гостиная с камином и выходом на крытую террасу с зоной барбекю, спальня и санузел, гараж на две машины со входом в дом.

На мансардном этаже — три спальни, санузел и светлый холл.

Интерьер дома современный, выполнен в светлых тонах.

Отопление на газу. Сердце системы — котел Bosch. На первом этаже обогрев идет за счет тёплых полов, на втором — радиаторов Kermi с терморегуляторами. Постоянную температуру во всех помещениях поддерживает «умный дом».

Дом подключен к центральному водопроводу, установлены повышающий насос Grundfos и система водоподготовки (два фильтра). Канализация местная. Подведено оптоволокно ByFly (до 200 Мб/с).

Имеется еще и баня 6×6 метров с террасой. В ней парная отделка из липы, система тёплый пол, душ и туалет.

Участок 14,2 сотки. По периметру огорожен забором из металлоштакетника с армированным ленточным фундаментом. На въезде установлены откатные ворота.

На территории имеется пруд с карасями, белыми амурами и линями. Растут взрослые сосны, березы, ели и кедр. Нашлось место и под небольшой огородик и плодовый сад.

Стоимость же этого загородного дома — 194 500 долларов.

Читайте также:

Смотрим крутой дом в 20 км от Минска. Сюрприз — своя пивоварня в подвале

Дома по цене трешки возле Минска. Смотрим свежие варианты с отделкой

Просторный дом в СТ в 20 км от Минска. Стоит дешевле трешки. Чем он хорош?

От 77 тысяч долларов, есть и в самом центре. Нашли сталинки с хорошим ремонтом в Минске

У меня на руках 30 тысяч долларов. Какие квартиры в центре Минска могу купить? Вот варианты

Читать:
Лента новостей
Опрос
Как вы считаете, покупать квартиру лучше сейчас или следует подождать?