Регистрация

Вспоминаем первые небоскребы Уручья. Сейчас тут много недорогих квартир

11.01.2025 27461

Эти эффектные высотки в 90-х годах приветствовали гостей Минска, въезжающих в город со стороны Уручья. Три монолитные башни (в которых были квартиры с необычными планировками) были построены по проекту белорусского архитектора, но у местных жителей считались «чешскими». Мы решили вспомнить про первые уручские «небоскребы» и рассказать, сколько в них сейчас стоят квартиры (спойлер — недорого).

Три высотных дома (в каждом — 21 этаж) в Уручье заложили еще в советском союзе, а закончили уже в новой стране. Высотки были построены друг за другом и сданы в 1992—1997 годах. Они разместились рядом с проспектом Независимости, сразу за МКАД. Кстати, в отличие от панельного окружения эти три дома в Уручье — пример монолитного бескаркасного домостроения.

За нестандартные планировки такие многоэтажки в советском союзе (и позже) называли «чешскими». Считалось, что здания построены по чешскому проекту. Однако проект уручских «небоскребов» был отечественным: его автором выступил архитектор «Белгоспроекта» Анатолий Фридман.

При этом от типовых домов тех лет столбики на Шугаева действительно отличались. Тут запроектировали просторные кухни, высокие (2,7 метра) потолки, большие прихожие и сразу два входа в гостиную: из кухни и из коридора (их, правда, многие новоселы потом заделали).

Каждая высотка состоит из одного подъезда и 146−158 квартир. В домах предусмотрено по три лифта: один грузовой и два пассажирских.

Каких-то отдельных дворов или закрытых площадок у многоэтажек нет. Все жители высотных домов пользуются общей детской площадкой вместе с соседней девятиэтажкой.

Зато рядом с домами есть все необходимое, что нужно для комфортной жизни. Любителей пеших прогулок порадуют зеленые зоны, музей камней и большой лесопарк с речкой. Прямо рядом с высотками расположены три детских сада, а также две школы. Кроме того, поблизости можно найти и множество магазинов. Ну и конечно большой плюс локации — станция метро «Уручье» в 5 минутах ходьбы.

Что здесь продается?

Сейчас в домах продаются 4 квартиры.

Самый экономичный вариант — однокомнатная квартира на Шугаева, 11, расположенная на 10-м этаже. Общая площадь этого жилья составляет 34 квадратных метра. Кухня от комнаты отделена встроенными шкафами. Санузел — совмещенный. Окна выходят во двор. Отмечается, что в квартире останется кухня и часть мебели. Стоимость — 60 тысяч долларов (1792 доллара — за метр).

Еще одна аналогичная однушка продается на Шугаева, 9, на 4-м этаже. Общая площадь квартиры составляет те же 34 квадрата, кухня — 8,8 квадрата. На полу лежит линолеум, во всех окнах установлены качественные стеклопакеты. Вид из окон — на парковую зону, нет домов напротив. Вся мебель и техника остается в квартире. Стоимость — 62,5 тысячи долларов.

А вот эта квартира, которая позиционируется как евродвушка, может похвастаться свежим ремонтом с заменой всех инженерных коммуникаций. Располагается жилье на 3-м этаже дома на Шугаева, 11. Площадь квартиры — 34 квадратных метра. На полу — керамогранит и ламинат 33 класса, на стенах — обои светлых тонов, декоративная штукатурка на лоджии. Радиаторы декорированы элементами индивидуального изготовления. Стоимость — 68,6 тысячи долларов (1988 долларов — за метр).

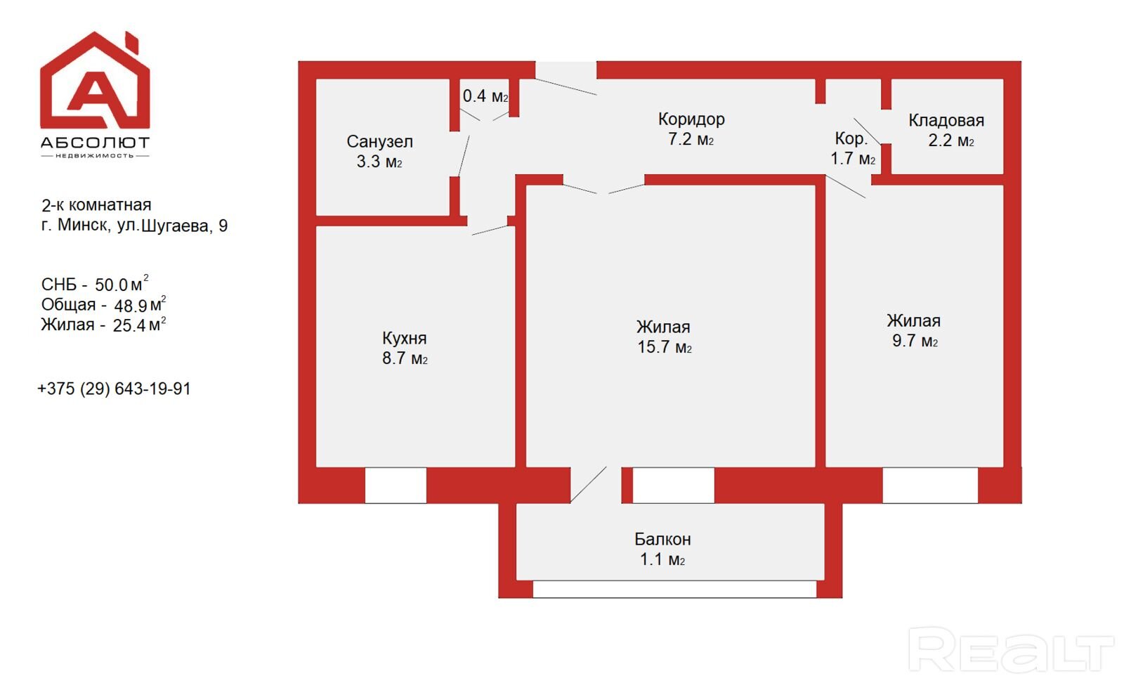
Также в продаже есть двухкомнатная квартира на Шугаева, 9. Она расположена на 15-м этаже. Общая площадь жилья составляет 50 квадратных метров. Жилье предлагается без отделки, все помещения подготовлены к ремонту. Все комнаты в квартире — раздельные, из гостиной есть выход на балкон. Стоимость — 72 тысячи долларов (1440 долларов — за метр).

Читайте также:

Этот новый жилой квартал изменил Ангарскую. А почем тут продают квартиры?

А вы знали, что в Минске есть панельки с двухэтажными квартирами? Показываем

Большие квартиры, подземный паркинг. Вспоминаем одну из первых высоток в Каменной Горке

Читать:
Лента новостей
Опрос
Как вы считаете, покупать квартиру лучше сейчас или следует подождать?