Регистрация

До 68 тысяч долларов. Как выглядят двушки с дешевым квадратным метром в Минске

09.12.2024 15319

Подобрали пять двухкомнатных квартир с самым дешевым квадратным метром — до 1 200 долларов. Почти все они находятся в Заводском районе, но есть вариант и в центре. Посмотрите, как они выглядят.

Улица Голодеда (Заводской район)

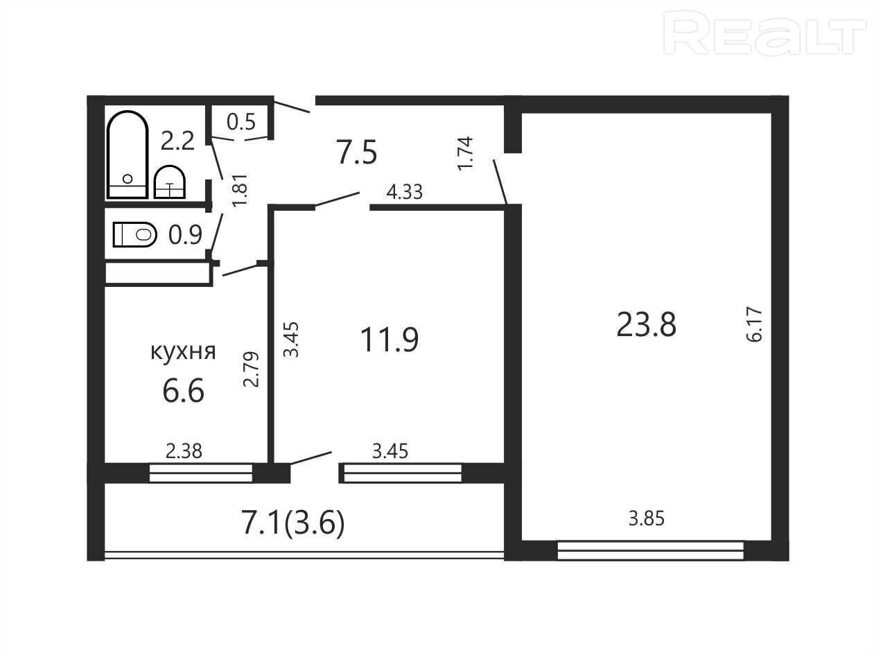
Девятиэтажка была построена в 1978 году на Голодеда, 8/2. На первом этаже тут продается двушка в 57 м². Кухня занимает 6,6 квадратного метра.

Квартира нуждается в косметическом ремонте. Тут установлены стеклопакеты, лежат деревянные полы. Одна из комнат — проходная.

Санузел — раздельный. Есть и длинная застекленная лоджия с выходом из кухни.

Рядом располагаются магазины, школы, сады. Недалеко находятся парк Красная Слобода и Чижовское водохранилище. 

Стоимость квадратного метра составляет 1 184 доллара. Двушка обойдется в 67 500 долларов.

Улица Краснозвездная (Советский район)

В кирпичной двухэтажной сталинке 1950 года постройки на Краснозвездной, 15 продается квартира. Она находится на первом этаже и занимает 57 м². На кухню отведено 6,8 квадратного метра. 

Квартира нуждается в ремонте. Тут две изолированные комнаты. В окнах установлены деревянные оконные рамы.

Санузел здесь совмещенный, балкона нет. Вместо этого покупателю отойдет подвальное помещение.

Дом находится в центре города, рядом с военным кладбищем. До станции метро «Площадь Победы» —10 минут ходьбы.

Цена метра — 1 140 долларов. Стоимость квартиры — 65 тысяч долларов.

Улица Ауэзова (Заводской район)

Пятиэтажку на Ауэзова, 11 возвели в 1969 году. На втором этаже находится двушка, которую выставили на продажу. Ее площадь — 49,9 м², размер кухни — 6 квадратных метров.

Квартира нуждается в ремонте. Изолированные комнаты выходят на разные стороны дома. В окнах стоят стеклопакеты.

Санузел — раздельный. Есть открытый балкон с выходом из жилой комнаты, а также кладовка.

Рядом с домом располагаются продуктовые магазины, парк и Чижовское водохранилище. 

Квадрат стоит 1 172 доллара. Двушка обойдется в 58 500 долларов.

Улица Ротмистрова (Заводской район)

Еще одна квартира продается в девятиэтажке на Ротмистрова, 48. Дом возвели в 1988 году. Двушка располагается на первом этаже панельки. Ее площадь — 52 квадрата, на кухню отведено 9,2 м².

В квартире аккуратно. Комнаты тут изолированы. Кухня укомплектована бытовой техникой. На полу лежит линолеум, потолки окрашены, установлены окна ПВХ. В коридоре стоит большой шкаф-купе.

Санузел — раздельный.

Рядом находятся детские учреждения образования, остановки общественного транспорта и магазины.

Квадратный метр стоит 1 192 доллара. Цена квартиры — 62 тысячи долларов.

Улица Шабаны (Заводской район)

Пятиэтажка 1963 года находится на улице Шабаны, 1. На последнем этаже выставлена на продажу двушка в 45,1 м². Площадь кухни составляет 5,8 квадратного метра.

Квартира продается под ремонт. Владельцы вынесли всю мебель. Одна из комнат является проходной. Полы тут деревянные, в мокрых зонах лежит плитка. Установлены деревянные стеклопакеты.

В совмещенном санузле стоит душевая кабина. Из гостиной есть выход на балкон.

Рядом с домом есть магазины, остановки общественного транспорта и детские учреждения образования.

Один метр обойдется в 1 186 долларов, а вся квартира стоит 53 500 долларов.

Читать:
Лента новостей
Опрос
Как вы считаете, покупать квартиру лучше сейчас или следует подождать?