Регистрация

В этом доме в начале 2000-х селились дипломаты и бизнесмены. А сколько тут стоят квартиры?

01.12.2024 16803

В конце 90-х и начале 2000-х этот дом рядом с парком Победы был чуть ли не одним из самых престижных в Минске. В многоэтажке на проспекте Машерова проживали бизнесмены, дипломаты, представители бомонда. А еще там было создано первое товарищество собственников в Минске. Мы решили вспомнить про элитный дом и посмотреть, почем тут сейчас продаются квартиры.

Этот дом находится на проспекте Машерова, 54 − напротив Театра белорусской драматургии. Возводили многоэтажку с закрытой территорией в 90-х годах. Несколько лет назад мы делали про жилое здание подробный репортаж.

Дом, который спроектировали архитекторы Галковский и Лобинская, насчитывает 8 подъездов, 11 этажей и 176 квартир. Строительство необычной для первых постсоветских лет многоэтажки растянулось на несколько лет и завершилось в 1998 году. Среди застройщиков дома были производственные фабрики «Алеся» и «Милавица». Подрядчиком выступал «Минскстрой».

Жилая новостройка на Машерова (тогда еще эта улица носила имя Варвашени) стала одним из первых примеров новой архитектуры, бросившей вызов однообразным панельным «коробочкам» 70−80 годов.

Кирпичный дом украсили эркеры, башенки, колонны и другие архитектурные элементы, которые были обязательными для элитного здания той поры. В многоэтажке разместили просторные квартиры с разнообразными планировками. Правда, вот потолки в доме получились обычными — 2.5 метра.

На первом этаже дома со стороны улицы организованы многочисленные коммерческие помещения. В элитной многоэтажке расположился банк, а также салон красоты, магазин мебели, аптека, кофейня и многое другое.

Внутренняя территория дома закрыта для посторонних, въезд на автомобилях сюда осуществляется по пропускам. Возле многоэтажки есть скамейки, благоустройство и парковка. А вот детская площадка рядом с домом совсем скромная.

Расположение у дома — самое что ни на есть центральное. В радиусе 200 метров от дома можно найти театры, банки, магазины, школы и детские сады. Отсюда можно пешком выйти к Немиге, Троицкому предместью и к набережной Свислочи. Рядом располагается и Парк Победы.

Что тут продается?

В доме на продажу сейчас выставлены две квартиры.

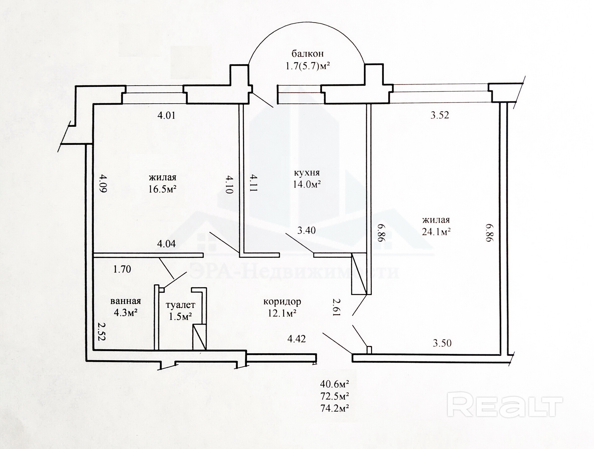
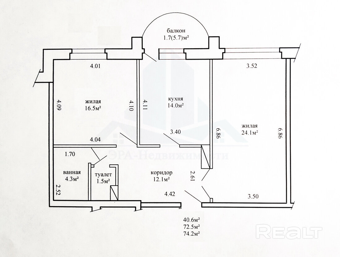
Самый экономичный вариант — двухкомнатная квартира, расположенная на третьем этаже дома. Общая площадь этого жилья составляет 74 квадратных метра. Двушка состоит из просторной кухни с полукруглым балконом, а также двух отдельных комнат. Квартира полностью готова для проживания, ремонт в квартире — не новый, но аккуратный, есть кухонный гарнитур. Стоимость квартиры — 125 тысяч долларов (1685 долларов — за метр).

А еще в элитном доме продается двухуровневая квартира площадью 184 квадратных метра. В этой квартире насчитывается шесть просторных раздельных комнат. На первом уровне располагается гостиная (50,1 квадрата), кухня (14,4 квадрата), столовая (16,6 квадрата) и санузел с душевой (2,4 квадрата). На втором уровне находятся 4 спальни, общая площадь которых составляет почти 60 квадратов, а также − гардеробная, ванная и санузел. На полу в комнатах в коридорах лежит дорогой паркет, в кухне, ванне, санузлах и лоджиях − плитка. В квартире установлены кондиционеры и бойлер в ванной. Стоимость квартиры — 349 тысяч долларов (1894 доллара — за метр).

Читайте также:

Известный фотограф посвятил этому минскому дому целый фотопроект. Сейчас там продают квартиру

С мебелью из массива и кладовой. Вот как выглядит самая дешевая квартира в закрытом ЖК у Комаровки

Дорого и красиво. В историческом доме в центре Минска продается двушка с антресольным этажом

Читать:
Лента новостей
Опрос
Как вы считаете, покупать квартиру лучше сейчас или следует подождать?