Регистрация

С квадратом ниже среднего. Нашли классную квартиру в таунхаусе в Минске

14.05.2024 10106

Этот вариант для тех, кто мечтает о загородном доме, но из Минска уехать пока не готов. В базе Realt появилась квартира в таунхаусе на две семьи. В ней есть мансардный этаж, терраса и выполнен стильный светлый ремонт. Метр в этом таунхаусе обойдется дешевле среднего в квартирах по Минску.

Дом находится по адресу 2 переулок Багратиона, 36. Это частный сектор недалеко от Долгиновского тракта, Сельхозпоселка и парка Дружбы народов.

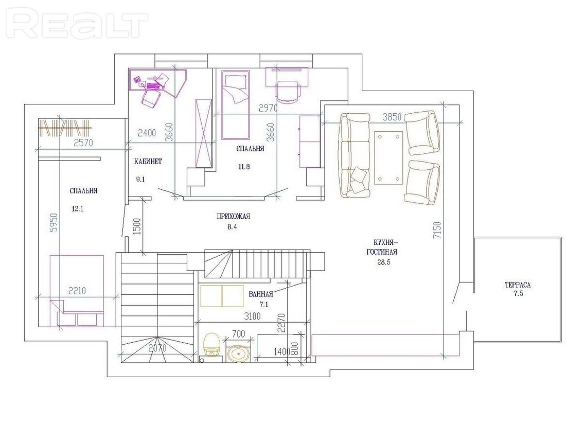
В квартире два этажа, есть мансардный. Общая площадь — 107 квадратов. Кухня, совмещенная с гостиной, занимает чуть меньше 30, по 12 метров приходится на каждую их двух спален, 9 квадратов — кабинет. Все стены выкрашены в белый цвет. Ремонт выглядит свежим и стильным. Потолки — 2,8 метра.

Вот как все смотрится на плане.

На мансардном этаже — большая спальная комната и второй санузел. В одном из санузлов ванна стоит прямо под окном в потолке.

В квартире индивидуальная система отопления, все коммуникации центральные, проведено оптоволокно. В таунхаусе живут две семьи, у каждой свой вход. Стоит квартира 139 900 (1 304 доллара за метр).

Читайте также:

Дома в пригороде Минска на любой вкус. Достойные варианты с гаражами, банями и даже зимним садом

«Живем в большом лесу». Как супруги променяли квартиру в центре Минска на хату в глуши

В центре Минска сохранились дома, как с советской открытки. Посмотрели, что тут сейчас продается

Читать:
Лента новостей
Опрос
Как вы считаете, покупать квартиру лучше сейчас или следует подождать?