Регистрация

Рядом с метро и Комаровкой. Смотрим просторную двушку в известном доме в центре Минска

02.05.2024 13975

В разделе «Горячие предложения» на Realt появилась квартира в известном доме на площади Якуба Коласа. В этой двушке трехметровые потолки и просторные комнаты, а общая площадь — больше 70 квадратов. Метр выходит совсем немного дороже среднего по Минску.

Это дом из красного кирпича стоит на площади Якуба Коласа. До входа в метро буквально пару минут. Рядом с этим зданием — белорусскоязычная 23-я гимназия, куда каждый год летом родители выстраиваются в очередь, чтобы записать детей. А в этом здании — Национальный центр современных искусств, где постоянно проходят выставки.

Еще этот дом вы можете помнить по рекламе с жизнеутверждающими словами, которая много лет находится на крыше и видна издалека. Например, вот такая.

За 10 минут можно дойти или подъехать до Комаровки, там же «Силуэт», «Импульс», «Дом мебели». В доме есть «Марко» и «Электросила», в соседних — салон красоты, аптека, небольшие магазины «Соседи» и «Копеечка».

В доме 8 этажей, квартира находится на втором, есть лифт. Дом кирпичный, построен в 1958 году по индивидуальному проекту. Сегодня он считается памятником архитектуры. По периметру дома установлены камеры видеонаблюдения.

Стены в доме толстые, 65 см. Поэтому зимой в квартире тепло и круглый год не слышно соседей. Наружные стены квартиры утеплены, обшиты шубой. На лестничной площадке две квартиры.

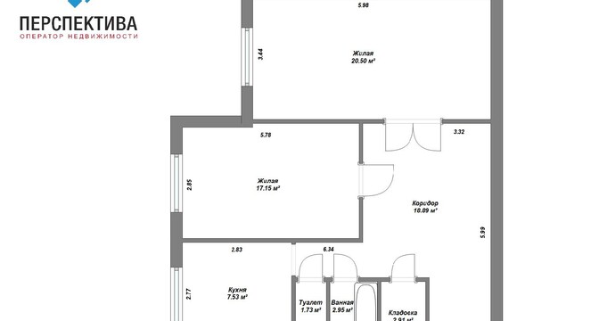
Общая площадь двушки — 72 квадрата, жилая — 38. Комнаты — 21 и 17 квадратов. Кухня — 7,5. Есть кладовка площадью почти три квадратных метра. Санузел в квартире раздельный.

Стоит эта квартира 114 500 долларов. Метр обойдется в 1 598 долларов.

Читайте также:

Самый дорогой метр сейчас в трешках. Смотрите, как подрос «Уютный» за библиотекой

В квартале для минчан в Смолевичах строят новую школу. Фасады будут в стиле Малевича

Присмотрели современную дачу с видом на лес. Стоит как однушка в Минске

Читать:
Лента новостей
Опрос
Как вы считаете, покупать квартиру лучше сейчас или следует подождать?