Регистрация

От 38 до 46 тысяч долларов. Как выглядят и сколько стоят самые дешевые однушки в Минске

04.03.2024 11265

Нашли в базе Realt самые дешевые однокомнатные квартиры в пяти районах Минска: Партизанском, Фрунзенском, Первомайском, Октябрьском и Заводском. Их цена варьируется от 38 до 46 тысяч долларов. Посмотрите, как они выглядят.

Улица Волгоградская (Первомайский район)

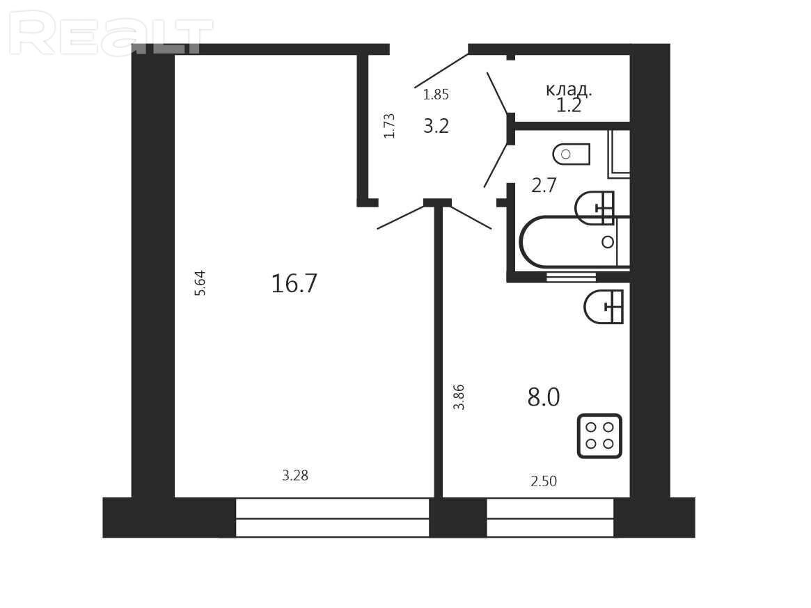
Пятиэтажка на Волгоградской, 47 была построена в 1961 году. На последнем этаже тут продается однушка в 31,71 м². Кухня занимает 5,88 м².

В квартире отдельная жилая комната с выходом на балкон. Тут совмещенный санузел, облицованный плиткой. На полу в остальной части квартиры лежит линолеум. В однушке заменены электропроводка, входные и межкомнатные двери, сделаны натяжные потолки, установлены стеклопакеты.

Дом находится рядом с двумя большими парками и станцией метро "Московская".

Стоимость квартиры 46 тысяч долларов. Метр — 1 451 доллар

Улица Чигладзе (Фрунзенский район)

Дом на Чигладзе, 2 был возведен в пять этажей в 1971 году. Квартира, что выставлена на продажу, находится на первом этаже и занимает 21,2 м². Кухня — 5,02 м².

В 2021 году в доме был проведен капремонт. В однушке есть отдельная жилая комната, но без балкона. Санузел — совмещенный.

Дом находится рядом с ТЦ Palazzo и недалеко от Свислочи.

Цена за однушку — 37 900 долларов. Метр обойдется в 1 788 долларов.

Улица Гризодубовой (Сокол, Октябрьский район)

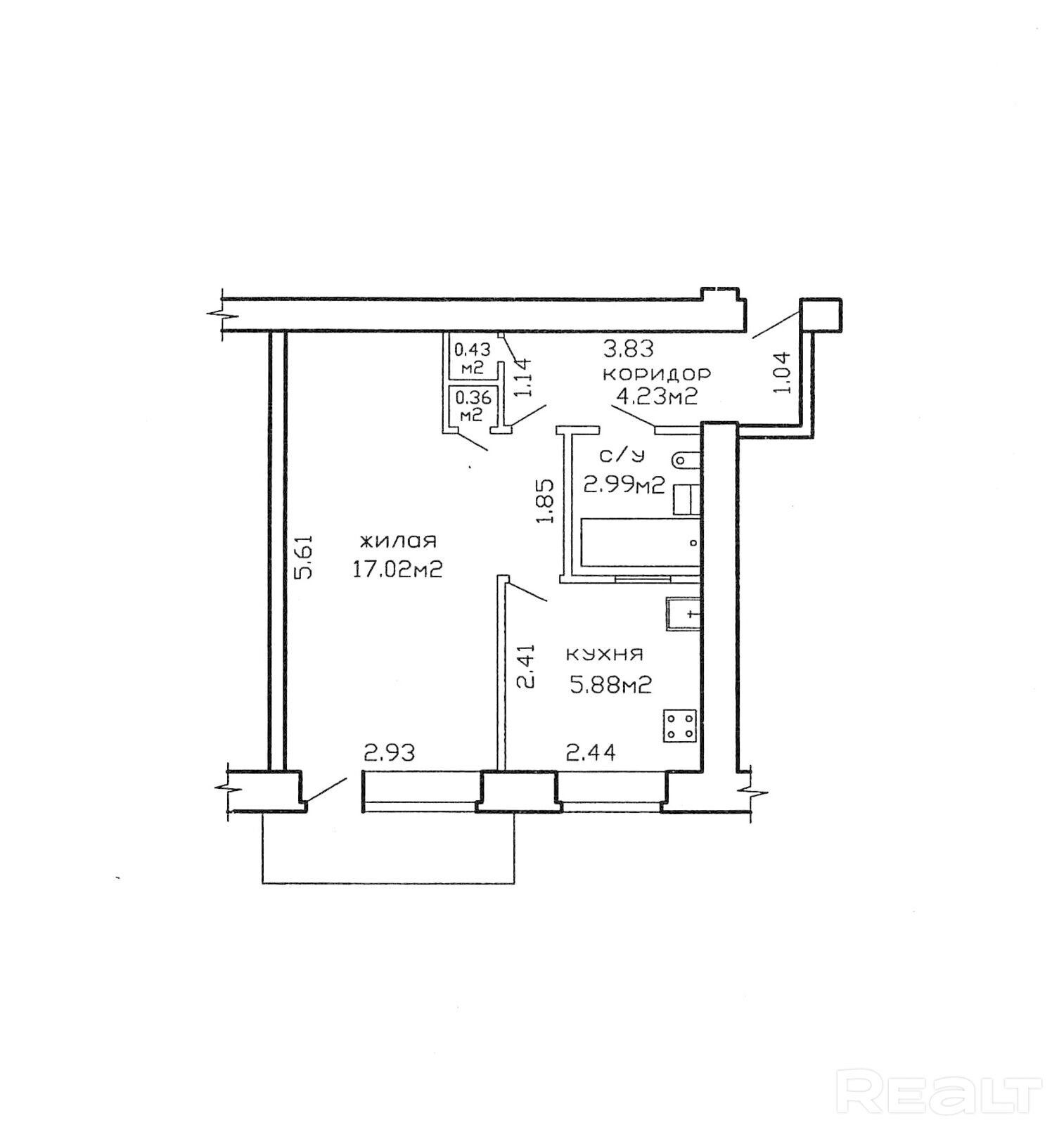
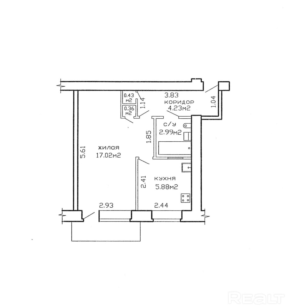
Дом в девять этажей на Гризодубовой, 3 построили в 2011 году. Квартира продается на шестом этаже. Площадь однушки — 40 квадратных метром. Кухня занимает 9,2 м².

В квартире установлены стеклопакеты, счетчики воды и газа. Здесь есть застекленная лоджия. Выход на нее располагается в кухне. Санузел —раздельный. На полу лежат линолеум и плитка. 

Дом находится в микрорайоне Сокол. Рядом лес и река Волма.

Квартира стоит 43 тысяч долларов. Квадратный метр — 1 075 долларов

Улица Павловского (Городок, Заводской район)

В пятиэтажке 1986 года постройки на Павловского, 32 продается однокомнатная квартира на последнем этаже в 36,8 м². Кухня занимает 8,6 м².

Тут отдельная жилая комната с выходом на застекленную лоджию. Санузел — раздельный. В ванной установлена душевая кабина.

Дом стоит в окружении соснового леса. До станции метро «Могилевская» около 15 минут на общественном транспорте.

Стоимость квартиры — 42 800 долларов. Цена за квадратный метр — 1 163 доллара.

Улица Ванеева (Партизанский район)

Квартира продается на Ванеева, 18. Дом имеет девять этажей и был возведен в 1966 году. Однушка располагается на пятом и занимает 31 м², кухня — 8 квадратных метров.

Тут нет балкона, санузел — совмещенный. Комната имеет небольшую нишу, которую можно грамотно использовать при зонировании. На полу здесь лежат доски, в санузле — плитка.

Поблизости находятся Антоновский парк и Слепянская водная система. До метро «Тракторный завод» около 10 минут.

Квартира стоит 44 800 долларов. Метр — 1 445 долларов.

Читайте также:

Этот элитный ЖК строил «Тамбаз» - и достроил. Вспомнили еще один комплекс из нулевых

Нашли однушки возле центра Минска с отличным ремонтом, но без мебели. Вот цены

Эту сталинку в центре Минска строили для железнодорожников. А сейчас там продают красивую квартиру

Расскажите о любимом месте в доме или в квартире — и выиграйте 200 рублей! Подробности конкурса

Читать:
Лента новостей
Опрос
Как вы считаете, покупать квартиру лучше сейчас или следует подождать?