Регистрация

Каждая третья — дороже 100 тысяч долларов. Какие квартиры и почем покупают в Новой Боровой

19.12.2023 8423

Новая Боровая — один из самых известных жилых комплексов. Здесь уже возведено более 70 жилых домов и еще 18 на стадии строительства, в которых уже были открыты продажи. Мы решили посмотреть, как здесь живет вторичный рынок, какие квартиры тут покупали в 2023 году и сколько они стоили.

В ЖК «Новая Боровая» на данный момент сдано в эксплуатацию более 70 жилых домов, а за 2023 год были анонсированы продажи в 11 новых домах на стадии строительства. В то же время на вторичном рынке жилья в 2023 году было заключено более 500 сделок купли-продажи. Мы решили посмотреть, какие квартиры здесь покупали и сколько они стоили.

Больше всего сделок совершалось с квартирами площадью от 50 до 60 м² - каждая четвертая сделка приходится на такие квартиры. Также высоким спросом на вторичном рынке пользовались квартиры от 30 до 40 м² - доля таких квартир составляет 21%.

Самая маленькая квартира, которую купили здесь в 2023 году, была общей площадью 25 м². Эта студия обошлась покупателю в 53 тысячи долларов* (2120 $ за квадрат).

Маленькие квартиры до 30 м² покупали здесь в 2023 году в 8% случаев.

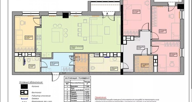
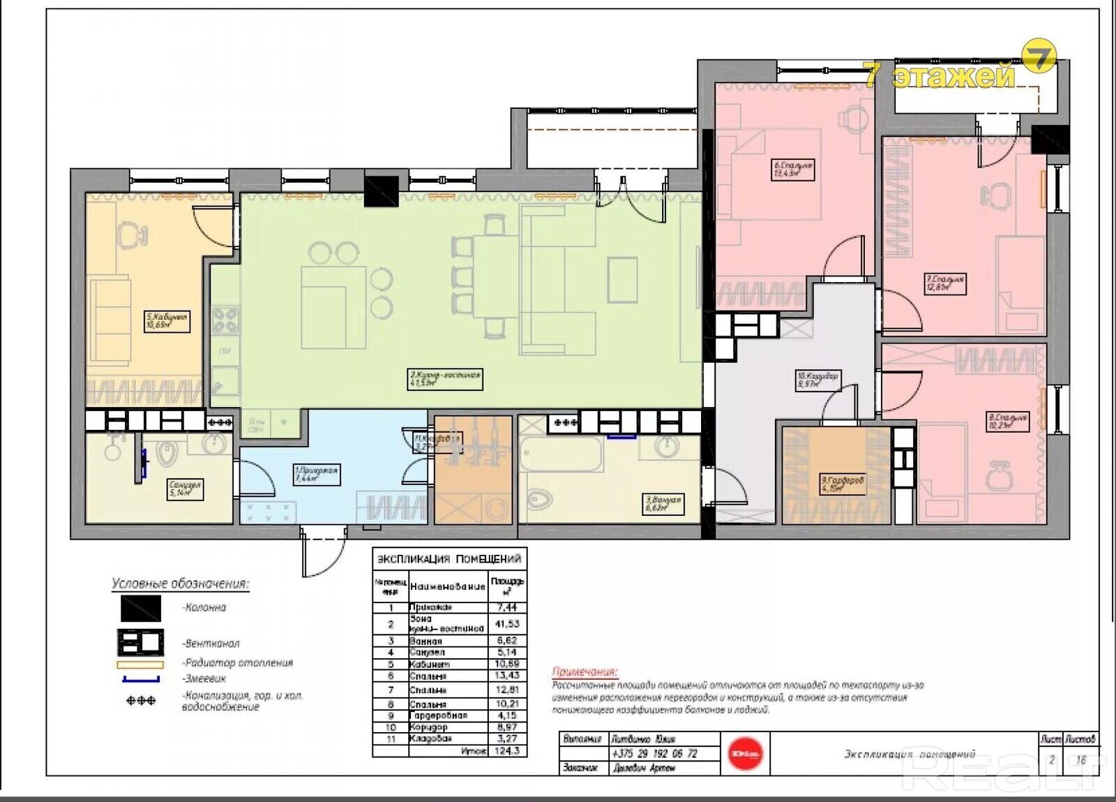
Самая большая квартира обошлась покупателю в 211 тысяч долларов* (1647 $ за квадрат). Это 5-комнатная квартира общей площадью 128.1 м², на которых расположились просторная кухня-гостиная, спальня, две детских комнаты, кабинет/жилая комната, 2 санузла, гардеробная, помещение для хоз. блока, в котором есть стиральная машина, бойлер и место для сушки белья, 2 лоджии с видом на лес и город. Высота потолков — 3.2 м.

Квартиры от 90 м² покупали здесь в 2023 году в 4% случаев.

Ценовой рекорд

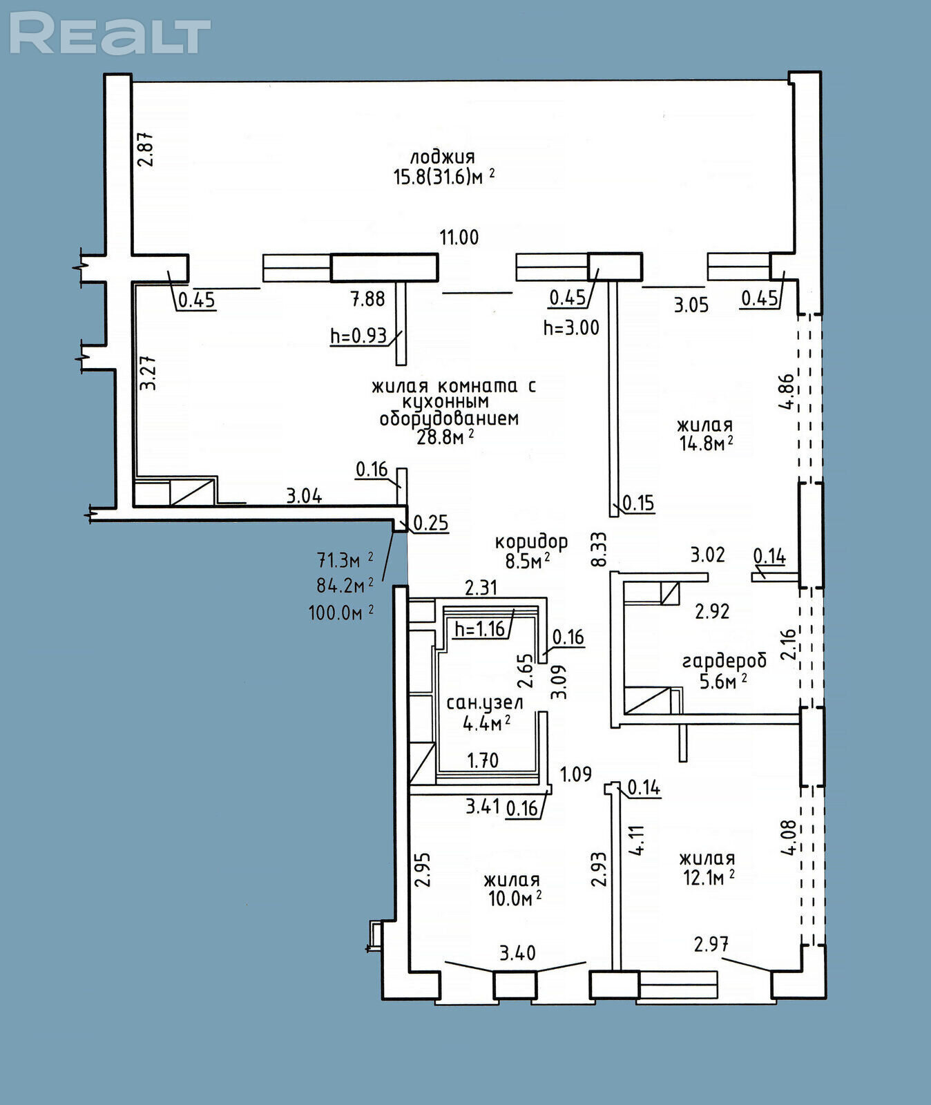
Самую дорогую квартиру купили за 233 тысяч долларов* (2330 $ за квадрат). Это 4-комнатная квартира общей площадью 100 м² с просторной террасой в 15.8 м². В квартире нет мебели, но выполнен ремонт по дизайн-проекту.

30% сделок пришлось на квартиры стоимостью от 100 тысяч долларов, а 4% - от 150 тысяч долларов.

*подготовлено на основании информации, полученной из Реестра цен на земельные участки https://pr.nca.by/.

Читать:
Лента новостей
Опрос
Как вы считаете, покупать квартиру лучше сейчас или следует подождать?