Регистрация

Просто и стильно. Посмотрите, какой красивый дом для жизни продается недалеко от Минска

16.10.2023 26956

Этот дом располагается в СТ Смолевичского района. Внутри и внешне он отделан деревом и выглядит очень минималистично. Правильно подобранная мебель и большие окна делают комнаты стильными. Оцените объект и узнайте, сколько он стоит.

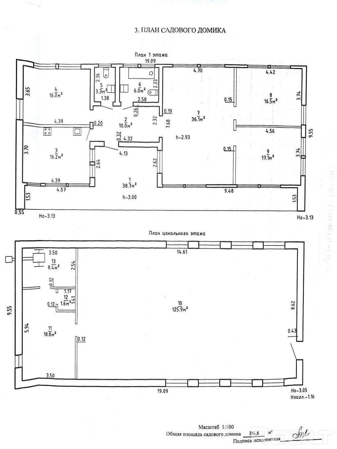
Деревнянный дом находится в СТ «АгроБелОИ-1» в Смолевичском районе — около 30 км от Минска. Его построили в 2015 году. Здесь также есть отапливаемый цокольный этаж, который можно использовать под баню или склад. Общая площадь строения — 314,6 м². Из них жилая — 121,2 м².

В доме обустроена отдельная кухня, три комнаты и большая гостиная. Также тут есть санузел и ванная. Топочная расположилась на цокольном этаже.

В доме есть мебель в стиле ретро, которая создает особую атмосферу и не нагружает интерьер. Высота потолков достигает 2,93 метра. В комнатах установлены панорамные окна.

Дом отапливают с помощью газового котла, но имеется и электрический бойлер, и твердотопливный котел с большим резервуаром горячей воды. Тепло в гостиной поддерживает камин, сделаны теплые полы в прихожей и санузлах. Вода поступает из собственной скважины глубиной около 60 метров. Есть доступ к сезонной воде от СТ.

К дому прилегает небольшая крытая терраса.

Участок — стандартный — 10 соток. Он огорожен. Во дворе растут многолетние деревья и кустарники.

Дом стоит 130 тысяч долларов.

Читайте также:

Таких лоджий вы еще не видели! В модернистском доме в Минске продают квартиру, где время застыло

Знаете этот неприметный VIP-дом на проспекте Независимости? Показываем, какие тут есть квартиры

Нашли милую дачу прямо в сосновом лесу. В доме есть все удобства, а стоит он недорого

Читать:
Лента новостей
Опрос
Как вы считаете, покупать квартиру лучше сейчас или следует подождать?