Регистрация

Альтернатива двушке — дом рядом с Минском. Смотрим недорогие варианты под чистовую отделку

28.09.2023 14536

Станислав Журавлевич

В этой подборке мы собрали варианты новых загородных домов, которые всем хороши — локация, современный архитектурный проект, качественные материалы, подведены коммуникации. Единственный нюанс — все они без чистовой отделки. Зато и стоят они сравнительно недорого — в пределах 50−60 тысяч долларов.

Свидно, Логойское направление, 43 км от МКАД

Деревня находится в Логойском районе, вокруг леса, рядом речка и частное озеро. Горнолыжный центр «Силичи» и горнолыжный курорт «Логойск — в 15 километрах.

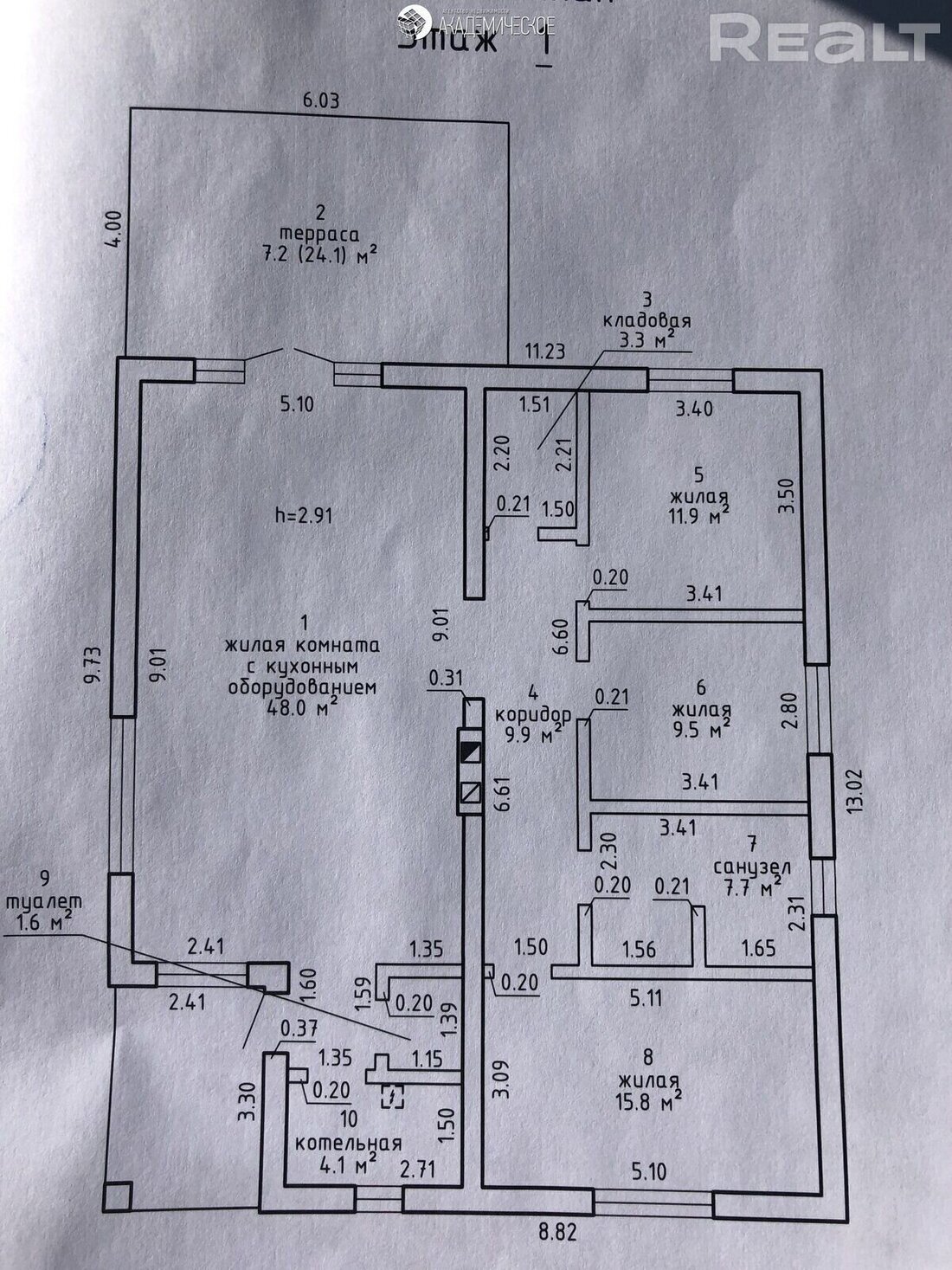
Здесь продается новый дом на 119 квадратов. Стены сложены из газосиликатных блоков, утепление – каменная вата 50 мм. На утепленной крыше – металлочерепица.

В доме три раздельные комнаты, просторная кухня-гостиная, гардеробная, два санузла. Высота потолков - 2,9 метра. Дом готов под чистовую отделку, электрика и сантехника разведены, стены оштукатурены.

Отопление электрическое (котел 9 кВт), подключен льготный тариф. Установлен водонагреватель косвенного нагрева на 150 литров. Есть возможность подключить «Умный дом» и функция обесточивания дома одной кнопкой.

Участок ровный, площадь 13,3 сотки. Плюс отличный бонус - баня.

Стоимость этого дома - 58 000 долларов.

Галимцы, Раковское направление, 35 км от Минска

Деревня находится в 8 километрах от Ракова. В 3 км от участка находятся рыбацкий лагерь Выгоничанка, озеро с пляжной зоной, а также детские оздоровительные санатории и лагеря. Расположение участка отличное — с одной стороны бескрайние поля, с другой — река и лес.

Дом построен в 2022 году по индивидуальному проекту. Стены — из газосиликатных блоков с утеплением. Фасад оштукатурен и покрашен. Перекрытия утеплены минеральной ватой. На крыше лежит металлочерепица цвета графит.

На первом этаже находятся просторная кухня-гостиная с выходом на террасу, две изолированные спальни и совмещенный санузел.

На втором этаже можно обустроить дополнительную жилую комнату на 25 квадратов.

Дом готов под чистовую отделку.

Электрика (3 фазы) разведена по дому, установлены два счётчика с разными тарифами, везде полы с подогревом, проложен водопровод, отопление — электрокотел.

Размер участка — почти 13 соток. По проекту утверждено строительство гаража и бани.

Стоимость — 52 900 долларов.

СТ «Росинка», Могилевское направление, 17 км от МКАД

Садовое товарищество находится в 17 минутах езды на авто от метро «Могилевская». К нему удобные подъездные пути (рядом трасса М5), остановка общественного транспорта в 10 минутах ходьбы от дома. Сюда приезжает автолавка 2−3 раза в неделю.

Здесь продается современная дача для круглогодичного проживания на 84 квадрата. Это капитальное строение с о стенами из газосиликатных блоков и вальмовой крышей с покрытием из металлочерепицы. Окна ПВХ с двухкамерными стеклопакетами, теплая входная дверь. Фасад отделан декоративной штукатуркой и декоративным кирпичом. Потолки высокие — 3,1 метра.

Внутри просторная кухня-гостиная с выходом на террасу, две спальни, санузел и котельная. При желании есть возможность установить камин в гостиной.

Отопление электрическое, выделенная мощность на дом — 15кВт. Вода из собственной скважины (42 метра).

Участок ровный, квадратный, 10 соток. Он огорожен, установлены откатные ворота на въезде.

За этот вариант просят 59 900 долларов.

Читайте также:

«Вложили много сил и денег». Под Минском продается дом, в котором никто не жил — все в идеальном состоянии

Молодая семья построила стильную дачу в деревне за три месяца. Съездили к ним в гости

Можно жить автономно. В 25 км от Минска продается дом у леса, в котором продумано все до мелочей

Без чистовой отделки, зато дешевле. Дома до 25 км от Минска с отоплением и водопроводом

Добротные хаты в деревнях в пределах 100 км от Минска. Вот лучшие варианты под дачу или агроусадьбу

Минчане продали двушку — денег хватило на новый дом с отделкой. Смотрим, что у них получилось

В каких случаях нужно размещать новость о продаже дома на Realt? Разбираемся

Читать:
Лента новостей
Опрос
Как вы считаете, покупать квартиру лучше сейчас или следует подождать?