Регистрация

Эту элитку из «нулевых» вы вряд ли знали. Нашли интересный минский дом, в котором всего 40 квартир

13.08.2023 20042

В тихом центре Минска есть многоэтажка, в которой расположено всего 40 квартир. Такие дома строили в «нулевых» и называли элитными. Сегодня дом на улице Кропоткина по-прежнему отличается от соседей. Здание имеет интересный фасад «под абстракционизм», может похвастаться закрытым двором и исключительно порядочной публикой (именно так пишут в объявлениях). Рассказываем, что там продается.

Находится этот дом на улице Кропоткина. Здание с необычным фасадом а-ля Малевич возвели в 2004-м году. Многоэтажка прячется во дворе за школой и другими домами, поэтому не заметна с улицы.

У дома — своя закрытая территория. Попасть на парковку можно только через шлагбаум. Возле монолитной многоэтажки, кстати, расположено 40 парковочных мест − ровно по количеству квартир. Также тут есть своя детская площадка.

Все квартиры в доме имеют достаточно большие площади. Во многих — шестиметровые лоджии и сразу по два санузла.

Также надо отметить весьма презентабельный холл многоэтажки. Несмотря на то, что дому уже почти 20 лет, внутри здание выглядит вполне современно.

Рядом с домом находятся школы и детские сады. Отсюда легко дойти пешком до набережной Свислочи, гостиницы «Беларусь», Комсомольского озера и парка Победы.

Сейчас в многоэтажке продаются 4 квартиры. Цены на жилье в престижном доме начинаются от 134 тысяч долларов.

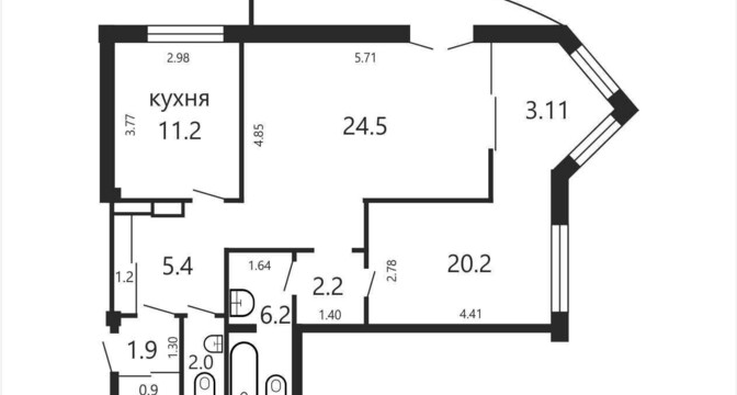
Самый недорогой вариант — двухкомнатная квартира на пятом этаже. Оригинальная планировка квартиры, как отмечает автор объявления, открывает безграничные возможности для организации жизненного пространства. И действительно, общая площадь этого жилья под стать хорошей трешке — 82 квадратных метра. К тому же, в квартире есть сразу два санузла. Новому владельцу достанется вся бытовая техника (посудомоечная машина, микроволновая печь, варочная панель и духовой шкаф − Elektrolux, холодильник и стиральная машина — Samsung). Стоимость квартиры — 134 тысячи долларов.

Также в продаже есть трехкомнатная квартира на втором этаже. Общая площадь этого жилья — 112 квадратных метров. В квартире − просторная гостиная, совмещенная с кухней, а также 2 спальни. Жилье полностью меблировано и оснащено бытовой техникой. Стоимость — 170 тысяч долларов.

Еще один интересный вариант — четырехкомнатная квартира на десятом (последнем) этаже. Площадь четырешки — 147 «квадратов». У жилья − практичная планировка (мало несущих стен, возможность переделки на любой вкус). Благодаря толстым монолитным стенам зимой в квартире тепло, а летом прохладно. Квартира состоит из 4 просторных комнат, кухни, двух гардеробных помещений и двух санузлов. Стоимость — 200 тысяч долларов.

Самое дорогое предложение в доме — большая трехкомнатная квартира на шестом этаже. Площадь этого жилья — 129 квадратных метров. Она полностью готова к проживанию новых жильцов. В отделке квартиры использованы качественные импортные материалы (паркет, итальянская плитка, натуральный камень), установлена импортная бытовая техника. Состоит квартира из трех комнат, кухни, гардеробной и двух санузлов. Стоимость — 210 тысяч долларов.

Читать:
Лента новостей