Регистрация

«Белгазпромбанк» продает коммерческую недвижимость: есть объекты в Минске и в других городах Беларуси

12.06.2023 3244

* На правах рекламы

Хотите открыть или масштабировать свой бизнес? «Белгазпромбанк» предлагает коммерческие помещения: есть варианты в центре Минска, в спальных районах столицы, а также в других городах Беларуси. Рассказываем о предложениях.

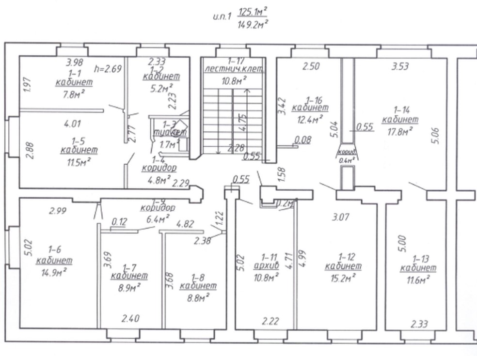
Комплекс зданий на Октябрьской улице (Минск)

Многофункциональный комплекс расположен по адресу ул. Октябрьская, 16. Это творческий и развлекательный район, где сконцентрированы кафе, мастерские, студии, коворкинги.

Комплекс является историко-культурной ценностью и состоит из трех зданий площадью 4 157,2 м², 1 115 м² и 886,1 м².

Проведено водоснабжение, оборудованы санузлы, системы кондиционирования и вентиляции, компьютерная сеть. Электроснабжение 220 и 380 В.

Есть удобные подъездные пути, парковка у здания. Можно зарегистрировать юридический адрес.

Стоимость — 13 600 000 BYN с НДС.

Здание на улице Жилуновича (Минск)

Адрес административно-хозяйственного здания — ул. Жилуновича,11. До Партизанского проспекта — одна остановка, до станции метро «Партизанская» — 690 м. В шаговой доступности есть столовая, медицинский центр, универмаг «Беларусь».

В состав комплекса входят:

  • помещения общественного питания площадью 279,3 м² с работающим кафе «Ребус»;
  • помещения торгового назначения площадью 345,6 м²;
  • помещения административного назначения (второй, третий и антресольный этажи).

В здании есть все коммуникации: электроснабжение, вентиляция, пожарная сигнализация, центральные отопление, канализация, холодное и горячее водоснабжение.

Объект подойдет для размещения офисов, магазинов, кофеен. Большая часть площадей уже сдается в аренду.

Стоимость — 5 500 000 BYN с НДС.

Изолированное помещение на улице Осипенко (Минск)

Помещение находится на первом этаже 12-этажного кирпичного жилого дома, расположенного по адресу ул. Осипенко, 2. Это развитый район с насыщенной инфраструктурой и рекреационными зонами. До центра города можно дойти пешком.

Общая площадь помещения — 156,2 м². Есть входы из подъезда жилого дома и со стороны Старовиленского тракта.

В помещении есть несколько санузлов, на окнах установлены металлические роллеты. У входа и на территории двора — просторные парковки.

Стоимость помещения — 485 000 BYN с НДС.

Изолированное помещение на улице Аэродромной (Минск)

Офисное помещение находится на втором этаже двухэтажного кирпичного здания по адресу ул. Аэродромная, 119. Это активно растущий и развивающийся район — рядом с комплексом Минск Мир, станциями Зеленолужской линии метро и вторым транспортным кольцом.

Общая площадь помещения — 149 м². Внутри — кабинетная система, есть все коммуникации и собственный санузел.

Рядом со зданием расположена вместительная парковка.

Стоимость — 245 000 BYN с НДС.

Какие еще объекты есть в продаже?

Среди других предложений — комплекс недвижимости в Бресте, гостинично-ресторанный комплекс в центре Гродно, изолированные помещения в Могилеве, здание магазина в городе Мосты. Изучить остальные предложения от «Белгазпромбанка» вы можете здесь.

Чтобы узнать об объектах больше, позвоните по номерам +375 (17) 218−36−85, +375 (44) 519−22−21, +375 (44) 588−83−06 или оставьте свой телефон в форме ниже.

Чтобы узнать о предложениях больше, оставьте свой номер здесь

Нажимая на кнопку «Отправить заявку», вы, предварительно ознакомившись с Информацией для субъекта персональных данных, Политикой конфиденциальности, даете согласие на обработку персональных данных в рамках спецпроектов на Realt на следующих условиях.

Читать:

Эксклюзив Realt.by

Лента новостей
Опрос
Как вы считаете, покупать квартиру лучше сейчас или следует подождать?