Регистрация

Компактный СПА-дом в элитном СТ под Минском: рядом с озером и лесом, внутри хамам и сауна

12.04.2023 8838

Станислав Журавлевич

В респектабельном СТ «Крылово-2012» под Минском выставили на продажу интересный объект — деревянный дом с современной архитектурой и очень необычным наполнением. Кроме жилой части со стильным интерьером, владельцы выделили место под сауну, хамам, СПА-бассейн и зону барбекю. Так что в нем созданы идеальные условия для загородного отдыха. Интересно, сколько он стоит?

СТ «Крылово-2012» находится между двух водохранилищ — Дички и Крылово. Место меньше всего похоже на классические дачи — здесь асфальт, свет, газ, центральный водопровод, оптоволокно, вокруг застройки лесной массив, охраняемая огороженная территория с видеонаблюдением.

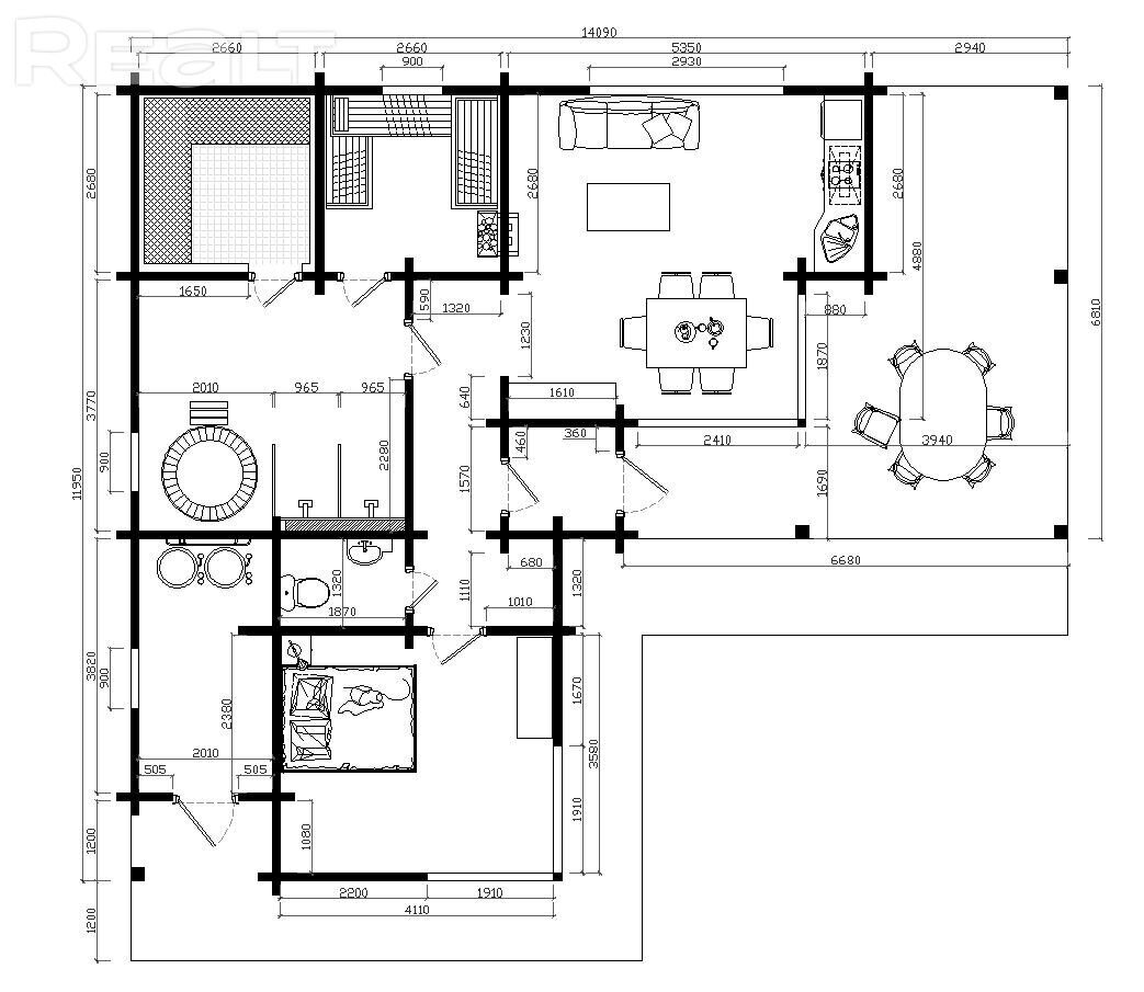
Именно здесь продается одноэтажный коттедж на 110 квадратов, внутри которого кроме стандартного набора жилых помещений, можно найти сауну, хамам и даже СПА-бассейн.

В объявлении говорится, что дом строился по индивидуальному проекту владельца. Он одноэтажный, с высокими потолками и плоской крышей. Стены у него из клееного бруса, обработаны немецким маслом OSMO. Панорамные окна — современные стеклопакеты в деревянном профиле. Полы во всем доме теплые, облицованы испанским керамогранитом.

Дом имеет Г-образную форму, входная зона является частью большой террасы с зоной барбекю. Дальше попадаем в прихожую, из нее в гостиную-кухню.

Спальня в этом доме одна, в ней четыре спальных места.

За сдвижной дверью, состоящей из двух массивных дубовых слэбов, находится то, ради чего и нужен загородный дом — зона релаксации и отдыха.

Тут мы находим парилку, которая может работать как в режиме сауны, так и русской бани, хамам, облицованный натуральным камнем, СПА-бассейн и две душевые.

Отапливается дом электричеством, но имеется возможность подключить газ. Все инженерные системы автоматизированы и завязаны на «Умный дом» с удаленным управлением и круглосуточным видеонаблюдением.

Читать:
Лента новостей
Опрос
Как вы считаете, покупать квартиру лучше сейчас или следует подождать?