Регистрация

На аукционе купили огромную однушку в Минске, которую не могли продать несколько лет. И что по цене?

26.01.2022 27025

Сегодня в Минске на аукционе продали 78-метровую однушку на улице Германовской, 9, которую не могли продать несколько лет. Об этом Realt рассказали в Минском городском центре недвижимости. Рассказываем подробности и сообщаем итоговую цену.

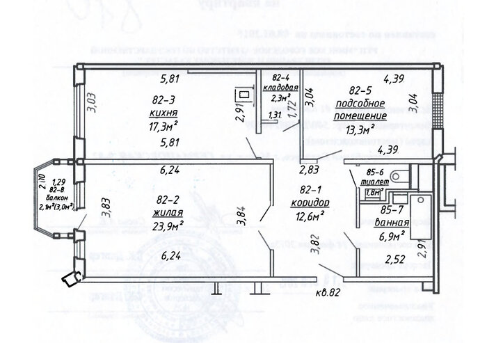
Собственником квартиры на первом этаже в панельном доме 2015 года постройки является «ЖРЭО Октябрьского района Минска. При площади в 78 квадратных метров она по факту является однокомнатной. Здесь есть большая кухня (17 «квадратов»), жилая комната (23 «квадрата») и подсобное помещение с окном (13 «квадратов»).

Жилое помещение пытались продать в 2019-м, 2020-м и 2021-м годах. При этом, если три года назад за квартиру просили 182 тысячи рублей (около $ 86 тысяч), то теперь начальная стоимость равнялась 153 тысячам (около $ 60 тысяч).

На торги заявилось пять участников. В итоге квартира была продана одному из них за 195 500 рублей или за около 74,6 тысячи долларов по курсу Нацбанка на сегодняшний день (около 950 долларов за «квадрат»).

При грамотном подходе планировка однушки позволяет сделать из нее двушку или даже евротрешку.

Читать:
Теги:

Страны: Беларусь

Темы: Эксклюзив Realt.by; Новости

Лента новостей
Опрос
Как вы считаете, покупать квартиру лучше сейчас или следует подождать?