Регистрация

Спальня на балконе и ванная в розовом кубе. Вот какое оригинальное решение нашла дизайнер для небольшой квартиры-студии

25.01.2022 11634

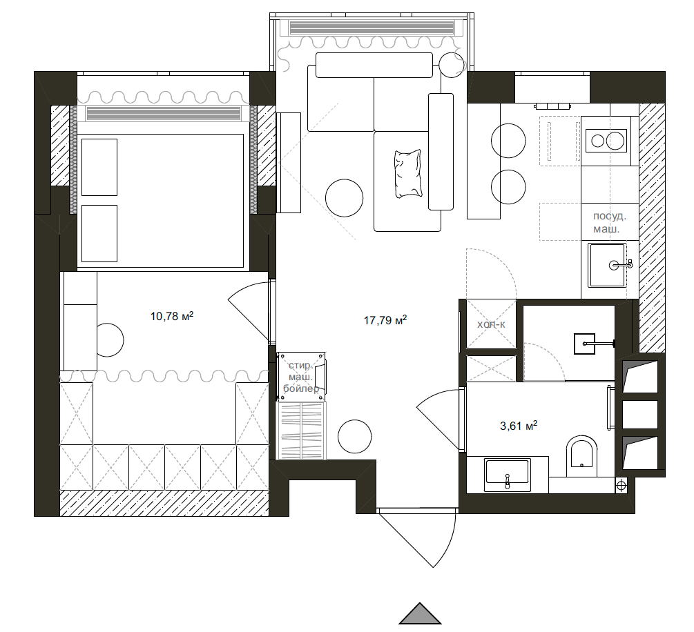
Эта киевская квартира предназначалась для молодой девушки. Заказчице нужны были полноценные гардеробная, ванная комната с душевой, кухня-гостиная с барной стойкой и спальня с туалетным столиком и двуспальной кроватью. Уместить все вышеперечисленное необходимо было в 32-метровой студии. За непростую задачу взялась дизайнер Ольга Бондарь. Не поверите, но все получилось! О воплощенном проекте рассказывает Admagazine.ru.

Ольга Бондарь говорит, что планировка квартиры с точки зрения базового зонирования оказалась удачной: три окна, в гостиной панорамное остекление. Но, чтобы выполнить все пожелания заказчицы, по ее словам, «пришлось потрудиться».

Спальню Ольга выкроила в буквальном смысле из воздуха: двуспальная кровать поместилась на присоединенной к комнате лоджии. Подиум под кроватью − дополнительное место хранения.

Освободившееся пространство было поделено на две части: дальнюю заняла открытая гардеробная (при желании ее можно закрыть шторами), а в ближайшей к спальне встал небольшой туалетный столик.

Хозяйке хотелось, чтобы квартира ее одновременно расслабляла и вдохновляла, поэтому спальня, зона для макияжа и гардеробная решены в трех цветах: здесь есть белый, розовый и желтый.

Те же цвета повторяются в других помещениях: в розовом кубе скрывается ванная комната (со стороны кухни в него встроен холодильник), в желтый Ольга выкрасила оконный портал в кухне (благодаря этому приему даже в хмурый день кажется, что в окно бьет солнце).

Гардеробная в спальне сделана по чертежам дизайнера в киевской мебельной студии «Соловей».

Видя перед собой результат, нетрудно догадаться, что работа шла легко и гладко. Концепция интерьера была утверждена сразу, никаких правок и корректировок со стороны заказчицы не последовало, во всех ситуациях она придерживалась позиции: «Если я сама выбрала дизайнера, который мне нравится, почему я должна что-то менять в его проекте?». «Именно поэтому, — говорит Ольга Бондарь, — мне удалось решить все задачи и придать интерьеру нужное настроение. Мы были на одной волне с начала и до конца».

В розовом кубе заключена ванная комната, со стороны кухни в него встроен холодильник.

Читать:
Лента новостей