Регистрация

Меньше, дешевле и моднее. Показываем проекты домов, которые будут популярны у белорусов в 2022 году

24.12.2021 16531

Станислав Журавлевич

Эта информация будет полезной в первую очередь тем, кто в ближайшее время собирается строить собственный дом. Мы подготовили для вас обзор самых новых проектов для индивидуального строительства, которые разработали белорусские архитектурные бюро на следующий год с учетом современных тенденций.

«1000 проектов»

Архитектурное бюро «1000 проектов», учитывая тенденцию роста популярности одноэтажных домов с плоскими и односкатными кровлями, к следующему строительному сезону приготовило три актуальных проекта.

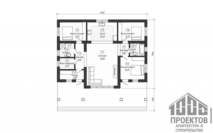
Проект № 1−65−1. Жилая площадь 73.74 м², общая 116.7 м².

Это одноэтажный жилой дом из блоков в современном стиле с плоской кровлей и отличной планировкой. Ничего лишнего, только все необходимые помещения для максимального удобства и комфортного проживания.

Проект № 1−64. Новый индивидуальный проект в минималистичном современном стиле.

Это компактный дом для тех, кто любит практичность и уют. В доме общей площадью 148 квадратных метров с комфортом разместится семья с двумя детьми: три спальни, просторная кухня-гостиная с выходом на террасу и панорамным остеклением. В доме отдельное помещение под котельную, холл, а также два санузла.

Проект № 1−40−1. Жилая площадь 79.54 м², общая 194.66 м².

Этот проект совмещает себе стиль и нестандартные решения в восприятии пространств. Основная задача — создание уютной террасы на эксплуатируемой плоской кровле. Получился красивый одноэтажный жилой дом из блоков в современном стиле. Планировка дома достаточно функциональная и включает в себя все самое необходимое для удобства и комфорта.

«Архитектурные решения»

У бюро «Архитектурные решения» мы нашли два новых проекта — дома и бани.

Проект OL-6 площадью 149,7 м2 разработан с учетом максимальной экономии на строительстве. Простой ленточный фундамент, наружные стены из блоков толщиной 300 мм с утеплителем 100 мм, перекрытие по деревянным балкамb, фальцевая кровля.

Но за внешней простотой скрывается продуманная планировка. В доме три просторные спальни от 14 м2, два санузла и большая гостиная-студия площадью 33,37 м2 с выходом на террасу, которая обрамляет дом по правой стороне и главному фасаду. Дом идеально подходит для молодой семьи с ребенком.

Баня в стиле барнхаус с навесом для автомобилей. Когда хочется совместить несколько хозпостроек с гостевым домом, да еще и вместить туда навес для двух машин, то без индивидуальных решений тут не обойтись. Тем более, если нужно, чтобы все это выглядело лаконично и стильно.

Именно такая задача стояла перед этим проектом. Кроме бани с комнатой отдыха и зоной барбекю на террасе, проект бани в стиле барнхаус включает в себя большую спальню на втором этаже площадью 17,8 м² со вторым светом. Это удобно, потому что из комнаты можно общаться с семьей и друзьями, которые отдыхают на первом этаже.

Навес для машин большой, с габаритами 6×6 туда могут поместиться 2 автомобиля. Терраса, в свою очередь, является парадной частью строения: большой остекленный фасад в сочетании с высоким сводом крыши создают эффект открытого пространства. Фальцевая кровля и фасад подчеркивают модный стиль барнхаус.

«Проект-М»

Архитекторы из «Проект-М» тоже предоставили нам свои проекты, которые собираются реализовывать в следующем году.

Проект М347. Общая площадь 161 м2. Этот двухэтажный дом предназначен для постоянного проживания большой семьи. Особенностью представленного проекта является строгий стиль с выдержанными прямыми линиями. Террасы с двух сторон позволяют укрыться от дождя в непогоду.

Гараж примыкает к дому, по соседству расположена мини-котельная. Все жизнеобеспечивающие системы находятся вне жилой зоны. На первом этаже большие кухня и гостиная. Просторный коридор после тамбура примыкает к широкой лестнице, которая ведет на мансардный этаж.

На втором этаже с мансардной крышей расположены три изолированных жилых комнаты. Площадь дома позволяет выделить место под дополнительные помещения для хозяйственных нужд: кладовку, постирочную, техническую комнату.

Проект М339. Одноэтажный дом площадью 95 квадратных метров. В нем три спальни, гостиная и просторная кухня. Есть крытая терраса.

Разработчики конструкции предусмотрели удобное расположение изолированных комнат, наличие гардеробной, кладовки и котельной. Большой холл объединяет комнаты, позволяет детям играть, не мешая отдыхать другим членам семьи. Проект оптимальный для проживания небольшой семьи.

Внешняя декорация создает впечатление безопасной устойчивой конструкции. Наружные стены с деревянными перекрытиями обшиваются доской. Любители монументального стиля делают облицовку камнем. Крыша из металлочерепицы имеет многогранную геометрическую форму.

Проект M010. Общая площадь 73 м2.

Дом деревянный, двухэтажный в стиле «хай-тек». Традиционный сруб оригинально дополнен плоской кровлей, остеклением в пол, легким балконным ограждением и просторной террасой. За счет умелых дизайнерских решений удалось избавить коттедж от массивности, присущей всем деревянным домам. Площадь постройки небольшая, но позволяет разместить гостиную, кухню, санузел, две спальни. Проект подойдет тем, кто отдает предпочтение современному оформлению, но при этом не готов отказываться от традиций частного домостроения и экологически чистых материалов.

Проект М333. Просторный дом общей площадью 137 м2.

Внутри дома кроме двух спален, гостиной-кухни, санузла и техпомещния нашлось место для парилки с душевой. К зоне кухни примыкает большая терраса под свесом крыши.

Здание предполагает обшивку доской или покраску оштукатуренных наружных стен.

Архитектурная мастерская Николая Богданова

Эта компания предложила оценить три новых проекта в разных стилях.

Проект Мatteo. Общая площадь дома 255 м2.

Современный жилой коттедж с плоской кровлей. На первом этаже располагается общая комната на 25 м2, столовая зона, кухня, гостевая и общей санузел. В стороне гаража, который в состоянии уместить два автомобиля, располагается котельная и подсобное помещение (кладовая).

На втором этаже 4 спальни, общий санузел и приватный (хозяйский).

Проект Praleska. Общая площадь дома 113 м2.

Дом с мансардным этажом и террасой для проживания небольшой семьи. Это компактный жилой домик 9×8 метров. Терраса площадью 12 м2 выходит на задний двор. Дом запроектирован с учетом ориентации гостиной и кухни на южную (юго-западную сторону) сторону.

На первом этаже разместилось все необходимое для хозяев: кладовая, техпомещение, рабочий кабинет, просторный санузел и холл. На втором этаже располагаются 3 жилых комнаты, совмещенный санузел и большая кладовая на 7 квадратных метров. В санузле на 2-м этаже для освещения предусмотрено мансардное окошко.

Проект Сморгонь. Общая площадь — 112,5 м2.

Архитектура дома выполнена в современном стиле за счет четких форм и изящной композиции материалов. Планировкой предусмотрены две жилых комнаты (спальни), общая гостиная, кухня, прихожая и санузел.

Отопление можно организовать за счет размещения отопительного оборудования (котла) в кухне, а также отличным решением станет устройство камина с камерой циркуляции воздуха, за счет чего в доме появится еще один альтернативный источник отопления.

Большая терраса с выходом из кухонной зоны и зоны гостиной ориентирована на южную сторону. Крытый навес над террасой и крыльцом предусмотрен из литого поликарбоната, дабы обеспечить необходимый уровень инсоляции как внутренних помещений, так и самой террасы.

Читать:
Лента новостей
Опрос
Как вы считаете, покупать квартиру лучше сейчас или следует подождать?