Регистрация

Никаких контактов с соседями. Как выглядят и сколько стоят квартиры с отдельным входом в Минске

23.11.2021 39684

Квартиры с отдельным входом редко встретишь на рынке. Но на Realt можно найти жилье на любой вкус и бюджет. Мы подобрали несколько квартир с максимально быстрым доступом к улице без лишних контактов и связей — собственным входом и подъездом. Есть варианты с ремонтом и без отделки, а также с мебелью и техникой. Стоимость квартир стартует от $ 35 тысяч.

На ул. Асаналиева (Лошица)

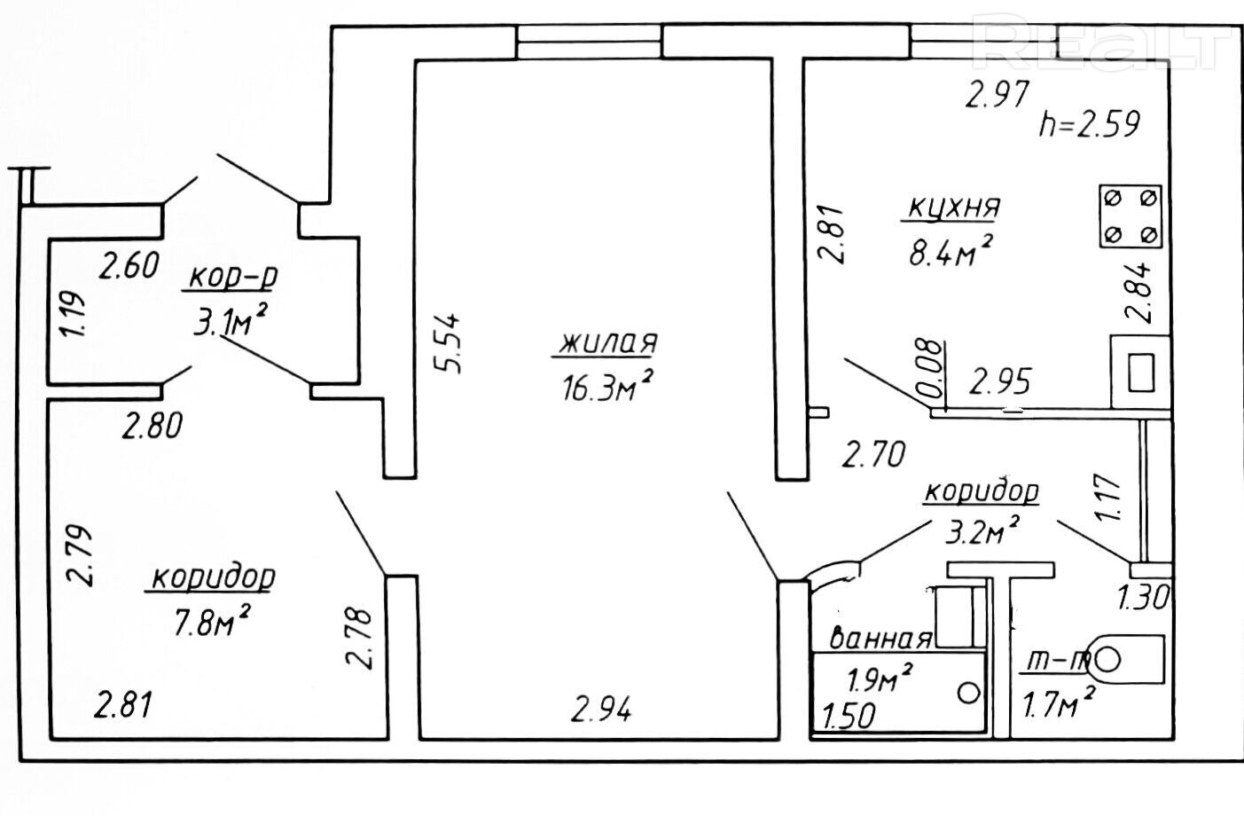
Начнем с бюджетного варианта. Однокомнатная квартира выставлена на продажу в доме на улице Асаналиева, 36/2. Это полностью утвержденное отдельное жилое помещение с личным входом вне подъезда и со своим крыльцом.

Отдельный вход позволяет сделать свою парковку для электросамоката. Если же новый владелец не захочет пользоваться отдельным входом или передумает во время проживания, можно поставить стеклопакет и получить тамбур перед квартирой.

Площадь квартиры составляет 42 «квадрата», в том числе жилая — 16, кухня — 8. Ее можно переделать в двухкомнатную. Девятиэтажный панельный дом построен в 1979 году. В квартире раздельный санузел, установлены счетчики воды. На полу бетонная стяжка. Жилье требует вложений в ремонт и обустройство.

В районе хорошо развито транспортное сообщение — автобусы, троллейбусы, маршрутки, на которых можно быстро добраться до центра города или метро. Остановка расположена недалеко от дома. Также через два года здесь появится станция метро.

В пешей доступности магазины, школы, детские сады, взрослая и детская поликлиники, банк, почта.

Цена: $ 37 000.

На ул. Лынькова (Масюковщина)

В доме по адресу улица Лынькова, 15/Б продается двухкомнатная квартира площадью 58 квадратных метров (жилая — 35, кухня — 9). Также есть сразу две застекленные лоджии. Дом десятиэтажный, построен в 1997 году.

Привлекает в квартире свежий современный ремонт. Сюда можно заезжать сразу. Установлены металлическая входная дверь, стеклопакеты, решетки на окнах со стороны улицы, качественные межкомнатные двери, счетчики воды, натяжные потолки. Напольное покрытие — ламинат, в раздельном санузле — плитка.

Возле дома всегда есть место для автомобиля. Рядом с домом несколько детских садов и школ, поликлиника, детская больница, магазины, аптеки, большой парк. В 15 минутах спорткомплекс и торговый центр. Помимо автобусов, которые ходят по району и на которых можно добраться до метро, здесь также есть ж/д станция.

Цена: $ 65 000.

На ул. Кижеватова (Минск-Мир)

Интересный вариант для тех, кто хочет воплотить интерьерные мечты — квартира со свободной планировкой и отдельным входом в доме на улице Кижеватова, 1/Б. Общая площадь 37 квадратных метров. Каркасно-блочный дом построен в 2020 году.

Квартира без отделки. Здесь установлены стеклопакеты и счетчики воды. На полу бетонная стяжка. Санузел совмещенный. Еще одно преимущество в высоких потолках — они тут 3,15 метра.

В пешей доступности магазины, аптека, почта. Развито транспортное сообщение. Остановка возле дома. Ходит несколько автобусов, троллейбусов и маршруток.

Цена: $ 83 000.

На ул. Нововиленская (возле стелы)

В доме на улице Нововиленская, 10 продаются апартаменты-офис со спальней и кабинетом. Общая площадь составляет 48 «квадратов» (жилая — 40). В объявлении говорится, что помещение можно вывести полностью в жилой фонд. Здесь отдельный вход и 20 «квадратов» крытой террасы.

Десятиэтажный кирпичный дом построен в 2007 году. Это современный дом повышенного комфорта с парковкой.

Апартаменты продаются с новым готовым ремонтом и со всей необходимой бытовой техникой и мебелью (включены в стоимость). Здесь установлены металлическая входная дверь, межкомнатные двери, стеклопакеты, сигнализация. Напольное покрытие — плитка.

Дом расположен в зеленом районе — большой парк с рекой в 5 минутах ходьбы.

Возле дома находятся магазины, детский сад, школа. Остановки общественного транспорта в шаговой доступности.

Цена: $ 84 600.

Читать:
Лента новостей
Опрос
Как вы считаете, покупать квартиру лучше сейчас или следует подождать?