Регистрация

До $ 51 тысячи. Как выглядят и сколько стоят недорогие «однушки» в Минске, где сразу можно жить

30.10.2021 58791

На Realt размещены тысячи объявлений о продаже квартир. Мы подобрали однушки в Минске для тех, кто хочет купить собственное жилье и не вкладываться в ремонт. Некоторые из этих квартир продаются с мебелью и бытовой техникой, а их стоимость не превышает $ 51 тысячу.

На ул. Менделеева (р-н Тракторный завод)

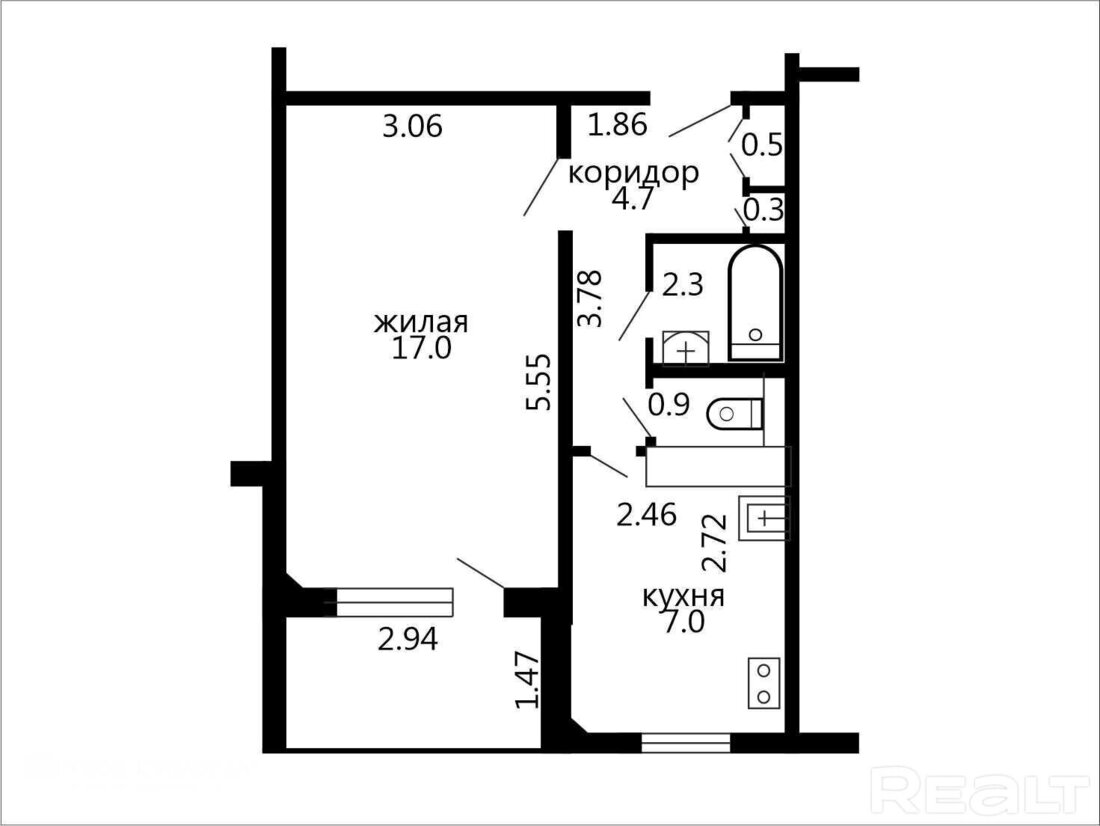
В доме по адресу улица Менделеева, 6 продается «однушка» площадью 33 квадратных метра (жилая — 17, кухня — 7). Квартира расположена на девятом этаже панельной девятиэтажки, построенной в 1984 году.

— Квартира полностью готова к комфортному проживанию. Выполнен качественный ремонт с заменой электропроводки и сантехники. Входная дверь металлическая, межкомнатные двери МДФ. В оконных проемах установлены стеклопакеты, в том числе и на лоджии. Напольное покрытие — ламинат, плитка. Натяжные потолки по всей квартире. Установлены приборы учета воды, проведена оптоволоконная сеть, — пишут в объявлении.

Здесь имеется встроенная кухня и шкаф-купе. В стоимость также входит диван, холодильник, обеденный стол и стулья, стиральная машина.

Возле дома в шаговой доступности множество детских садов, школ, магазины, аптеки, спортивный комплекс, поликлиника, больница. Рядом остановка общественного транспорта. До станции метро «Тракторный завод» четыре остановки.

Цена: $ 47 500.

На ул. Хмелевского (Грушевка)

Однокомнатная квартира продается в доме по адресу улица Хмелевского, 34. Ее площадь составляет 31 «квадрат» (жилая — 19,5, кухня — 5). Находится на втором этаже (всего три). Дом кирпичный, сталинка, построен в 1957 году.

В квартире сделан свежий ремонт. Установлены стеклопакеты, металлическая входная дверь, новая сантехника. Стены и потолок выровнены. Напольное покрытие — ламинат. В совмещенном санузле — плитка.

В районе развита инфраструктура. Детские сады, школы, магазины, больница, сквер, аптеки, банки — все в непосредственной близости. До станции метро «Грушевка» пешком 10 минут.

Цена: $ 47 000 с торгом.

На пр-те Партизанский (р-н м. Могилевская)

«Однушка» площадью 33 квадратных метра (жилая — 21, кухня — 6) продается в доме по адресу проспект Партизанский, 137. Дом пятиэтажный, кирпичный, построен в 1967 году. Квартира на пятом этаже. Капитальный ремонт проведен в 2020 году — утеплен фасад, заменена электропроводка, сантехника, трубы.

В квартире установлены металлическая входная дверь, межкомнатные МДФ, стеклопакеты, приборы учета газа и воды, проведено оптоволокно. Напольное покрытие в жилой комнате — ламинат, в совмещенном санузле — плитка. Есть душевая кабина, кухонный гарнитур с газовой плитой.

В районе есть все необходимые объекты для комфортной жизни. В пешей доступности от дома находятся детские сады, школы, аптеки, отделения банков, магазины, торговый центр, кафе. До станции метро «Могилевская» 10 минут пешком. Возле дома остановка общественного транспорта.

Цена: $ 44 500.

На ул. Брестская (Курасовщина)

Однокомнатная квартира продается в доме по адресу улица Брестская, 77/А. Ее площадь составляет 37 м² (жилая — 17 м², кухня — 9 м²). Расположена на 12 этаже кирпичной 12-этажки, построенной в 1991 году.

В квартире имеется мебель и бытовая техника — встроенные шкафы, кухня, варочная панель, духовой шкаф, холодильник, посудомоечная машина, вытяжка. Есть большая гардеробная, санузел совмещенный.

Установлены металлическая входная дверь, стеклопакеты, счетчики воды. Во дворе дома ведется видеонаблюдение, есть детская площадка.

Возле дома большой парк, водохранилище, спортивный центр, детские сады, школы, банки, больница, магазины. До станции метро «Институт культуры» ходит прямой транспорт (остановка недалеко от дома).

Цена: $ 51 000.

На пер. Уральский (р-н Тракторный завод)

«Однушка» продается в доме по адресу Уральский переулок, 5. Общая площадь 30 «квадратов» (жилая — 19, кухня — 6). Квартира на четвертом этаже. Дом панельный, пятиэтажный, построен в 1964 году. В доме проводился капитальный ремонт.

В квартире установлены стеклопакеты, металлическая входная дверь, приборы учета воды, напольное покрытие — ламинат, в совмещенном санузле — плитка, есть балкон. Также в квартире остается мебель и бытовая техника.

В пешей доступности школа, детский сад, больница, поликлиника, магазины, банк, бассейн, парк. До станции метро «Тракторный завод» одна остановка.

Цена: $ 45 000.

На ул. Якубова (Серебрянка)

В доме по адресу улица Якубова, 30 продается однокомнатная квартира площадью 35 квадратных метров (жилая — 17, кухня — 7) на девятом этаже. Дом панельный, девятиэтажный, построен в 1976 году.

— Квартира полностью укомплектована необходимой мебелью. В коридоре и в комнате вместительные шкафы-купе. Есть встроенная кухня. Все останется новым собственникам, — указывают в объявлении.

В квартире на полу в жилой комнате ламинат, на кухне и в коридоре — плитка. Лоджия застеклена, в ней теплый пол с электроподогревом. Установлена металлическая входная дверь, стеклопакеты.

Возле дома детские сады, школы, магазин, рынок, поликлиника, аптеки, банк, парк с велодорожкой, остановка общественного транспорта. До метро «Партизанская» прямой транспорт.

Цена: $ 45 000.

На улице Брикета (Каменная Горка)

Однокомнатная квартира продается в доме по адресу ул. Брикета, 4. Общая площадь квартиры 35 квадратных метров (жилая — 18, кухня — 7,5). Она находится на пятом этаже (всего 5). Дом построен в 1977 году. При капитальном ремонте дома утеплен фасад и заменены трубы.

Квартира полностью меблирована и готова к проживанию. Установлены стеклопакеты, приборы учета воды. Напольное покрытие — ламинат, плитка. Санузел раздельный. Есть подвал.

Остановка общественного транспорта в шаговой доступности. До станции метро «Каменная горка» — 10 минут. Рядом удобный выезд на МКАД. В районе находятся школы, детские сады, торговые, спортивные и бизнес-центры, аптека.

Цена: $ 47 900.

Читать:
Лента новостей
Опрос
Как вы считаете, покупать квартиру лучше сейчас или следует подождать?