Регистрация

Цените тишину и спокойствие? Рассказываем, почем продаются квартиры в получасе езды от Минска

28.10.2021 10721

* На правах рекламы

В Смолевичах, недалеко от железнодорожного вокзала и водохранилища, в сентябре этого года сдали новый пятиэтажный дом с квартирами по комфортным ценам. Его возвело ПС ЗАО «Трест Промстрой». Мы съездили изучить новостройку, а заодно узнали, как сейчас обстоят дела в Смолевичах и за что местные ценят свой город.

В субботу днем до Смолевичей идет комфортный Stadler. Билет по цене городской маршрутки — 1,55 рубля. Меньше чем за час добираемся до места назначения.

От городского вокзала до нового дома на улице 40 лет Победы — минут 10 ходьбы. Вокруг — частный сектор, многоквартирные дома, магазины, открытые лотки со свежими фруктами и овощами. Разговорились с одной из продавщиц:

— Я в Смолевичах живу 27 лет. Работаю здесь же, мне так удобно. В нашем городе, в принципе, всего хватает — есть выбор, где закупиться продуктами, можно посидеть в кафе. Единственное, что я бы добавила — это кинотеатр. Чтобы сходить с семьей на какую-нибудь премьеру, ездим в Минск на маршрутках или поезде, — говорит Оксана, раскладывая товар.

Женщине нравится то, что город тихий и спокойный. Нам тоже так показалось: в центре мало машин, нет шумных толп, при этом улицы не пусты — люди ходят за покупками, дети катаются на велосипедах и самокатах.

Подходим к новостройке на улице 40 лет Победы. Перед нами — П-образный дом с просторным и свободным от машин двором, скатными крышами, оформленный в приятной цветовой гамме.

Дом утеплен легкой штукатурной системой, оснащен лифтами. Во дворе — современная детская площадка, скамейки, молодые деревья, которые спустя несколько лет сделают место еще уютнее.

Спуск к дому и подъезды оборудованы пандусами.

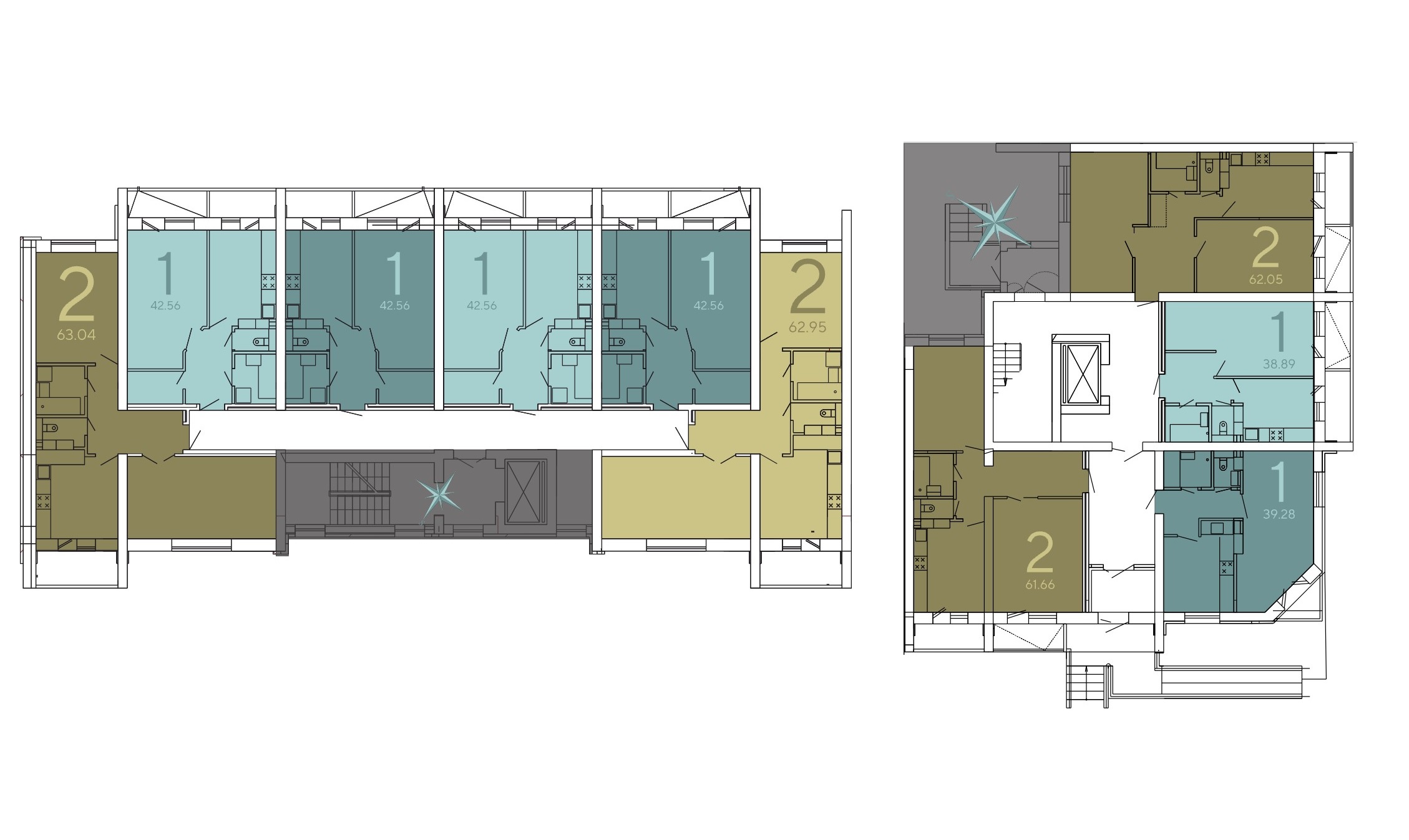
В квартирах сделана стяжка пола, оштукатурены стены, установлены окна ПВХ и радиаторы отопления, застеклены лоджии, проведены интернет и домофонная связь, есть выводы для электроплит. Интересны и планировочные решения.

Цены на жилье комфортные. Стоимость квадратного метра в однокомнатной квартире на 1 этаже — 780 USD, на 2−5 этажах — 800 USD. Двухкомнатную покупать еще выгоднее — цена «квадрата» на 1 этаже — 670 USD, на 2−5 этажах — 690 USD. Оплата в белорусских рублях по курсу Национального банка Республики Беларусь.

Купить квартиру в новом доме можно в кредит. Тут есть несколько вариантов: партнерские программы от «Белагропромбанка» и «Белинвестбанка», кредит «Строительство под залог». Подробнее узнать обо всех финансовых инструментах для покупки своего жилья можно здесь.

Будущих жильцов ждет бонус — ходить на прогулки они смогут к водохранилищу Великое. Мы отправились на берег, где приятно находиться в любое время года.

На водохранилище разговорились с одним из рыбаков. Узнали, что здесь водится щука, которую удобнее добывать с лодки, пожелали нашему собеседнику хорошего улова и немного прогулялись вдоль берега.

На обратном пути в город нас встретил пенсионер Павел. Он рассказал, почему переехал в Смолевичи десять лет назад:

— Я вышел на пенсию и выбрал для жизни спокойный город. Сначала было непривычно, но постепенно освоился. Здесь очень тихо, не шумит дорога, можно спокойно гулять с собакой, дышать свежим воздухом. Я доволен.

Уезжая обратно в Минск на поезде, мы чувствовали себя отдохнувшими. Приезжайте в Смолевичи, самостоятельно оценивайте все местные плюсы и выбирайте для жизни спокойное, гармоничное и уютное место.

Читать:
Лента новостей
Опрос
Как вы считаете, покупать квартиру лучше сейчас или следует подождать?