Регистрация

Нашли самые дешевые «однушки» Минска. Есть даже за 33 тысячи долларов

07.05.2021 33273

Мы продолжаем изучать базу квартир на нашем сайте и делиться с вами самыми интересными вариантами. Сегодня в нашем фокусе — недорогие однокомнатные квартиры столицы. Помимо стандартных «однушек» на окраинах Минска, тут есть квартиры возле метро, с видом на лес и даже с ремонтом.

Однокомнатная квартира на Передовой за $ 33.000

Самая недорогая квартира в Минске (из выставленных на продажу в данный момент) находится на улице Передовой. Это — микрорайон Слепянка, расположенный неподалеку от Тракторного завода.

Продавец сообщает, что квартира-малосемейка площадью 22 «квадрата» при недавнем ремонте была переделана в студию.

В помещении сделана новая проводка, уложен новый деревянный пол, установлена новая сантехника. На стенах − краска, на потолке − натяжные потолки, санузел − совмещенный.

В квартире, расположенной на втором этаже пятиэтажного дома, есть незастекленный балкон.

Как уточняет автор объявления, будущим жильцам не понадобится никаких дополнительных вложений: в квартиру можно заезжать и жить.

Рядом находятся школы, детский сад, магазины, ж/д станция «Тракторный» (тут останавливаются электрички), метро «Тракторный завод» − 15 минут пешком.

Однокомнатная квартира в Соснах за $ 35.000

Эта однокомнатная квартира находится в Соснах (для тех, кто не знал, сообщим, что это − Заводской район Минска). Располагается жилье на третьем этаже трехэтажного дома по улице Красина.

Сообщается, что от дома можно за 10 минут доехать до станции метро «Могилевская».

В квартире заменены трубы, стояк, установлены новые межкомнатные двери, встроенный шкаф и импортные стеклопакеты ПВХ.

Сам дом находится в окружении хвойного леса, в шаговой доступности − банк, почта, три магазина, детский сад и школа, фитнес, детские секции, библиотека, стадион, спортзал. Недалеко есть озеро и комплекс для авто- и мотоспорта.

Однокомнатная квартира рядом с лесопарком «Степянка» за $ 35.900

Эта квартира располагается на первом этаже кирпичного дома 1975 года постройки в лесном массиве микрорайона Степянка.

Общая площадь жилья по улице Геологической — 32,9 «квадратов». Отмечается, что квартира светлая и очень теплая. Из особенностей − большой балкон по всей длине комнаты.

Фотографий комнаты и кухни в объявлении нет, зато есть информация о том, что в микрорайоне работают школы № 182 и 183, ясли-сад № 569 и 3 детских сада № 20, № 2, № 197, магазины, почта, аптеки, торговый центр.

«Прямо рядом с домом также расположен лесопарк „Степянка“ − излюбленное место для прогулок жителей микрорайона. В центре лесопарка есть большая поляна с озером, оборудованная беседками и мангалами. Имеется детская площадка, качели и турники».

Однокомнатная квартира рядом с Тракторным заводом за $ 36.900

В тихом районе Минска — на улице Фроликова (Тракторный завод) — продается уютная однокомнатная квартира готовая к проживанию. Она располагается на первом этаже четырехэтажного кирпичного дома.

Среди достоинств «однушки» площадью 31,5 «квадрата» − большая и светлая комната площадью 19.3 «квадрата» с 2 окнами, высокие потолки, кладовка, выходящая за периметр квартиры, просторный санузел, где можно поместить большую стиральную машину и оборудованный подвал.

Сообщается, что в доме, где продается жилье, недавно прошел капремонт: теперь он утеплен и обшит термошубой.

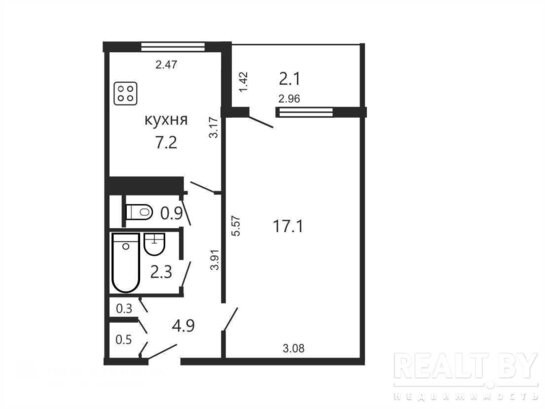
Однокомнатная квартира в Заводском районе за $ 37.000

Данная однокомнатная квартира располагается на восьмом этаже в панельном доме 1986 года постройки. Общая площадь квартиры на улице Илимской — 35,3 «квадрата», кухня — 7,2 «квадрата».

Квартира продается без ремонта.

Автор объявления сообщает, что «Расположена квартира в тихом зеленом районе, где есть все необходимое для комфортной жизни: детские сады, школы, магазины. Рядом с домом зеленая зона (лес) — прекрасное место для прогулок круглый год». Кстати, окна «однушки» будущих жильцов порадуют — из них открывается хороший вид на окрестности.

Однокомнатная квартира в Шабанах за $ 37.000

Эта светлая и теплая 1-комнатная квартира находится в Шабанах в доме 1993 года постройки.

Площадь квартиры, расположенной на 2-м этаже «девятиэтажки» по улице Бачило, − 29 «квадратов», площадь кухни — 7,1 «квадрата».

В объявлении уточняется, что квартира «без посторонних запахов, не угловая и не торцевая».

Отмечается, что в доме установлены новые лифты, а в самой квартире заменены стеклопакеты.

Стоит отметить, что в квартире нет балкона, а на первом этаже этого же дома располагается магазин «Евроопт».

Однокомнатная квартира рядом с метро «Автозаводская» за $ 37.500

Эта аккуратная однокомнатная квартира находится в двухэтажном доме 1949 года постройки, в шаговой доступности от станции метро «Автозаводская».

В квартире, которая находится на первом этаже, установлена металлическая входная дверь, домофон, счетчики учета воды и газовая колонка.

Общая площадь «однушки» − 31,4 «квадрата», кухни — 7,2 «квадрата».

Балкона в квартире нет, зато, как отмечает авто объявления, рядом есть все необходимое для комфортного проживания: школа, музыкальная школа, большое количество магазинов, аптека.

Читайте также:

С туалетом, но без душа. Как выглядят и сколько стоят самые дешевые «однушки» Могилева

От 13 тысяч долларов. Как выглядят и сколько стоят самые дешевые «однушки» Витебска

Есть что сказать?
Читать:
Лента новостей
Опрос
Как вы считаете, покупать квартиру лучше сейчас или следует подождать?