Регистрация

«Однушки» — от $ 53 тысяч, «двушки» — от $ 73 тысяч. УКС Советского района предложил дольщикам 30 квартир в Сельхозпоселке

13.03.2020 5 15225

Стоимость квадратного метра в 10-этажном одноподъездном доме в Сельхозпоселке стартует от 2600 рублей. УКС Советского района предлагает поучаствовать в строительстве 30 квартир в Сельхозпоселке. Такая информация опубликована сегодня в проектной декларации в газете «Минский курьер».

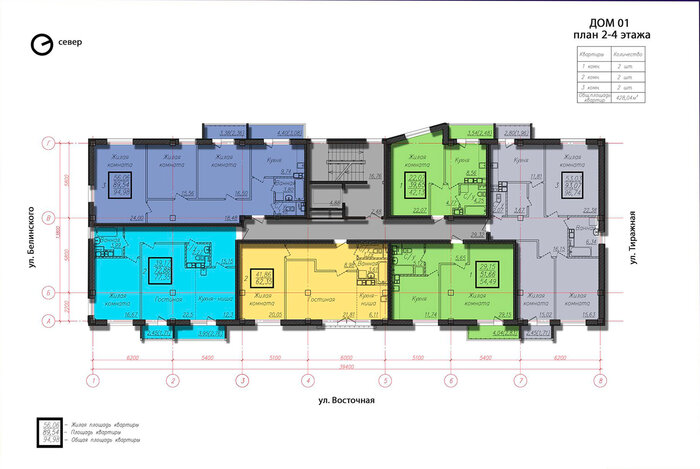
Речь идет о «группе многоквартирных жилых домов с помещениями общественного назначения и подземной гараж-стоянкой в квартале улиц Л. Беды, Тиражной, Восточной, Белинского». Сейчас продаются квартиры в доме 1-ой очереди строительства. Это 10-этажный односекционный дом. Все квартиры свободной планировки. Система отопления жилого дома — по независимой схеме, в конструкции полов. В качестве нагревательных приборов предусматриваются радиаторы.

Всего в доме запроектировано 58 квартир: 19 однокомнатных, 21 двухкомнатная, 18 трехкомнатных. Сейчас дольщикам предлагаются 30 квартир, расположенных со 2 по 7 этажах:

  • 10 однокомнатных общей площадью от 42,11 до 54,49 кв. м., стоимость «квадрата» 3000 рублей.
  • 10 двухкомнатных общей площадью от 62,35 до 77,35 кв. м., стоимость «квадрата» 2800 рублей.
  • 10 трехкомнатных квартир общей площадью от 94,98 до 96,66 кв. м. стоимость «квадрата» 2600 рублей.

Интересная особенность дома — на первом этаже запроектированы 4 квартиры: 1 предусмотрена для инвалида-колясочника, еще 3 имеют отдельные наружные входы с прилегающей территории.

На типовом этаже запроектированы 6 квартир. Лифт — один на весь дом.

На придомовой территории будут размещены 16 парковочных мест. Срок начала строительства — 1 квартал 2020 года, окончания — 1 квартал 2021 года.

Напомним, общественное обсуждение по поводу застройки Сельхозпоселка проводилось в ноябре 2016 года и вызвало большой общественный резонанс. Жители микрорайона в большинстве своем выступили категорически против сноса. Однако были и те, кто выступил за предоставление более современного жилья взамен ветхих строений.

В этом же районе купить квартиру в новостройке предлагает и «ТЕНКинвест». Стоимость «квадрата» в 16-этажном 1-секционном 110-квартирном жилом доме крупнопанельного домостроения фиксированная — $ 1400.

Есть что сказать?
Читать:
Лента новостей
Опрос
Как вы считаете, покупать квартиру лучше сейчас или следует подождать?