Регистрация

С камином и системой микроклимата. За € 55 тысяч белорусская фирма предлагает полностью готовый дом, который можно двигать

23.12.2019 5 19235

Евгений Корнеевец, Фото: Павел Садовский

Недавно мы писали про Республиканский конкурс дизайна частного интерьера «Профессиональный интерьер». Там в номинации «Лучший интерьер жилого дома» выбрали проект Марины Мацель, который дизайнер разработала специально для модульного дома площадью 42 квадратных метра. Мы съездили посмотреть, как выглядит дом внутри и снаружи, поговорили с производителем о будущем модульных домов, а также с хозяином о жизни больше года за городом на 42 «квадратах».

От большого к малому

Дом, который стал победителем, находится примерно в 40 километрах от Минска. Этот дом — совместный проект архитектора Марины Мацель и компании Flybird, которая специализируется на возведении каркасных и модульных домов.

— Мы всегда строили большие загородные дома. Почему-то были уверены, что для счастливой жизни нужна гостиная, гостевая, прихожая, кабинет, библиотека и так далее. Но как-то мы с женой и детьми поехали на новогодние праздники в тур по Европе. Мы там постоянно арендовали для жизни небольшие дома и пришли к такому мнению, что чувствуем себя абсолютно комфортно на этих 40−70 метрах. Это притом, что была зима и у нас с собой была куча зимних вещей, чемоданов и прочего, — рассказывает руководитель компании «Флайбирд» Максим Мацель. — Мы пересмотрели свою философию и попытались понять: что нужно для полноценной жизни в доме, от чего нельзя отказаться. Пришли к тому, что для семьи с двумя детьми нужно примерно 100 квадратных метров. Это большая основная комната — гостиная, которая совмещена с кухней и столовой, ведь в этой комнате все проводят максимально времени, небольшие спальни, потому что там только ночуют, и два санузла. Мы построили и презентовали такой дом. Нам казалось, что это идеальные размеры для комфортной жизни.

Однако компании пришлось еще раз пересмотреть свои взгляды, когда поняли, что молодых семей с одним ребенком, одиноких людей, пенсионеров, которые устали от жизни в городе, гораздо больше, чем той категории, на кого был рассчитан «стометровый» дом. Flybird пошел еще на уменьшение метража, однако это не вызвало большой экономии на квадратном метре.

Вне зависимости, какой площади будет дом, для его возведения нужно произвести цепочку технологических операций — от ввинчивания свай фундамента до подвешивания светильников. И если это делать на участке заказчика, то дом 50 «квадратов» занимает практически столько же времени, что и 150. А время, как гласит мудрость — деньги.

— Мы задумались, что если бы мы смогли локализовать процесс производства в одном месте, то это было бы куда эффективнее. Но возник другой момент: получается, что нам на участок нужно перевозить уже не отдельные панели (стены, пол, крышу), а дом в сборе, — делится Максим. — Когда родилась такая идея, то мы сразу начали думать о том, чтобы привозить дома в сборе со всей мебелью, отделкой, сантехникой и всем-всем-всем внутри. Потому что собрать чисто коробку без окон и дверей в цеху или на участке займет одно и то же время. Поэтому начали думать над тем, чтобы привозить уже полностью готовый к проживанию дом, с которым практически ничего не нужно было делать на участке заказчика. Ну разве что столы и стулья расставить, коммуникации подключить и закинуть дрова в камин. И вот такой дом будет одним модулем. Мы придумали ему название Flybird Wagon.

Производство полностью обустроенных модулей в цеху позволяет сразу же проверить работоспособность всего оснащения дома. Если возникают неполадки с подключением той или иной системы, то исправление проблемы на месте занимает куда меньше времени, чем вызывать нужных специалистов в поле, где собирается дом.

Вся встроенная мебель, отделка и прочие материалы подбирались с таким расчетом, чтобы они спокойно могли пережить погрузку и разгрузку и при этом не дать никаких дефектов. Единственный момент, что столы и стулья перевозятся отдельно. Отдельно едут и панели для настила террасы, но собирается она на месте за очень короткий срок.

— Мы долго тренировались в перевозке своего первого модуля. Возили его с выставки на выставку, с места на место. Если поначалу у нас процесс погрузки и разгрузки занимал около 8 часов, то сейчас добились таких результатов, что нам нужно всего лишь 2 часа, — рассказывает Максим. — То есть мы привозим дом на новое место, а уже через 2 часа пьем в нем кофе. Если изначально мы привозили дом, и под ним начинали копошиться рабочие с подключением внешних коммуникаций к внутренним, то сейчас мы внедрили технологию люка. То есть открывается крышка люка, а там уже все разъемы готовы к подключению.

Из чего состоит дом

Пока архитектура дома (модуля) обусловлена габаритами правил перевозки грузов. То есть общая площадь дома — 42 квадратных метра, ширина — 4 метра, длина — 12,5, высота — 3,4. Такие габариты позволяют перевозить постройку по дорогам без сопровождения ГАИ.

В основе конструкции лежит комбинированный каркас из металлической рамы из швеллера высотой 24 сантиметра и деревянные стойки. Металлическую раму внедрили в проект «каркасника» как раз для того, чтобы в процессе погрузки/разгрузки и перевозки не пошла «гулять» геометрия дома и не разрушилась бы внутренняя и внешняя отделка.

Утеплителем служит пенополиуретан. При напылении пенополиуретан образует бесшовное монолитное покрытие, исключающее появление щелей и пустот. В стенах 15 сантиметров утеплителя, в полу — 25, в потолке — 30. В более бюджетных версиях утеплением служит минвата, но тогда ее закладывается больше.

— В принципе, при индивидуальном заказе ограничений нет никаких. Если нужно, мы обеспечим сопровождение ГАИ, более мощную технику для погрузки/разгрузки и перевозки, но это ударит по стоимости квадратного метра. При стандартных заказах мы ограничены в основном шириной. Потому что при ширине более 4 метров нам нужна машина ГАИ. Если по Беларуси это решаемо, то при перевозке модуля за границу, а мы нацелены и уже работаем с рядом стран Европы, могут возникнуть проблемы именно с передачей от наших дорожных служб их дорожным службам, — делится Максим. — Мы очень не хотим, чтобы это все отобразилось на стоимости дома.

С внутренней стороны утепленный каркас обшит пароизоляционной пленкой, OSB-плитами и ламинированной ДСП, с наружной стороны — листом жести для защиты от грызунов. Отделка фасада (как и интерьера) может быть любой. Для выполнения пожеланий заказчика в компании есть свой дизайнер, которая стала лучшей в двух номинациях республиканского конкурса дизайнеров за последние три года.

Уже после установки на участке монтируется терраса, появляется навес.

— С террасами все просто: мы можем привезти их на место и быстро собрать. Кстати, в Беларуси не все заказчики готовы террасу заказать сразу с домом. Но сейчас идет подготовка к контракту с Норвегией, и там террасы есть у каждого дома. Каждый день нахождения в Европе стоит очень дорого, поэтому мы приняли решение собирать террасы сразу на производстве, потом разбирать их на большие элементы (модули) и уже на месте быстро их скреплять, — рассказывает руководитель компании.

Крыша у дома двускатная, под небольшим углом. А водосточные трубы спрятаны в вентилируемом фасаде. Выбор такой геометрии опять же обусловлен габаритами перевозки грузов. Компания может установить и традиционную «треугольную» крышу, но она не будет выполнять никакой функциональной роли, а исключительно декоративную. Для перевозки модуля с такой крышей просто будет разработан маршрут, где тягач будет объезжать мосты.

Устанавливается дом практически на любой фундамент (и даже без него, на обычные брусья), но в компании рекомендуют свайный фундамент из 10 свай.

Что есть внутри дома

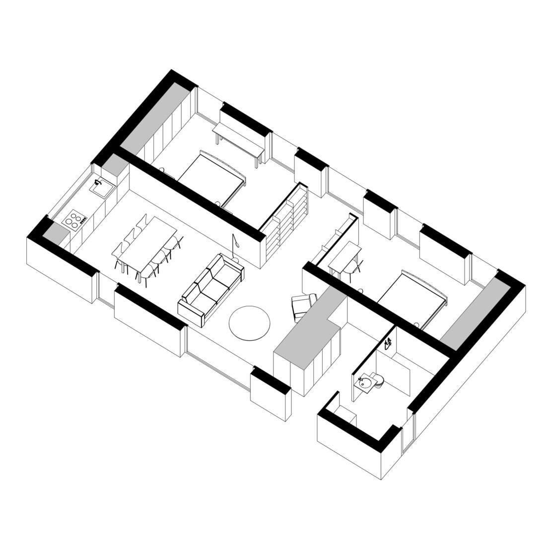
Хоть Flybird Wagon и небольшой домик, но в нем есть все необходимое для полноценной комфортной жизни одного-двух человек. Внутреннее пространство разделено на четыре зоны: прихожая, спальня, кухня-гостиная и санузел с хаммамом. Есть также подсобка, где установлены котел, бойлер, парогенератор для хаммама и система «умный дом».

Высота потолка — 2,51 метра. Это немного, но недостаток простора над головой компенсируют большие окна, визуально расширяющие пространство. Однако они же диктуют необходимость использования для отопления конвекторов в спальне и гостиной. В целом система отопления в Flybird Wagon комбинированная. В санузле и хамаме применен теплый водяной пол. Прогревать дом можно и камином — по скрытым в стенах каналам теплый воздух распространяется по всем помещениям. Для охлаждения предусмотрен кондиционер.

— Мы видим, что в Беларуси кондиционер необходимо использовать всего лишь плюс/минус 10−15 дней в году. Поэтому лучшим вариантом для нашего дома будет использование недорого мобильного кондиционера, для которого мы встроили специальные трубки для подключения. Если заказчик поставит на окна жалюзи, на крыше сделает фальш-террасу, а вокруг высадит деревья, то ему кондиционер и вовсе может не понадобиться, поэтому он идет у нас как опция. В Европу дома поставляются с кондиционером, — рассказывает Максим Мацель. — А вот для обогрева дома, мы пришли к такому выводу, единственным правильным вариантом будет — отопление в полу. Причем мы делаем его как кабелем, так и водяными трубами. Если в этом доме теплый пол реализован только в санузле, так как это — экспериментальный дом, то сейчас мы выпускаем все модули с обязательным теплым полом по всей площади жилья.

Контролировать микроклимат будет система «умный дом», управлять которой можно со смартфона или с панели на стене. В целях экономии электроэнергии автоматика поддержит минимальные настройки во время отсутствия дома жильцов и начинает работать наполную накануне их возвращения. Также система отключает потребление электроэнергии на отопление, если вы зажгли камин.

Системы хранения расположены в прихожей, спальне и гостиной. Благодаря такому решению дом не перегружен мебелью — встроенные шкафы воспринимаются как стены. Тамбур в доме также отсутствует. Его функционал барьера между холодной улицей и теплым помещением выполняет система микроклимата.

От малого к большому

Помимо Flybird Wagon, у компании есть продукт, который называется Flybird Kubiki. То есть это система из нескольких модулей, которые совмещают, по желанию заказчика, в единый дом. Собрать такой дом займет чуть больше времени, чем подключить один модуль к коммуникациям на участке. Процесс соединения модулей занимает несколько дней, так как места стыковки требуют детальной доработки после установки.

— Мы разработали свою систему стыковки модулей. Это достаточно сложная вещь, на самом деле. Если стыковать электрику просто, то вот над стыковкой воды, отопления, кондиционера нужно сильно постараться. Плюс нужно стыковать пол, потолок, стены. Ведь если между модулями будет перепад пола более миллиметра — это очень плохо, — делится Максим. — Мы еще не пришли к такому техническому уровню, чтобы сделать два одинаковых модуля, а потом просто пристегивать их друг к другу. Мы на производстве соединяем два каркаса, потом занимаемся их совместной отделкой, потом разъединяем, перевозим на место и вновь там подгоняем друг к другу.

В компании уверены, что двухмодульные дома станут самыми востребованными на рынке. Жилье из двух модулей будет площадью от 70 до 80 «квадратов». Вырастут и варианты всевозможных планировок.

Причем Flybird Kubiki можно будет ставить и друг на друга. Сейчас в компании разработали концепцию дома из 10 модулей, которую можно реализовать на практике.

— У нас уже есть, так сказать, «проба пера» в Минске, мы сделали совместно с владельцами ресторан из 7 модулей. Правдатам по желанию владельцев велась отделка внутри их собственными силами. Так что полноценным нашим проектом его назвать сложно, — делится Максим. — Но интересный факт, что для жилых домов второй модуль будет примерно по стоимости в половину цены от первого. Потому что там не нужно устанавливать котел, камин и прочее, что очень сильно поднимает стоимость модуля.

Сколько это все стоит

Пока в Беларуси к модульным домам присматриваются с опаской, как когда-то было с квартирами формата «евро». Однако сейчас «евро-двушки» и «трешки» разбирают первыми. Будет ли такое с Flybird Wagon и Flybird Kubiki, покажет время. Однако продукция компании уже востребована в Европе. Flybird реализует контракты на поставку модулей в Норвегию, Германию, Латвию.

Сейчас Flybird Wagon с внутренними размерами дл.12 000мм/шир.3500мм/выc.2500мм с дизайнерским ремонтом, но без опций обойдется покупателю в € 55.636. Дополнительные опции (хаммам, камин, уничтожитель отходов, посудомоечная машина и прочее) догоняют цену до € 68.662. FlyBird Wagon с внутренними размерами дл.6100мм/шир.2900мм/выс.2500мм будет стоить в «базовой комплектации» € 30.182, со всеми опциями — € 36.519.

- Наша идея заключается в том, что через какое-то время определенный сектор потребителей будет относиться к домам, как к автомобилям или телефонам. Сейчас поясню. Сегодня банк кредитует наших покупателей сроком на 20 лет. Через 20 лет все технологии, которые используются в этом доме, устареют, и владельцу захочется чего-то нового. Как и с автомобилями. Могу с уверенностью сказать, что точно появится из нового через 20 лет: система управления домом голосом (мы уже ее внедряем в наши новые дома), точно будет другой материал стен, пропадут шторы и жалюзи, а стекла будут автоматически затемняться, очевидно, что пропадут телевизоры, это будет проекция либо на стены, либо встроенная технология в окна, точно пропадут выходящие из земли электрические кабели, солнечные батареи будут настолько эффективными и дешевыми, что в кабелях пропадет любая потребность, — рассказывает руководитель компании. — И вот наша идея в том, что через 20 лет этот домик можно будет продать и перевезти на новое место. То есть владелец купил за 60 тысяч, продаст за 30 кому-нибудь для дачи, а для себя возьмет что-то новое. То есть должен появится рынок подержанных домов, поэтому мы и делаем их способным к перевозке.

FlyBird Kubiki с одноэтажным размещением двух модулей (дл.12 000мм/шир.3500мм/выc.2500мм — база и дл.8200мм/шир.3500мм/выc.2500мм — спальный модуль) обойдется в € 81.713 (55.336 + 26.377 спальный модуль). Со всеми опциями цена поднимется до € 98.239.

FlyBird Kubiki с двумя модулями, которые располагаются друг над другом, и лестницей между ними обойдется в € 108.226. Правда, спальный модуль здесь имеет размеры: дл.11 500мм/шир.3000мм/выc.2500мм. Опции + € 17.126.

Опыт жизни FlyBird Wagon

Владельцем домика, который победил в соревнованиях дизайнеров, стал Дмитрий Мацель. Он также работает в «Флайбирд» руководителем производства модулей и является братом Максима. Дмитрий переехал в 42-метровый FlyBird Wagon из четырехкомнатной квартиры в Минске.

— Это была небольшая четырехкомнатная квартира в «панельке», в которой я жил только в двух комнатах, как и здесь. Но все равно поначалу пришлось привыкать к пространству. Я еще переехал в этот дом в конце ноября прошлого года, была слякоть, грязь, — рассказывает Дмитрй. — Вопросы пространства и грязи удалось решить террасой. Она как бы продолжает дом за окнами, и поэтому ощущаешь себя не как в «однушке» с большими окнами, а как в настоящем коттедже. Особенно летом.

Дом, в котором живет Дмитрий, был первым модульным у компании и являлся экспериментальным. Сотрудник Flybird решил первым пожить в детище компании, чтобы проверить все достоинства и недостатки модуля. Некоторые технологии и вовсе только «обкатывались».

К примеру, в трех частях дома стоит различная система отопления. Это позволило специалистам выбрать наиболее подходящую для своей дальнейшей продукции.

— Еще один недочет, который всплыл — это использование в гостиной пола из ламината. Когда на улице очень холодно, то и пол в комнате холодный. Мы решили эту проблему утеплением цоколя, — делится Дмитрий. — Еще один недочет — слишком большая дверь. Ее нужно делать намного меньше, так как такая большая дает и усадку, и даже пару раз ее открывало ветром. Эту проблему решили регулировкой, но впредь такие большие двери ставить не будем. Все остальное — мелочи.

По коммунальным платежам за электрическое отопление дома за год собственник заплатил € 200 в эквиваленте. Это при том, что Дмитрий в доме не стал регистрироваться и ему насчитывали электроэнергии по повышенному тарифу.

— Несмотря на то, что внешне дом выглядит очень просто — это не дешевый «каркасник» щитовой постройки, а современный энергоэффективный дом с набором технологичных опций и дизайном, который признали международные эксперты. Площадь примерно равна столичной «однушке», однако за эти деньги вы получаете совершенно инновационный продукт, — делится Максим. — Нам приятно, что его оценили наши европейские коллеги. Продукт соответствует философии европейских стран в сфере экологичности. Он отлично вписывается практически в любой ландшафт и совсем не вредит окружающей среде. У нас даже есть система полной переработки дождевой воды, которая будет собираться в контейнеры на крыше, для увеличения автономности. Я уверен, что и белорусский потребитель дойдет до такой философии.

Есть что сказать?
Читать:
Лента новостей
Опрос
Как вы считаете, покупать квартиру лучше сейчас или следует подождать?