Регистрация

Секреты дизайнеров. Ремонт в «трешке» с глобальной перепланировкой для пары в возрасте со смелыми идеями

29.12.2016 16 5240

Карина Комиссарчик, Карина Комиссарчик

Последний в этом году материал о дизайне будет посвящен квартире, которую дизайнеры обустраивали для пары в возрасте. Владельцы не боятся смелых идей и ярких красок, поэтому были готовы к экспериментам. Интерьером трехкомнатной квартиры в новостройке занималась дизайн-студия Primo Gatto, руководитель-дизайнер Ирина Шевцова и архитектор Дмитрий Расошенко.

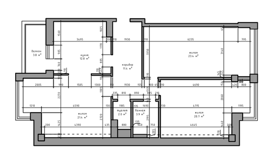
Итак, дизайнеры работали с трехкомнатной квартирой площадью 100 кв.м. Планировка и интерьер разрабатывались для пары в возрасте (65−78 лет), которые уже вырастили детей и создавали обстановку только для себя. Они просили сделать модный, современный интерьер с яркими акцентами, однако в рамках определенного бюджета.

— Изначально в квартире была не совсем удобная планировка: три небольших помещения и кухня были разделены между собой узким коридором. Было решено объединить кухню и гостиную, а также закрыть вход в них со стороны прихожей, чтобы отвести больше места под рабочую поверхность для готовки. К зоне кухни примыкает балкон, вход в который был расширен, дабы наполнить естественным светом помещение.

Далее, в самой большой жилой комнате была организована спальня, а внутри нее возведены перегородки для отдельной гардеробной. Санузлы решили оставить раздельными — для хозяев и для гостей. В третьей комнате был организован кабинет и пошивочная для хозяйки. Здесь также разместилось спальное место для гостей, — рассказал Дмитрий Расошенко.

— По цветовой гамме клиенты хотели что-то светлое, но при этом с яркими акцентами, которые бы дали возможность владельцам самовыразиться. Плюс у них была коллекция необычных картин, которые мы также использовали в интерьере как видовые акценты, дополняющие образ и характер квартиры.

Владельцы много путешествуют, у них скопилось много памятных сувениров, для которых нужно было отвести место в квартире. Также множество одежды, обуви, шляп и прочих атрибутов яркой жизни требовали отдельного помещения — гардеробной, место для которой мы выделили в спальне, — объяснила Ирина Шевцова.

Итак, начнем с прихожей. Она получилась достаточно традиционной — здесь установили большой шкаф из ламинированного ДСП для верхней одежды с центральным зеркальным фасадом, а также большой пуф. Так как в помещении нет естественного света, отделочные материалы здесь использовались светлые. На полу уложена плитка, стены окрашены, потолок подшит гипсокартоном и окрашен. В прихожей в качестве ярких акцентов использованы картины владельцев.

Кухня-столовая-гостиная получилась просторной и светлой. Визуальными опорами являются точечно расставленные яркие акценты. Зона готовки выполнена Г-образной формы. Изначально владельцы хотели установить кухонный «остров», затем передумали — больше места отвели столу с гостевой раскладкой. Также к кухонным фасадам примыкает небольшая барная стойка, обрамленная с одной стороны нишей с полками и телевизором. Обратите внимание на вытяжку, которая оформлена в красный цвет. В этой части помещения расположена и обеденная группа, визуально выделенная с помощью красных стульев. Пересекаясь между собой, красные цвета создают общую концепцию помещения. Пол в кухне облицован плиткой, стены выкрашены, на потолке — гипсокартон.

— Для визуального разделения гостевой и кухонной зон мы поставили угловой диван. Также разделителем является паркет на полу в гостевой зоне. Чтобы части помещения переплетались между собой, стену в зоне TV мы оформили так же, как и нишу возле барной стойки, — поделился Дмитрий.

— Многие отделочные материалы, аксессуары мы покупали на распродажах, чтобы сэкономить. Например, та плитка, которая стоила $ 100 за кв. м, мы купили ее за $ 20. Обратите внимание на люстры, которые мы использовали в проекте. Оригиналы таких дизайнерских светильников стоят € 3,5 тыс. за одну. Мы нашли хорошие копии за $ 300−600 за штуку, — рассказала Ирина.

Переходим в спальню. Вход в нее был немного перенесен, чтобы иметь возможность установить шкаф. По цветовой гамме это помещение разительно отличатся от всех остальных. Здесь преобладают винные, сиреневые и серые оттенки. Главным акцентом спальни является ручной работы фреска, сделанная на заказ. Перегородки, ведущие в гардеробную, сделаны глянцевыми, что придает комнате легкий гламурный оттенок. Был вариант сделать перегородки стеклянными, чтобы не только добавить живость в интерьер, но и сэкономить пространство, однако владельцы отказались от этой идеи. Рядом с гардеробной встроен в простенок до потолка шкаф для обуви с зеркальными фасадами, заменяющими обычное зеркало в полный рост. На полу в спальне — паркет, стены окрашены, потолок — гипсокартонный с двумя уровнями, чтобы подчеркнуть зону спального места.

В третьей жилой комнате нужно было объединить три зоны: кабинет, гостевую спальню и место для шитья. Здесь интерьер более простой, нейтральный. Использованы светлые цвета, спокойные текстуры. На стенах — обои, на полу — паркет, потолок смонтирован из гипсокартона.

— Санузел было решено немного расширить за счет кабинета. Комната немного уменьшилась, но по функционалу ничего не потеряла. В гостевом санузле установлен унитаз и умывальник, а также выделили место для стиральной и сушильной машин. В хозяйской ванной комнате было выделено место под хозяйственный шкаф с бойлером, системой для очистки воды и прочими техническими атрибутами. Также здесь была установлена довольно-таки большая душевая кабина, умывальник, биде и унитаз. От ванной владельцы отказалась. В обоих санузлах была использована светлая плитка испанского производителя, — рассказал Дмитрий.

— Этот ремонт очень индивидуальный. На черновые материалы и работы было потрачено $ 30 тыс., чистовые материалы, мебель, свет, техника стоили $ 70 тыс., — рассказал Ирина.

Фото: Феликс Сиваков, рендеры — авторская работа дизайн студии Primo Gatto

Есть что сказать?
Читать:
Лента новостей
Опрос
Как вы считаете, покупать квартиру лучше сейчас или следует подождать?