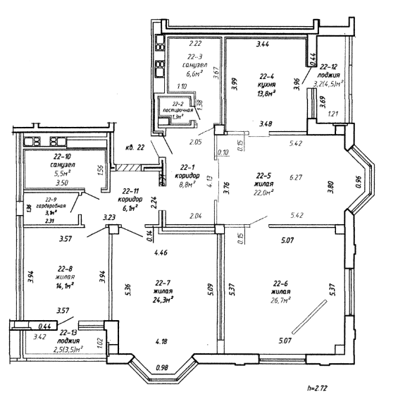
— На правильном языке Мингорисполкома объединение двух квартир — это слияние, которое можно осуществить путем реконструкции двух жилых помещений с объединением в одно. Согласовать обычную перепланировку легко, а вот реконструкцию — сложно, так как она подлежит обязательной государственной строительной экспертизе, которая создана, как мне кажется, «зарубить» любой проект. Зато, если у нас были бы такие же землетрясения, как в Чили, наши дома бы все равно стояли.
В проекте реконструкции обязательными являются четыре раздела: АР (архитектурные решения), ЭО (электрооборудование), КМ (конструкции металлические), ВК (водопровод канализации). Но создав проект и пройдя эту экспертизу, можно начинать реконструкцию.
Хотел бы более подробно остановиться на кухне, которую мы переделываем в помещение с другими функциями. Мы не можем указать, что там будет спальня, нужно написать, что это, например, будет кабинет. Объясню, почему такое правило. Наши экологи и санслужбы говорят, что нельзя располагать спальню под кухней или туалетом. То есть мы не можем из кухни сделать спальню, потому что над ней будет мокрая зона, а это антисанитария.
Далее, многие говорят, что если в кухне газовая плита, то вообще никакая перепланировка невозможна. Это неправда. Чтобы сделать из кухни с газовой плитой кабинет или студию, необходимо разработать проект, на основании которого можно заглушить транзитный газ. Да, это сложно, но возможно. Этим вопросом занимается «Мингаз» — монополист в Беларуси.

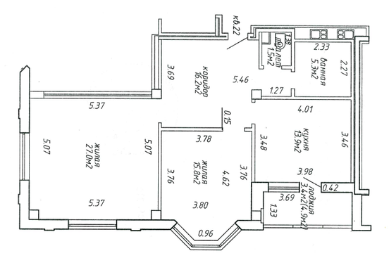
- Квартира № 1

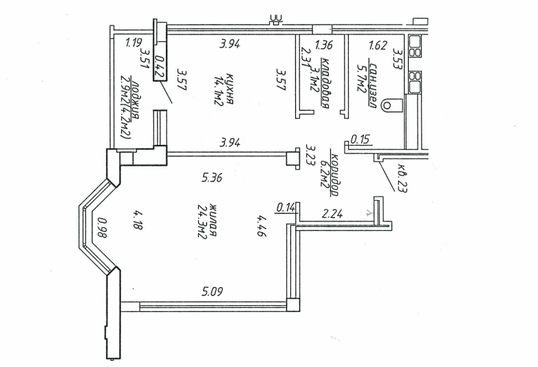
- Квартира № 2