Регистрация

Секреты дизайнеров. Обустраиваем «однушку» в ЖК «Новая Боровая» с полноценным спальным местом, рабочей и гостевой зонами за $ 11 тыс.

01.09.2016 11 9338

Карина Комиссарчик, Карина Комиссарчик

Вместить все, что хочется в небольшую однокомнатную квартиру для двоих бывает сложно, так как необходимо и полноценное спальное место, и чтобы было где принять гостей, а также поработать. Дизайнер Ольга Иванова студии Анны Черноокой рассказала, как обустроила «однушку» для молодой пары в ЖК «Новая Боровая».

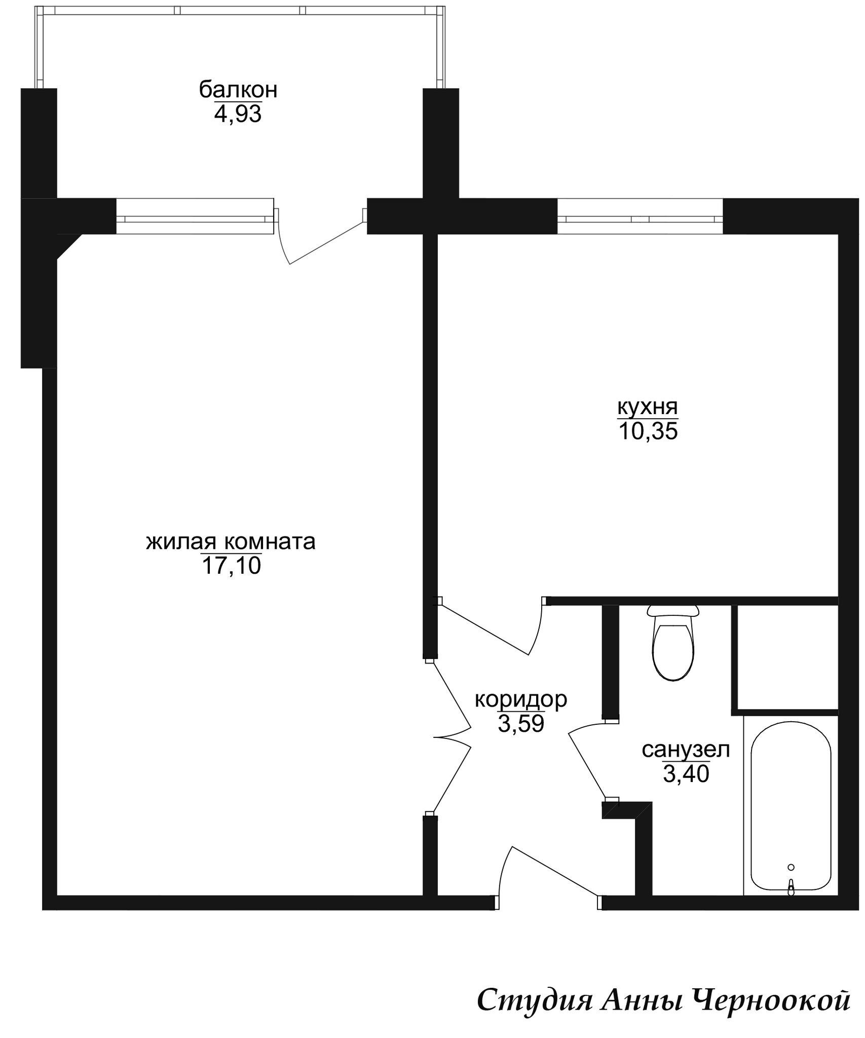
Площадь квартиры, с которой работала Ольга, — 37 кв.м. Из них кухня занимает — 10,3 кв.м. Владельцы сразу обозначили, что бюджет на ремонт строго ограничен. Перед дизайнером стояла задача за $ 11 тыс. сделать чистовой ремонт в современном стиле и в светлой, яркой цветовой гамме.

— Мы постарались создать полноценное, функциональное пространство, при этом очень уютное и домашнее, за небольшой бюджет. Также заказчики хотели, чтобы ремонт не выглядел дешевым. В квартире живет молодая супружеская пара. Они хотели, чтобы в квартире было выделено место для сна, отдыха и приема гостей, рабочее место, зона приготовления пищи и достаточное количество систем хранения. Естественно, владельцы понимали, что не получится сделать каждую зону просторной, поэтому зонирование будет точечным и локальным.

Изначально жилая комната в квартире была изолированной, санузел — совмещен. Дизайнер предложила оставить такую организацию пространства, но отказаться от дверных проемов в кухню и жилую комнату, тем самым зрительно увеличив объём квартиры. Плюс, отказ от проведения глобальных черновых работ позволил значительно сэкономить. Небольшие изменения по планировке позволили значительно сэкономить на черновых работах, тем самым сделать квартиру свободнее.

— Что касается стиля в интерьере, то заказчики не указывали на что-то конкретное. Для них было важно, чтобы квартира была современной с ненавязчивым исполнением, чтобы в ней хотелось находиться каждый день. Поэтому было принято решение использовать светлые тона с добавлением ярких акцентов, а черный цвет помог подчеркнуть отдельные места в интерьере. Дерево создало в помещении уютную и теплую атмосферу. При выборе мебели внимание отдавалось простым и четким формам, чтобы избежать ощущения «нагромождения».

К сожалению, прихожая очень маленькая. Это не позволило вместить шкаф для хранения верхней одежды. Пришлось компенсировать это большим шкафом в жилой комнате, где отведено место для хранения сезонной и повседневной одежды и обуви, а также бытовых объемных вещей. В прихожей есть вешалки, несколько полок и пуф.

Далее, идем в кухню. Здесь размещены две зоны: для готовки и обеденная группа, которая также выполняет роль места для приема гостей. Для этого был приобретен раздвижной стол. Учитывая, что кухня достаточно просторная, то это решение вполне комфортное. Г-образная кухня была сделана на заказ. Фасады из шпонированного ДСП, а «фартук» и столешница — из МДФ, так как он более прочный и долговечный и прост в установке. Габариты санузла небольшие, поэтому стиральную машину было решено разместить на кухне. Воздуховод, вытяжка и другие коммуникации были спрятаны в гипсокартонном коробе в потолке.

Во всей квартире были использованы одинаковые отделочные материалы: ламинат высокого класса износостойкости на полу, обои под покраску на стенах, потолок просто заштукатурен и покрашен. Дизайнер объяснила, что сегодня производят прочный, долговечный ламинат, который подходит и для такой мокрой зоны, как кухня. Конечно, было бы лучше установить плитку, однако из-за ограниченного бюджета пришлось искать альтернативы. Обои под покраску не требуют идеального выравнивания стен, а также позволяют через какое-то время перекрасить стены и, таким образом, немного освежить интерьер. Чтобы не опускать потолок и не делать пространство меньше, дизайнер отказалась от навесных конструкций, применив специальные системы освещения. Однако, это решение подойдет только если в квартире ровные потолки. В случае с этой квартирой тратить деньги на выравнивание потолков не пришлось.

— В жилой комнате нужно было организовать место для сна, зону отдыха и рабочее место. Так как комната небольшая, то мы предложили владельцам установить шкаф-трансформер, где и прячется спальное место, а также есть секции для хранения вещей. Для маленькой квартиры это хорошее решение.

Зону TV дизайнер сделала в минималистичном стиле, ограничившись небольшими тумбами спокойных цветов, диваном и небольшим журнальным столиком. Вся мебель светлая, нейтральная. В углу комнаты выделено место для рабочего стола.

Балкон в квартире сделан зоной чиллаута, где можно отдохнуть, почитать книгу, попить чай и т. д. Так как квартира находится на 10-м этаже, то вид с балкона открывается красивый. На полу здесь установлена виниловая плитка, стены и потолок оштукатурены.

— Санузел в квартире очень маленький, поэтому мы рассматривали только светлую плитку. Изначально заказчики просили ванную, однако после от нее отказались и установили душевую кабину. Также здесь есть небольшой умывальник и унитаз с инсталляцией. Зону умывальника мы полностью задекорировали зеркалом, чтобы визуально расширить помещение.

На отделку было потрачено $ 2,5 тыс., сантехника обошлась $ 1, 5 тыс., электрика с освещением — $ 1 тыс., мебель обошлась в $ 4 тыс. Так как многое владельцы делали самостоятельно, то на стоимость работ ушло около $ 2 тыс. Общая стоимость — $ 11тыс.

— Я считаю, что при ремонте нельзя экономить на тех вещах, которые скрыты от глаз: электрика, сантехнические коммуникации, радиаторы отопления, оконные рамы — это не касается дизайна, но влияет на комфорт. Желательно, конечно, в кухне устанавливать плитку, тогда отделка прослужит дольше. Однако, если речь идет о строгой экономии или разнообразии, то можно обойтись и ламинатом. То же самое касается и плитки на фартуке. Ее можно заменить МДФ, который тоже прочный, но выглядит необычно в интерьере.

Фото: Павел Садовский, рендеры — авторская работа студии Анны Черноокой

Есть что сказать?
Читать:
Лента новостей
Опрос
Как вы считаете, покупать квартиру лучше сейчас или следует подождать?