Регистрация

На пустыре за главным корпусом БГУ построят 8-этажное здание

17.08.2016 4 2412

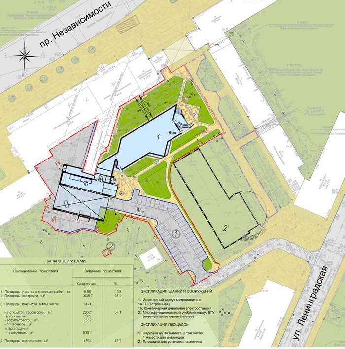
К 2019 году пустырь во дворе главного корпуса БГУ и Управления минского метрополитена приобретет новые черты. Здесь город планирует строительство 8-этажного здания — отдельного инженерного комплекса для обслуживания метро. Проект вынесен на общественное обсуждение.

Согласно пояснительной записке, строительство 8-этажного здания нанесет незначительный ущерб окружающей природной среде, но качественно улучит социально-экономические условия столицы.

В здании появится тренажерный зал на 25 человек, помещение оперативно-дежурной службы УВД по охране метрополитена, кабинет службы электроснабжения, залы совещаний, диспетчерские и сопутствующие объекты.

Подъезд к комплексу будет организован со стороны улицы Ленинградской. Здесь же предусмотрено обустройство плоскостной парковки вместимостью всего 34 мест. В том случае, если парковки будет недостаточно, работники смогут оставлять свои автомобили на паркинге ТРЦ «Столица». Деревья, вырубленные и пересаженные в ходе строительства, будут компенсированы.

В перспективе планируется строительство еще одного объекта — нового корпуса БГУ. Он запроектирован ближе к улице Ленинградской, на плане идет под № 2.

Общественное обсуждение проекта продлится до 9 сентября 2016 года. Замечания и предложения по отчету об ОВОС необходимо направлять в администрацию Московского района г. Минска по адресу: 220 036, г. Минск, пр. Дзержинского, 10, mosk.minsk.gov.by.

Есть что сказать?
Читать:
Лента новостей
Опрос
Как вы считаете, покупать квартиру лучше сейчас или следует подождать?