Регистрация

За рамками привычного: минские квартиры с необычными планировками

25.04.2016 1 4930

Большинство современных квартир имеют типовые параметры или свободную планировку. Однако есть в Минске и эксклюзивные объекты — именно о них читайте в новом обзоре Realt.by.

8-комнатная квартира на ул. Гая за Br10 715 млн ($ 540 тыс.)

По цене дюжины столичных «однушек» продается одна, но 8-комнатная двухуровневая квартира по ул. Гая. Общая площадь объекта недвижимости почти как у просторного загородного дома — 320 кв. м, жилая площадь — 151 «квадрат». На данный момент это самая многокомнатная столичная квартира, выставленная на продажу в базе Realt.by.

Располагаются двухуровневые апартаменты в 6-этажном кирпичном доме 2001 года постройки. В квартире имеются три санузла и две лоджии. В комплексе с жилым помещением идет огороженное машиноместо в отапливаемом подземном паркинге. Что касается самой планировки — здесь комментарии излишни. На огромной площади хозяева разместили и спортзал, и бильярдную, и каминный зал, и даже кладовую площадью 20 кв.м.

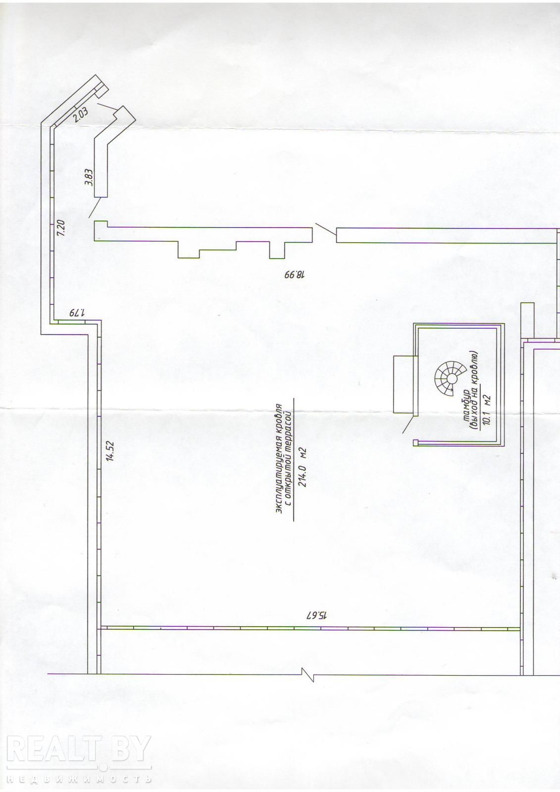
Квартира площадью 412 кв. м на ул. Сторожевской за Br23 810 млн ($ 1,2 млн)

Больше миллиона долларов стоит пентхаус в доме 1997 года постройки на улице Сторожевской. Общая площадь квартиры превышает размеры среднестатистического коттеджа. На площади в 412 кв. м разместились роскошные апартаменты в стиле лофт.

Но самое интересное, объект недвижимости оснащен собственной террасой площадью 214 кв.м. Шезлонги и площадки для барбекю на крыше минской многоэтажки — да быть не может, разбудите меня!

Миниатюрная «однушка» общей площадью 20 кв. м за Br635 млн ($ 32 тыс.)

На контрасте все выглядит еще пикантней. Общая площадь однокомнатной квартиры на ул. Передовой по размерам сопоставима с кладовкой в 8-комнатной квартире на ул. Гая и почти в 20 раз меньше пентхауса на ул. Сторожевской. По цене пентхауса можно приобрести 37(!) таких «малосемеек» в Минске. Хотя столько их в продаже едва ли наберется: в базе Realt.by столичные квартиры общей площадью 20 кв. м можно пересчитать по пальцам. Жилая площадь в таких объектах — не более 12 «квадртатов». Даже сейчас, когда квартиры небольших площадей — самый ходовой товар на рынке, «малосемейки» не пользуются большой популярностью.

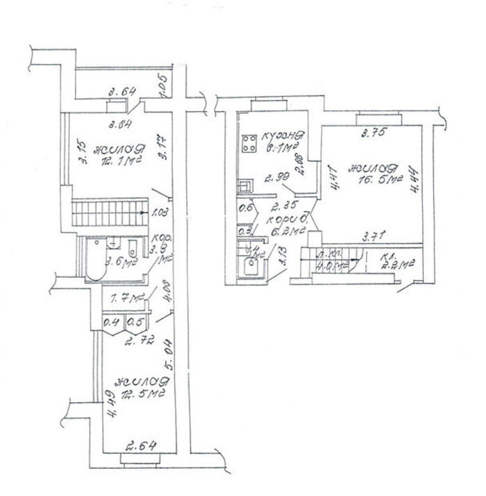
Новостройка с проходными комнатами по цене от Br15,5 млн за кв. м ($ 780)

Казалось, век квартир с проходными комнатами прошел, но не тут-то было. Жилой комплекс «Крона» располагается в ближайшем столичном пригороде — в деревне Прилуки, что в 6 км от МКАД. Изначально объект задумывался как лабораторный комплекс, но планам не суждено было сбыться. У научно-исследовательского института не хватило средств, в итоге стройку заморозили. Через некоторое время объект трансформировали в жилые помещения, однако история наложила свой отпечаток на планировки квартир. К примеру, «трешка» выглядит вот так.

Судя по схеме, одна из комнат и кухня в квартире — проходные. Еще непривычней то, что вход в санузел размещен в жилом помещении. Что ж тут скажешь — планировка не самая тривиальная, подойдет для любителей эксклюзива.

Двухэтажные квартиры в доме № 53а по улице Волоха

Таких домов в Минске точно больше нет. Внешне обычная многоэтажка, построенная по чешскому проекту, удивляет изнутри: все трехкомнатные квартиры в доме 1963 года постройки — двухэтажные. В каждой из них предусмотрена кладовая. В настоящий момент в этом доме нет выставленных на продажу квартир.

Есть что сказать?
Читать:
Лента новостей
Опрос
Как вы считаете, покупать квартиру лучше сейчас или следует подождать?