Регистрация

Новый бизнес-центр «Орлан»: аренда — 110−200 тыс. рублей за кв. м

22.01.2016 6 5316

Карина Комиссарчик, Карина Комиссарчик

Минск пока еще продолжает застраиваться новыми офисными площадками на любой вкус и карман. В столице появляются не только объекты премиум-класса в центральной части города, но и здания проще и доступнее для молодого бизнеса. Недавно был сдан в эксплуатацию новый бизнес-центр В-класса «Орлан». Мы решили оценить новый коммерческий объект как с внешней, так и с внутренней стороны. Подробности в нашем фоторепортаже.

«Орлан» расположен на пересечении улиц Карастояновой и Тиражной. Место удалено от центра города, зато рядом конечная остановка многих маршрутов общественного транспорта — ДС «Карастояновой». Недалеко от объекта находится 2-е транспортное кольцо, что будет удобно для автовладельцев. В шаговой доступности расположено еще одно офисное здание — бизнес-центр «Капитал», а также небольшой ресторан «Яблоко», где можно пообедать.

Внешне здание выглядит эффектно — в виде крыла орлана. Отсюда и название бизнес-центра. Говорят, что на малой родине одного из учредителей компании-застройщика СООО «Сигмаполюс» водилось много орланов, в связи с чем он и выбрал форму здания и его название.

Архитектурным проектом бизнес-центра занималась творческая мастерская Валерия Ронделя. Если сверху здание выглядит как крыло, то сбоку похоже на корабль, льдину, даже крыло самолета — у кого на что фантазии хватит.

8-этажное здание оснащено всеми современными техническими опциями, отделка помещений выполнена по европейским стандартам. Кстати, по комфортности БЦ не уступает зданиям А-класса. Лишь расположение и отсутствие вместительной парковки помешало «Орлану» претендовать на высшую классовую категорию. Гостевая парковка есть, просто она небольшая. Проблема с местами для автомобилей решена закрытым паркингом на 60 машиномест. Цена аренды одного машиноместа — 1 млн рублей.

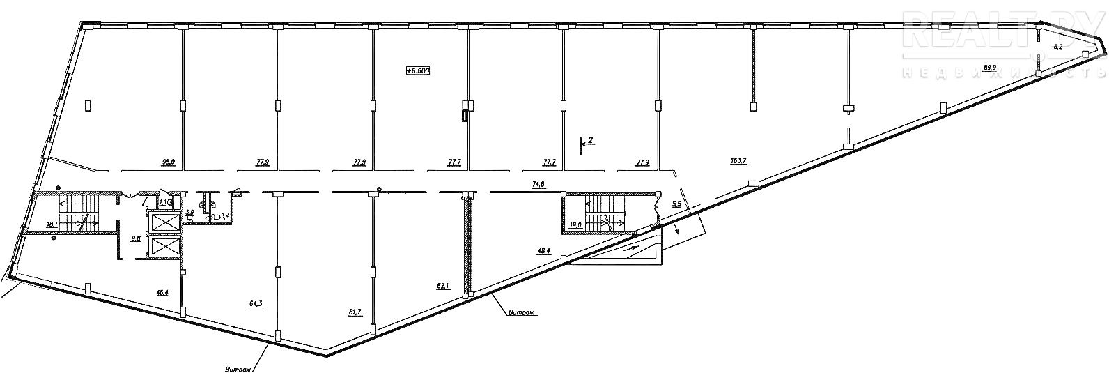
Внутри здание имеет коридорную систему с нарезкой на большие помещения с максимальной глубиной в 10 метров, чтобы естественное освещение попадало в них максимально долго. Особый интерес представляют угловые помещения. Благодаря панорамным окнам они напоминают капитанский мостик океанского лайнера. В зависимости от этажа в них можно организовать как кабинет директора, так и open-space для десятков человек. На первом этаже бизнес-центра расположено помещение с витринным остеклением, которое подойдет, например, для автосалона.

Здание оборудовано японской системой кондиционирования Daikin, шведской системой вентиляции Systemаir, швейцарскими скоростными бесшумными лифтами Schindler. Бизнес-центр оснащен оптоволоконным высокоскоростным интернетом от трех провайдеров. В здании есть своя котельная, что избавляет от проблем с отоплением.

Татьяна Долгая, менеджер по коммерческой недвижимости СООО «Сигмаполюс»:

— Наш бизнес-центр в первую очередь подойдет для IT-компаний. Здесь очень тихо, нет лишней суеты, которая мешает сосредоточиться. Также у нас будет хорошо работаться творческим компаниям. Учитывая весьма доступные ставки аренды, «Орлан» подойдет молодым компаниям. Для них это здание может стать взлетной полосой.

Сейчас у нас стартует акция: для тех, кто заключит с нами договор аренды до 10 февраля 2016 года на год, цена одного кв. м составит 110 тыс. рублей в месяц. Я считаю, что наше предложение — одно из самых доступных на рынке с учетом того, что речь идет о комфортном и современном бизнес-центре. Для тех, кто не воспользуется акционным предложением, цена аренды — 200 тыс. за «квадрат».

В здании можно арендовать помещения площадью от 75 кв. м до 10 тыс. кв.м. Кстати, для всех свои клиентов мы даем месяц бесплатных арендных каникул — время на переезд, распаковку вещей.

Фото: Феликс Сиваков

Есть что сказать?
Читать:
Лента новостей
Опрос
Как вы считаете, покупать квартиру лучше сейчас или следует подождать?