Регистрация

Загородная недвижимость за $ 33 тысячи, $ 75 тысяч и $ 90 тысяч в могилевском направлении

14.11.2014 4406

Мария Сорока, Мария Сорока

Иметь свой загородный домик — мечта многих белорусов. Хорошая экология, наличие водоема или леса, приближенность к столице и транспортная доступность являются основными критериями при выборе жилья. Начиная с жаркого лета, команда Realt.by совместно со специалистами АН «Твоя Столица» путешествует по столичному пригороду, чтобы оценить, какие объекты и по какой цене выставлены на продажу. Сегодня держим путь в могилевском направлении в деревни Синие Горы и Заямное.

Д. Заямное

Деревня Заямное находится в 23 км от Минска. К населенному пункту ведет хорошая асфальтированная дорога, ходит общественный транспорт из столицы. Места здесь тихие и живописные — в 400 метрах от деревни есть озеро, вокруг леса и поля. Вся необходимая инфраструктура размещается в поселке Сокол, до которого всего 2,5 км.

В базе Realt.by мы нашли только один дом, выставленный на продажу в деревне Заямное. Туда и держим свой путь.

Площадь участка — 22,32 соток. На территории разбит сад, построен гараж, летняя кухня и сарай. Подъездные пути к участку хорошие, в темное время суток улица освещается.

Деревянный дом с кирпичной пристройкой возведен в 1960 году. Первый этаж жилой, однако, есть возможность обустройства и мансардного этажа. На окнах установлены стеклопакеты ПВХ, покрытие пола — плитка, линолеум, доска. Большой совмещенный санузел оборудован душевой кабиной и импортной сантехникой (водопроводные краны Grohe). К жилому дому проведены центральные газопровод и водопровод, установлены двухконтурный и твердотопливный котлы, сделана новая электропроводка. Канализация местная (6 колец, диаметр 1 м).

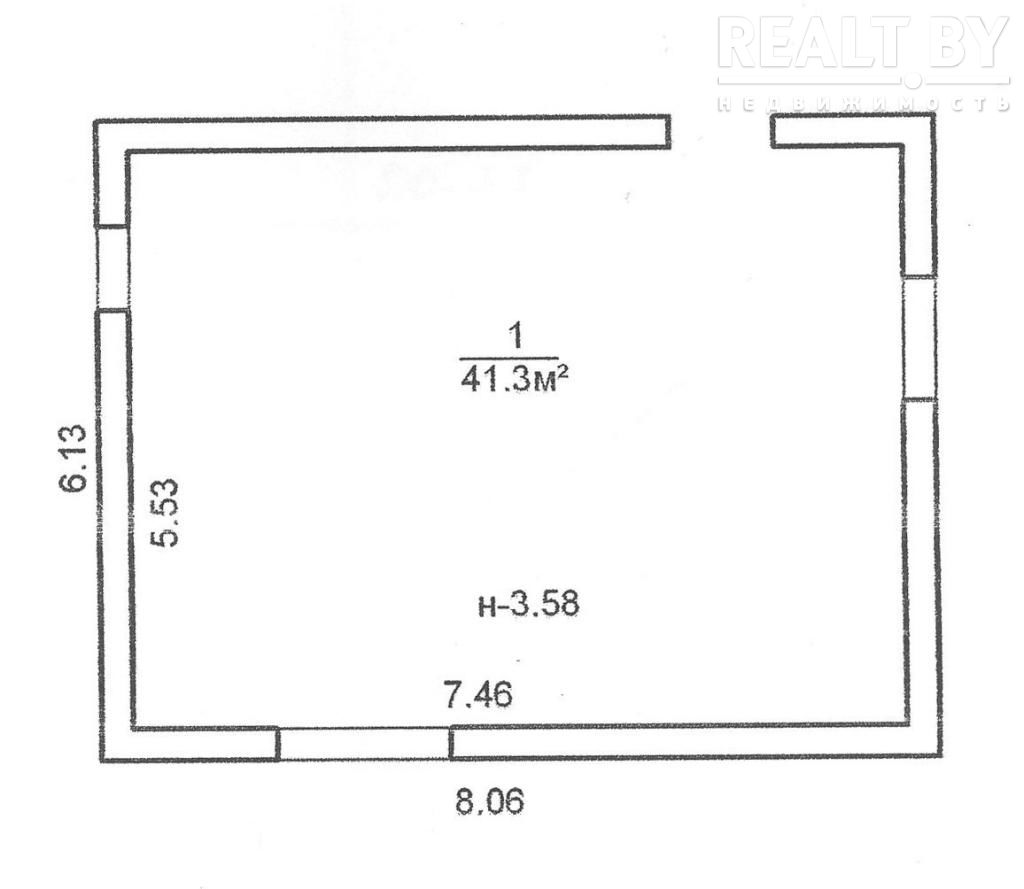
В доме размещаются три жилые комнаты, кухня и санузел.

Площадь участка — 22,3 соток.

Общая площадь дома— 87,7 кв. м (Жилая площадь — 49,5 кв. м).

Стоимость дома— $ 75 тыс.

Планировки:

Д. Синие Горы

Деревня Синие Горы находится в 26 км от МКАД. В населенный пункт ходят автобусы и маршрутка из Минска. Дорога до станции метро «Могилевская» занимает порядка 25 минут на автомобиле. В двух километрах от деревни размещается водохранилище Петровичи. Детский сад, школа, почта и магазины находятся в соседнем населенном пункте, в двух километрах от поселка.

В деревне Синие Горы мы посетили два объекта недвижимости, выставленные на продажу. Первый из них — современный двухуровневый коттедж 2014 года постройки. Он располагается на участке площадью в 15 соток и с двух сторон огорожен сеткой-рабицей. К участку ведут хорошие подъездные пути, лишь последние 200 метров — накатанная дорога. Хозяева уже внесли взносы для обустройства подъездных путей — в течение года и к самому дому проведут хорошую дорогу. Рядом ведется активное строительство.

Коттедж построен по современному проекту под чистовую отделку. Кровля дома — утепленная мягкая черепица Шинглас. Отделка — натуральный песчаник, на окнах установлены стеклопакеты ПВХ. Хозяин коттеджа отметил, что дом строил для себя, все работы выполнены по совести и из самых лучших материалов. С тыльной стороны дома устроен выход в сад. Здесь планировалось размещение небольшой террасы.

Коттедж отличается удачной планировкой — на первом уровне размещается кухня, санузел и две комнаты. В помещениях сделаны теплые полы. Деревянные перекрытия в доме изолированы и утеплены.

На мансардном этаже все подготовлено под укладку чистового пола. Здесь запланировано размещение детских комнат.

В доме также обустроен гараж с автоматическими роллетными воротами.

На территории участка есть скважина, работы по вводу центрального водопровода реализованы на 95%. Центральный газопровод проходит по улице вдоль дома. На участке имеется вывод для местной канализации.

Площадь участка — 15 соток.

Общая площадь коттеджа — 179 кв. м (Жилая площадь — 111 кв. м).

Стоимость коттеджа — $ 90 тыс.

Планировки:

Еще один объект, выставленный на продажу в деревне Синие Горы — это небольшой дом из газосиликатных блоков, построенный в 2013 году. Размещается объект недвижимости в коттеджной застройке, в 80 метрах от асфальтированной дороги. Центральные коммуникации (электричество, газ и водопровод) проходят рядом. Участок площадью 15 соток — угловой, огорожен сеткой-рабицей.

Места здесь живописные и экологически чистые — поселок располагается в рекреационной зоне, от участка до Петровичского водохранилища всего 500 метров.

Площадь участка — 15,1 соток.

Общая площадь коттеджа — 78,8 кв. м.

Стоимость коттеджа — $ 33 тыс.

Планировки:

Цены на недвижимость в д. Синие Горы

Участок в деревне Синие Горы можно приобрести за $ 23 тыс. $ 38 тыс. Стоимость домов и коттеджей варьируется от $ 37 тыс. до $ 95 тыс.

Фотограф Феликс Сиваков

Realt.by Недвижимость

Есть что сказать?
Читать:
Лента новостей
Опрос
Как вы считаете, покупать квартиру лучше сейчас или следует подождать?