Регистрация

Загородная недвижимость в брестском направлении: чем дальше от МКАД, тем дороже квадратный метр

24.10.2014 6 5484

Мария Сорока, Мария Сорока

Начиная с жаркого лета, команда Realt.by путешествует по пригороду, чтобы посмотреть, какие коттеджи, и по какой цене сегодня выставлены на продажу возле Минска. В этом нам помогают специалисты АН «Твоя Столица». В цикле статей вы найдете всю необходимую информацию об объектах, которые сегодня можно купить. Что интересного, и по какой цене предлагается в брестском направлении, читайте в материале Realt.by.

д. Волковичи

Деревня Волковичи находится в 14 км от Минска. В населенный пункт ходят электрички из Минска, дорога на автомобиле от ст. м. «Малиновка» занимает не более 15 минут. В деревне есть свой магазин. Школы и детские сады находятся в соседних агрогородках — Атолино и Фаниполе.

Экскурсию по выставленному на продажу объекту нам провела Светлана Белоокая, специалист вторичного рынка жилья АН «Твоя Столица»:

Дом расположен на участке в 15 соток. По периметру территории организовано капитальное ограждение из бессерных блоков и дерева. К дому примыкает гараж, придомовая территория мощена тротуарной плиткой, реализована парковка для нескольких автомобилей.

Общая площадь трехуровневого коттеджа — 411,5 кв.м. Дом построен из газосиликатных блоков, утеплен минватой, оштукатурен и окрашен. Кровля — натуральная черепица, на окнах — деревянные стеклопакеты высокого качества. Покрытие пола — ламинат, в санузлах — керамическая плитка с подогревом. Единовременно в коттедже возможно автономное проживание двух семей — в доме два отдельных входа, две кухни, девять комнат и пять санузлов.

Фото

— Все необходимые коммуникации подключены: автономное газовое отопление, центральный водопровод, местная канализация, электробойлер, — поясняет хозяин дома.

На цокольном этаже размещаются бильярдная с камином, подсобные помещения и сауна.

Первый этаж занимают просторная гостиная, кухня с выводом и подключением всех коммуникаций, санузлы и библиотека.

На втором и третьем уровнях размещаются жилые комнаты и санузлы.

Из окон коттеджа открывается прекрасный вид на лес, по словам хозяев, и грибов, и ягод поблизости полно.

— Соседи, к слову, у нас тоже хорошие: рядом находится коттедж известного архитектора, напротив живет стоматолог, а на соседней улице дом именитого путешественника — все люди очень интересные и положительные, — отмечает хозяин дома.

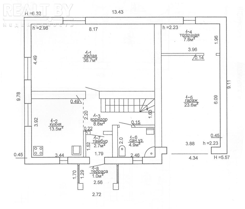
Планировки:

Площадь участка — 15,04 соток.

Общая площадь коттеджа — 411,5 кв. м (Жилая площадь — 179,7 кв. м).

Стоимость коттеджа — $ 299 тыс.

Цены на недвижимость в д. Волковичи

Средняя цена на дома в населенном пункте составляет $ 90 тыс. Стоимость коттеджей в деревне Волковичи варьируется от $ 100 тыс. до $ 999 тыс.

д. Невеличи

Деревня Невеличи находится в 23 км от МКАД. К населенному пункту ведет хорошая асфальтированная трасса, из Минска ходят маршрутные автобусы. Остановка общественного транспорта размещается прямо на въезде в поселок. В деревне есть продуктовый магазин.

— Места здесь очень живописные, всего в 250 метрах от выставленного на продажу коттеджа протекает речка, сама деревня окружена полями и лесами, — отмечает специалист вторичного рынка жилья АН «Твоя Столица» Наталья Гиро.

Коттедж в деревне Невеличи, выставленный на продажу, построен в 2008 году. Он расположен на самом краю населенного пункта, потому из окон открывается панорамный вид на близлежащую природу.

В здание вложено много средств и сил, все отделочные материалы высокого качества. Участок площадью в 20 соток огорожен капитальным забором, на территории организован декоративный газон, произрастают деревья и кусты, разбита площадка для беседки. К дому ведут хорошие подъездные пути.

Общая площадь дома — 197,3 кв.м. На ней разместились четыре изолированные комнаты, холл, кухня, два совмещенных санузла и пристроенный отапливаемый гараж.

Стены в коттедже выполнены из газосиликатных блоков, обшиты сайдингом. Кровля — металлочерепица, на окнах стеклопакеты ПВХ, покрытия пола — керамическая плитка с подогревом, ламинат. В дом введены все коммуникации: центральный газопровод, водоснабжение от индивидуальной скважины, местная канализация, установлен двухконтурный котел для автономного отопления и подогрева воды.

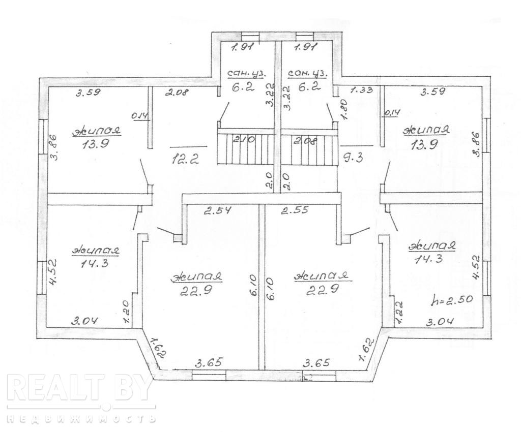
Планировки:

Площадь участка — 20,04 соток.

Общая площадь коттеджа — 197,3 кв. м (Жилая площадь — 103,4 кв. м).

Стоимость коттеджа — $ 195 тыс.

Цены на недвижимость в д. Невеличи

Цены на дома и коттеджи в деревне Невеличи варьируются от $ 55 тыс. до $ 203 тыс.

д. Криничное

Деревня Криничное находится приблизительно в 60 км от МКАД. К населенному пункту ведет хорошая асфальтированная трасса, последние несколько км — неплохая гравийка, которая зимой регулярно чистится от снега. Дорога до столицы занимает порядка 45 минут на автомобиле. Места здесь очень живописные — напротив выставленного на продажу коттеджа красуется березовая роща, прямо за домом бурлит Неман — оторвать глаз от местных пейзажей невозможно.

Продаваемый коттедж выполнен в стиле «шале» с пристроенной крытой террасой, которая подойдет как для стоянки автомобилей, так и для отдыха. Территория участка — декоративный газон. Придомовая площадка мощена тротуарной плиткой, по периметру реализовано капитальное ограждение.

Центральным акцентом в доме является просторный холл с бильярдом, камином и панорамным остеклением в сад. Живой огонь не только радует глаз, но и всего за два часа прогревает большое помещение. Кроме гостиной в доме организованы три изолированные жилые комнаты с собственными санузлами.

В коттедже оборудована русская баня с вместительным предбанником, душевой и лежанкой из гранита с подогревом.

Бассейн с системой фильтрации размещается в просторном помещении, две стены которого имеют панорамное остекление с видом на сад, оставшиеся украшает изысканная фреска.

— Все коммуникации: электричество, местная канализация и водопровод от индивидуальной скважины подведены. Отопление коттеджа производится за счет двухконтурного электрокотла, дополнительно в доме установлен электробойлер для подогрева воды, — поясняет специалист вторичного рынка жилья АН «Твоя Столица» Татьяна Бертош.

Планировки:

Площадь участка — 25 соток.

Общая площадь коттеджа — 206 кв. м.

Стоимость коттеджа — $ 287 тыс.

Цены на недвижимость в д. Криничное

Коттедж в деревне Криничное сегодня можно купить за $ 287 тыс. — $ 330 тыс.

Фотограф — Павел Садовский

Realt.by Недвижимость

Есть что сказать?
Читать:
Лента новостей
Опрос
Как вы считаете, покупать квартиру лучше сейчас или следует подождать?