Регистрация

Коттеджи за $ 158 тысяч, $ 550 тысяч и $ 1,4 млн в молодечненском направлении. Что сегодня продается возле Минска?

09.10.2014 6566

Мария Сорока, Мария Сорока

Realt.by продолжает цикл статей о недвижимости в пригороде Минска. В своих материалах мы рассматриваем существующие предложения на рынке жилья, берем только те коттеджи, которые сегодня выставлены на продажу. В этом нам помогают специалисты АН «Твоя Столица». Про недвижимость в Московском, Мядельском и Логойском направлениях мы уже писали, сегодня отправляемся в сторону Молодечно. Здесь в д. Селюты, аг. Ратомка и д. Ждановичи продается несколько коттеджей, которые заслуживают отдельного внимания.

д.п Мара

Дачный поселок с красивейшим названием Мара граничит с деревней Селюты. Находится населенный пункт в 10 км от Минска, в деревне есть свой магазин. К населенному пункту ведет хорошая асфальтированная дорога, главное, не пропустить нужный поворот. К слову, сразу за ним находится остановка общественного транспорта.

Объект, выставленный на продажу, документально оформлен как дача. Однако с первого взгляда становится ясно, что мы имеем дело с настоящим четырехуровневым коттеджем.

Дом находится буквально в 100 метрах от асфальтированной трассы, прямо у дороги, ведущей к деревне Селюты. Проезжая часть здесь чистится и зимой, и летом. Пока мы изучали объект, трактор ровнял дорожное покрытие, возможно, вскоре и здесь будет положен асфальт. Сразу за коттеджем простилается добротный лес, а с лицевой стороны здания открывается прекрасный вид на поле. Нельзя не сказать про красоту природы данной местности: в шаговой доступности находятся озеро, леса и поля. Чистый воздух, прекрасная экология и неимоверная красота подкупают с первого взгляда.

Экскурсию по объекту нам провела специалист вторичного рынка жилья АН «Твоя Столица» — Оксана Ясюченя.

— Дом утеплен, оштукатурен, покрашен, материал стен — газосиликатные блоки, кровля — металлочерепица. Продается объект под чистовую отделку. Потолки и стены идеально выровнены и прошпатлеваны. Обращает на себя особое внимание организация отопления этого коттеджа: в доме установлена уникальная геотермальная система отопления с дистанционным мобильным управлением. Поэтому, даже находясь в Минске, вы можете следить за состоянием температурного режима, включить и отключать отопление в доме. Во всех помещениях, к слову, установлены полы с подогревом. Сейчас ведется центральный газопровод, он появится уже к следующему году (оплачено 20% взносов). Также на территории участка имеются индивидуальная скважина и местная канализация.

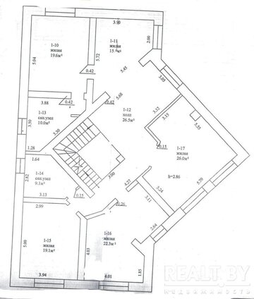
На первом этаже находятся спальня, кухня, объединенная с просторной гостиной, и ванная комната.

— Обратите внимание на качество отделочных работ — здесь попросту не к чему придраться. Как пояснила хозяйка дома — штукатуров и ремонтников она ждала целый год, специалисты оказались на вес золота, качество их работы вы можете оценить и сами, — отмечает специалист по операциям с недвижимостью.

На втором этаже расположены три спальни и санузел. Стена в одной из комнат представляет собой настоящее произведение искусств. Талантливая хозяйка сама придумала и нарисовала проект, мастера же воплотили идею в жизнь.

Из холла имеется выход на балкон. Погода очень солнечная, но благодаря тонированным стеклам на окнах, солнце не слепит. С балкона, как уже говорилось выше, открывается чудесный вид на близлежащие красоты.

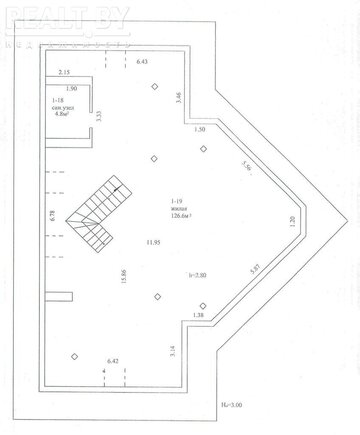
Мансардный этаж представляет собой просторную жилую комнату, отделанную под дерево.

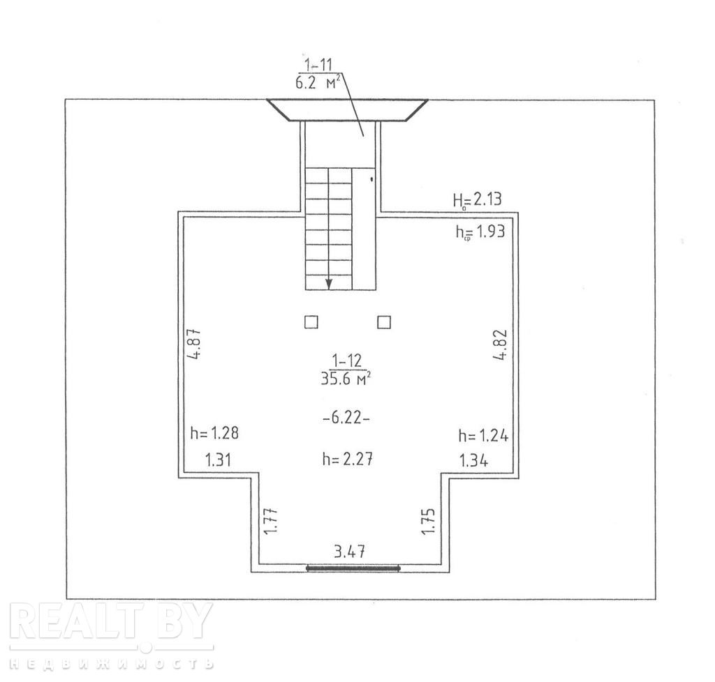
Вход на цокольный этаж организован с улицы. В помещении находится вся отопительная система. Просторная площадь хорошо подойдет под реализацию мастерской, кладовки или чего-либо другого.

Площадь участка — 7,8 соток.

Общая площадь коттеджа —287 кв.м. (Жилая площадь — 82,3 кв. м).

Стоимость коттеджа — $ 158 тысяч.

аг. Ратомка

Агрогородок Ратомка находится в 10 км от столицы. Посёлок окружает живописная местность — леса, поля, Заславское водохранилище и речка Ратомка. Регулярно в населённый пункт ходят автобусы и электрички из Минска. Пригородные поезда останавливаются на станции Ратомка. Здесь хорошо развита инфраструктура: есть школы, отделение связи и банка, магазины, аптека, больница и Свято-Николаевская церковь. Настоящей визитной карточкой населенного пункта является Республиканский центр по конному спорту и коневодству.

Выставленный на продажу 2-уровневый коттедж находится в поселке Новая Ратомка всего в 10 км от МКАД. Сейчас в населенном пункте ведется активное строительство, поэтому подъездные пути пока сложные, однако, вскоре, по мнению местных жителей, дорогу должны сделать. Напротив коттеджа размещается лес, площадь самого участка 15 соток.

Территория участка ограждена забором из деревянных пролетов и столбов из клинкерного кирпича. Хозяева облагородили территорию и вдоль ограждения — газончик подкошен, высажены хвойные деревья. Первое, что встречает нас — это откатные автоматические въездные ворота с элементами ковки. Сразу за ними размещается пристроенный к дому гараж на два автомобиля с роллетными воротами.

Коттедж строился для собственного использования, поэтому здесь все сделано с любовью и из самых надежных материалов, — отмечает специалист вторичного рынка жилья АН «Твоя Столица» Татьяна Мигай. Материал стен блок, утеплитель Paroc, штукатурка по сетке и краска Caparol, кровля мягкая черепица Iko, сантехника Catalano, окна 5-камерные ламинированные стеклопакеты с металлическими шпросами. Теплые полы в санузлах и на первом этаже. В отделке использована лишь итальянская и испанская плитка. Сантехкерамика Hansa. Стиральная машина, индукционная плита, посудомоечная машина производства Electrolux. Два встроенных холодильника от компании Bosch. Микроволновая печь — AEG.

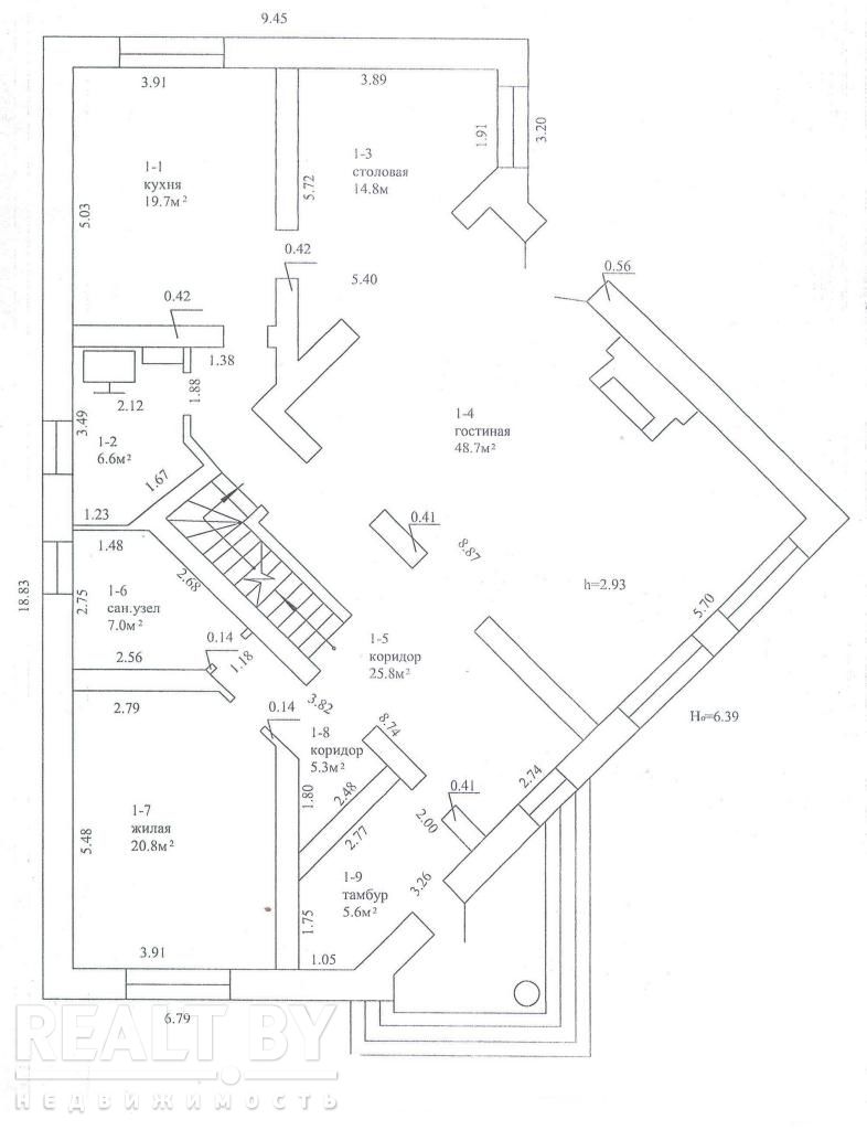
На первом этаже размещаются кабинет, гостевая комната, санузел, кладовка, кухня и просторная гостиная.

Дизайн интерьера выполнен в восточном стиле — много света, минимализм в деталях, каждый элемент в доме продуман хозяевами досконально.

— С рабочей зоны на кухне открывается вид на двор и игровую площадку, так хозяйка, занимаясь своими делами, имеет возможность присматривать за детьми.

К слову, выход на террасу организован с противоположной стороны дома, здесь установлен подиум из красного дерева. Участок же представляет собой аккуратный газон и декоративные насаждения, на его территории находится сруб для бани.

Второй этаж занимают спальня с гардеробной, ванная комната и две детские.

Площадь участка — 15 соток.

Общая площадь коттеджа —252 кв.м. (Жилая площадь — 116 кв. м).

Стоимость коттеджа — $ 550 тыс.

Цены на недвижимость в аг. Ратомка

Средняя цена на земельные участки в населенном пункте варьируется от $ 14 тыс. до $ 90 тыс. Коттедж в Ратомке можно приобрести за $ 150 тыс. $ 600 тыс.

д. Ждановичи

Деревня Ждановичи — один из самых престижных пригородов Минска, населенный пункт буквально граничит со столицей, находится всего в 500 метрах от МКАД. В деревне хорошо развита инфраструктура: есть школа, детский сад, отделение банка, несколько санаториев и развлекательных заведений, недалеко от посёлка находится рынок «Ждановичи «и пляжи водохранилища Крыница.

Здесь продается добротный коттедж для большой семьи. Площадь участка — 20,4 соток.

— Выбирая участок под строительство дома, я специально искал территорию неправильной формы, ведь это прекрасная возможность для ландшафтного дизайна, полета фантазий и воплощения самых смелых идей, — рассказывает хозяин дома. — Вдоль дороги у нас организована парковка для автомобилей, высажена целая аллея деревьев благородных пород здесь есть и дуб, и ива, и многое другое. На участке также есть места для парковки, растут хвойные деревья, все дорожки подсвечиваются декоративными фонарями.

На заднем дворике размещается беседка с барбекю и обеденной группой:

— Начиная с ранней весны и до глубокой осени, мы собираемся семьей только здесь. Мероприятия, праздники, даже простой обед на природе всегда вкуснее и интереснее, поясняет хозяин дома.

На четырех уровнях коттеджа размещаются 8 жилых комнат. Дорогостоящая отделка, эксклюзивный интерьер, смешение стилей и форм радует глаз. Однако наибольшего внимания заслуживает мансардный этаж — он представляет собой одну просторную жилую комнату, где пространство организовано и под спальное место, и под кабинет, и под гостиную.

На цокольном этаже находятся сауна с бассейном, зона отдыха, игровая комната и вспомогательные помещения. Все центральные коммуникации введены в дом.

Площадь участка — 20,4 соток.

Общая площадь коттеджа —582 кв.м. (Жилая площадь — 298 кв. м).

Стоимость коттеджа — $ 1,4 млн.

Цены на недвижимость в д. Ждановичи

Цены на земельные участки в деревне Ждановичи стартуют от $ 40 тыс. и достигают $ 350 тыс. Стоимость коттеджей варьируется от $ 150 тыс. до $ 1,5 млн.

Фотограф Павел Садовский

Realt.by Недвижимость

Есть что сказать?
Читать:
Лента новостей
Опрос
Как вы считаете, покупать квартиру лучше сейчас или следует подождать?