Регистрация

Жизнь в пригороде. Поездка с агентом по логойскому и мядельскому направлениям

29.09.2014 5 5834

Мария Сорока, Мария Сорока

Природа, хорошая экология, тишина — так и хочется порой вырваться за город из шумного мегаполиса. Не секрет, что купить дом мечта многих минчан, однако, предпочтение у всех разные, кто-то желает иметь усадьбу на хуторе, чтобы ни души не было поблизости, другим важна хорошая транспортная доступность, наличие леса или водоема. Мы решили проехать по всем восьми направлениям и посмотреть, какие объекты и за какую цену сегодня выставлены на продажу. В этом нам согласились помочь специалисты АН «Твоя Столица». Про недвижимость в московском направлении мы уже писали, сегодня отправимся в сторону Логойска и Мяделя.

д. Семково

— Населенный пункт располагается всего в 10 км от МКАД и в 1,5 км от Минского моря. Сегодня он является одним из самых престижных пригородов Минска, — рассказывает специалист вторичного рынка жилья АН «Твоя Столица» Алена Диковицкая. — Рядом с деревней находится санаторий «Приморский», а в границах Семково база отдыха «Сябры», где всегда можно порыбачить и отдохнуть с семьей. В деревне также есть магазин, а остановка общественного транспорта находится недалеко от коттеджа, выставленного на продажу. С Минском обеспечено хорошее транспортное сообщение на автомобиле дорога от города не займет и более 10 минут, что касается общественного транспорта, то маршрутки и автобусы ходят регулярно. К деревне можно доехать как со стороны мядельской трассы, так и со стороны аг. Ждановичи.

В д. Семково на продажу выставлен 4-этажный коттедж. Вместе с агентом мы прогулялись по объекту недвижимости. К коттеджу ведет асфальтированная дорога, большинство домов рядом жилые, напротив ведется строительство еще одного дома. В выставленном на продажу коттедже давно никто не живет, потому территория участка несколько заросла.

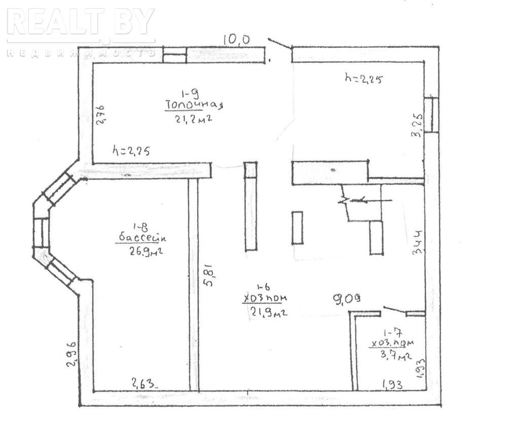
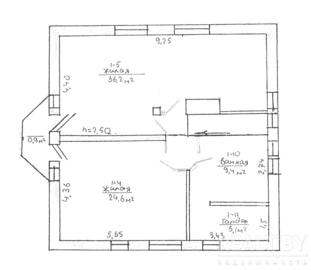
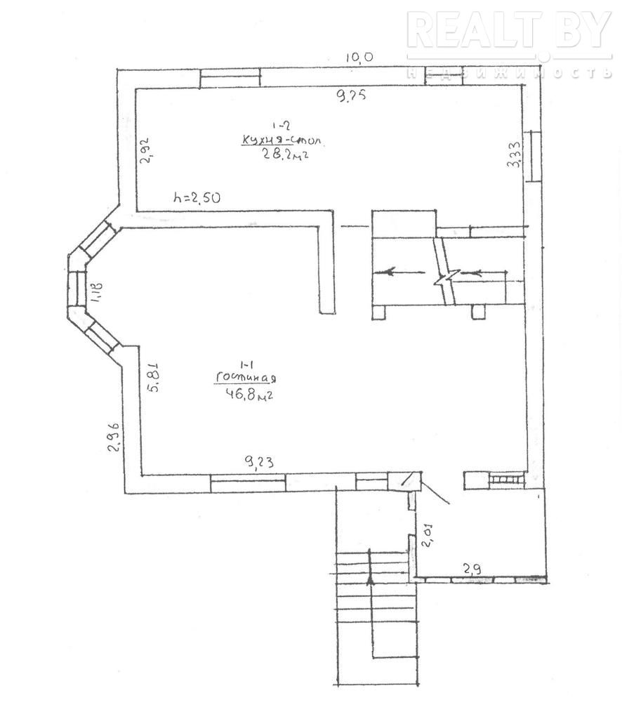
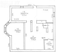
Цокольный этаж занимают три отдельных помещения. На первом этаже расположены кухня, прихожая, кладовка, санузел, ванная и одна большая жилая комната.

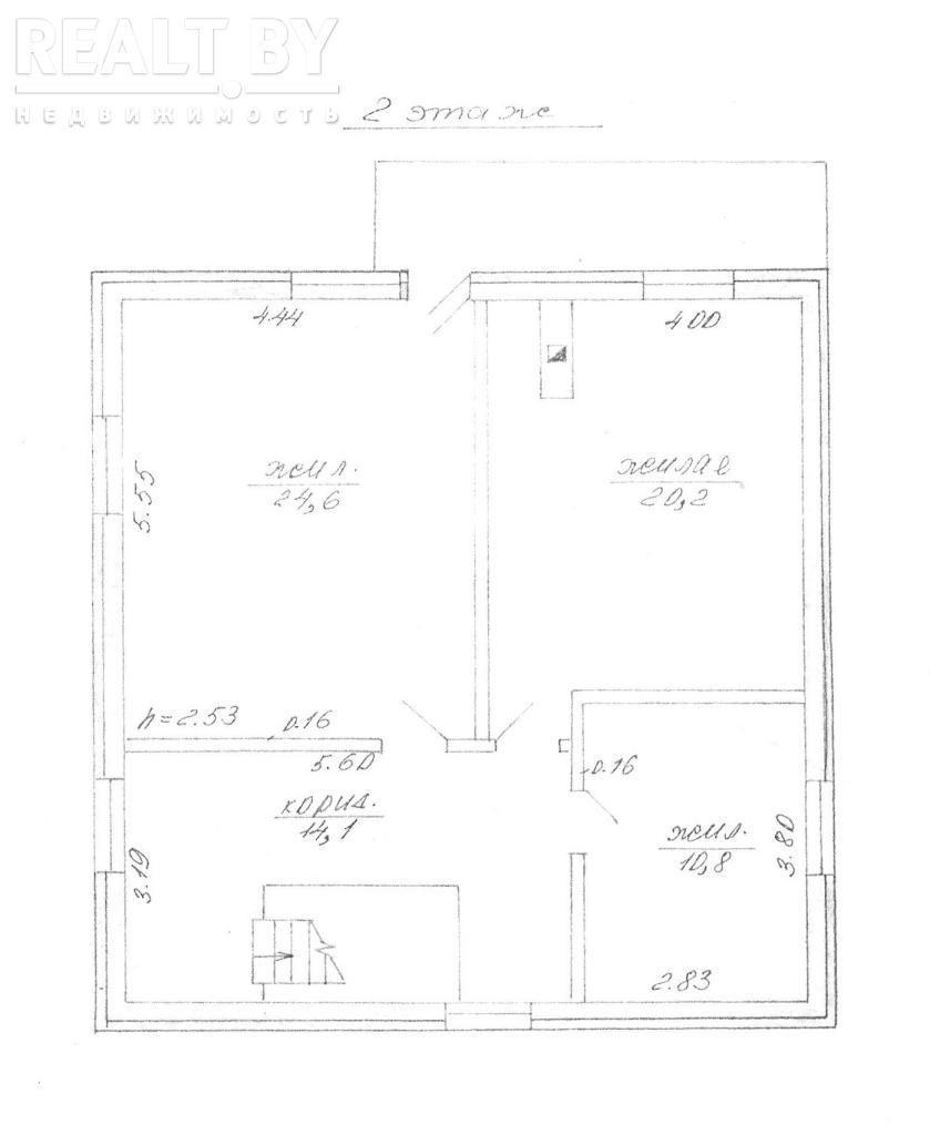
На второй этаж ведет лестница, там находятся три спальни.

Мансардный этаж пока не жилой.

—Коттедж, конечно, требует ремонта и некоторых вложений в доме протекает крыша, недоделаны работы на мансардном этаже, да и в комнатах в последний раз ремонт осуществлялся уже лет 10 назад. Однако переехать жить можно хоть сейчас, так как подключены все центральные коммуникации газ, горячая и холодная вода, электричество, есть кухня и необходимая мебель. Для сравнения, совсем недавно мы продавали участок в Семково, без коммуникаций его взяли за $ 45 тысяч, поэтому цену в $ 135 тысяч за 4-этажный коттедж со всеми коммуникациями, отделкой и мебелью, я считаю более чем умеренной, — отмечает Алена Диковицкая.

Площадь участка — 10 соток.

Общая площадь коттеджа —245,9 кв.м. (Жилая площадь 82,3 кв. м).

Стоимость коттеджа — $ 135 тысяч.

Цены на недвижимость в д. Семково

Стоимость земельных участков в населенном пункте варьируется от $ 30 до $ 100 тысяч. Дома стоят в среднем $ 150200 тысяч. Цена на коттеджи стартует от $ 100 тысяч и достигает $ 750 тысяч.

д. Дроздово

Экскурсию по коттеджу в деревне Дроздово нам провела Маргарита Кондратьева специалист вторичного рынка жилья АН «Твоя столица».

Деревня Дроздово располагается в 1,5 км от МКАД в логойском направление, недалеко от гипермаркета BIGZZ. К населенному пункту ведет хорошая асфальтированная дорога, регулярно ходит автобус и маршрутка из Минска. В Дроздово есть магазин, но все жители, скорее всего, делают покупки в гипермаркете и на рынке «Экспобел», до которых отсюда рукой подать. Деревня разделена на две части — застройка старого Дроздово представлена обычными жилыми домами, новое Дроздово — престижный коттеджный поселок. Недавно в деревне открылась новая детская площадка, ранее планировалось строительство детского садика, но проект пока не реализован.

Коттедж, выставленный на продажу, размещается на приватизированном участке площадью в 16 соток в самом центре деревни. Участок угловой, поэтому к нему можно подъехать с двух сторон. Строительство коттеджа началось в 2004 году. Он выполнен из газосиликатных блоков, оштукатурен, окрашен, произведена современная отделка, окна стеклопакеты ПВХ, — поясняет Маргарита Кондратьева.

Коттедж 3-уровневый. На цокольном этаже по проекту должна быть комната отдыха с отдельным выходом на улицу.

Первый этаж занимают большой холл-гостиная и просторная кухня, также имеется отдельный выход на улицу.

На втором этаже размещены три спальни и санузел.

К основному зданию пристроен также и двухуровневый гостевой домик площадью в 70 «квадратов». Сегодня там произведена лишь внешняя отделка — здание утеплено, оштукатурено, вставлены окна и смонтирована крыша.

— Гостевой домик, конечно, нуждается во внутренней отделке. А вот основной дом полностью готов для проживания, здесь, на усмотрение будущих хозяев, можно будет сделать лишь косметический ремонт. К дому проведены все коммуникации отопление, канализация, вода, центральный газопровод. В коттедже есть два камина — французский и открытый, кухня и вся необходимая мебель, — поясняет специалист по операциям с недвижимостью. — Место здесь очень хорошее находится деревня совсем недалеко от Минска, но воздух чистый, рядом есть водоем и лесной массив.

Площадь участка — 16,3 соток.

Общая площадь строения —314 кв.м. (Жилая площадь 160 кв. м).

Стоимость коттеджа — $ 280 тысяч.

Цены на недвижимость в д. Дроздово

Земельные участки в деревне стоят от $ 60 до $ 100 тысяч. Цены на дома варьируются в размере от $ 240 до $ 680 тысяч. В базе Realt.by сегодня есть предложения коттеджей от $ 250 до $ 600 тысяч.

Фотограф — Феликс Сиваков

Realt.by Недвижимость

Есть что сказать?
Читать:
Лента новостей
Опрос
Как вы считаете, покупать квартиру лучше сейчас или следует подождать?