Регистрация

Новостройки Фрунзенского района: характеристики, цены, фото. Часть 2

19.08.2014 10825

Мария Сорока, Мария Сорока

Сегодня Минск активно застраивается — уплотняются дворы, появляются новые районы, по всей столице виднеются строительные краны и слышны молотки рабочих. Realt.by продолжает серию публикаций о новостройках Минска. В статьях собрана вся необходимая информация о строящихся объектах — основные характеристики, цены, а главное фотографии, показывающие реальный этап строительства. Мы уже начали обзор новостроек Фрунзенского района, и сегодня расскажем об объектах, не попавших в первую часть.

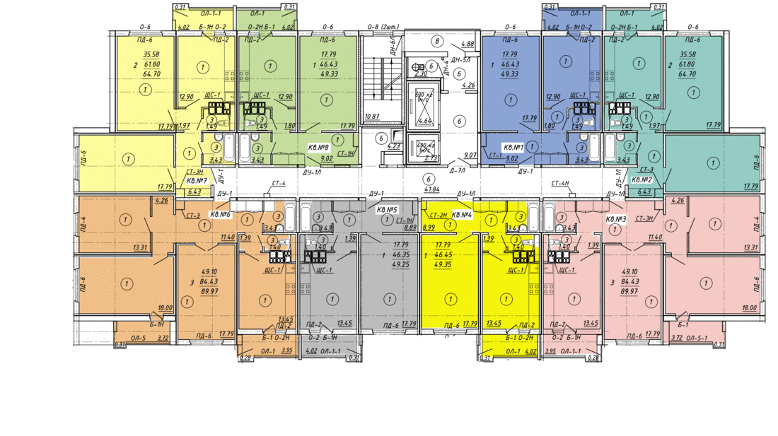
Миниполис «Каскад»

Миниполис «Каскад» размещается всего в 5 минутах ходьбы от станции метро «Молодежная». Жилой сектор представлен домами этажностью от 9 до 25 этажей с квартирами свободных планировок, также здесь запроектированы отдельностоящие паркинги и детский садик. Застройщик миниполиса «Каскад» — ООО «Юнивест-М».

Четыре новостройки уже сданы и заселяются жильцами, дом № 5 вводится в эксплуатацию, ведется строительство последнего жилого дома № 6. Всего в строящимся доме будет 303 квартиры: 134 однокомнатные, 73 двухкомнатные, 63 трехкомнатные, 25 четырехкомнатных и 8 пятикомнатных.

Начало строительства жилого дома № 6: 1 квартал 2014 года.

Окончание строительства: 2 квартал 2017 года.

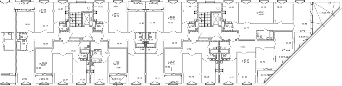
Планировки:

Цены на квартиры:

Цены на квартиры в миниполисе «Каскад» стартуют с $ 1440 за квадратный метр. Первоначальный взнос составляет 20%. Покупатели имеют возможность вступить в долевое строительство или купить готовое жилье в рассрочку до конца 2018 года. По каждому из типов квартир предлагается более 15 различных вариантов предоставления рассрочки (в зависимости от периода рассрочки и размера первоначального взноса). Варианты рассрочки просчитываются индивидуально для каждого покупателя.

Стоимость квартир в домах № 2,3,4 составляет $ 1510—$ 1750 за квадратный метр.

В доме № 2 осталось несколько квартир:

· 2-комнатные квартиры — от 75 до 78,4 кв.м.;

· 3-комнатные квартиры — от 99 до 125 кв.м.

В доме № 3 (секция «Г») можно купить:

· 2-комнатные квартиры — от 63 до 78,4 кв.м.;

· 3-комнатные квартиры — от 95 до 128 кв.м.

В доме № 4 к приобретению предлагаются:

· 1-комнатные квартиры — от 53 до 55,5 кв.м.;

· 2-комнатные квартиры — от 74 до 77 кв.м.;

· 3-комнатные квартиры — от 101 до 110 кв.м.

В доме № 5 (секция «В») квадратный метр при 100% оплате стоит $ 1440—$ 1700, с рассрочкой — $ 1490 — $ 1750.

Сегодня в доме свободны следующие квартиры:

· 1-комнатные квартиры — от 53 до 55,5 кв.м.;

· 2-комнатные квартиры — от 74 до 77 кв.м.;

· 3-комнатные квартира — от 101 до 110 кв.м.;

· 4-комнатные — от 113,2 до 114,6 кв.м.

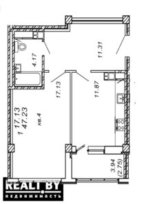
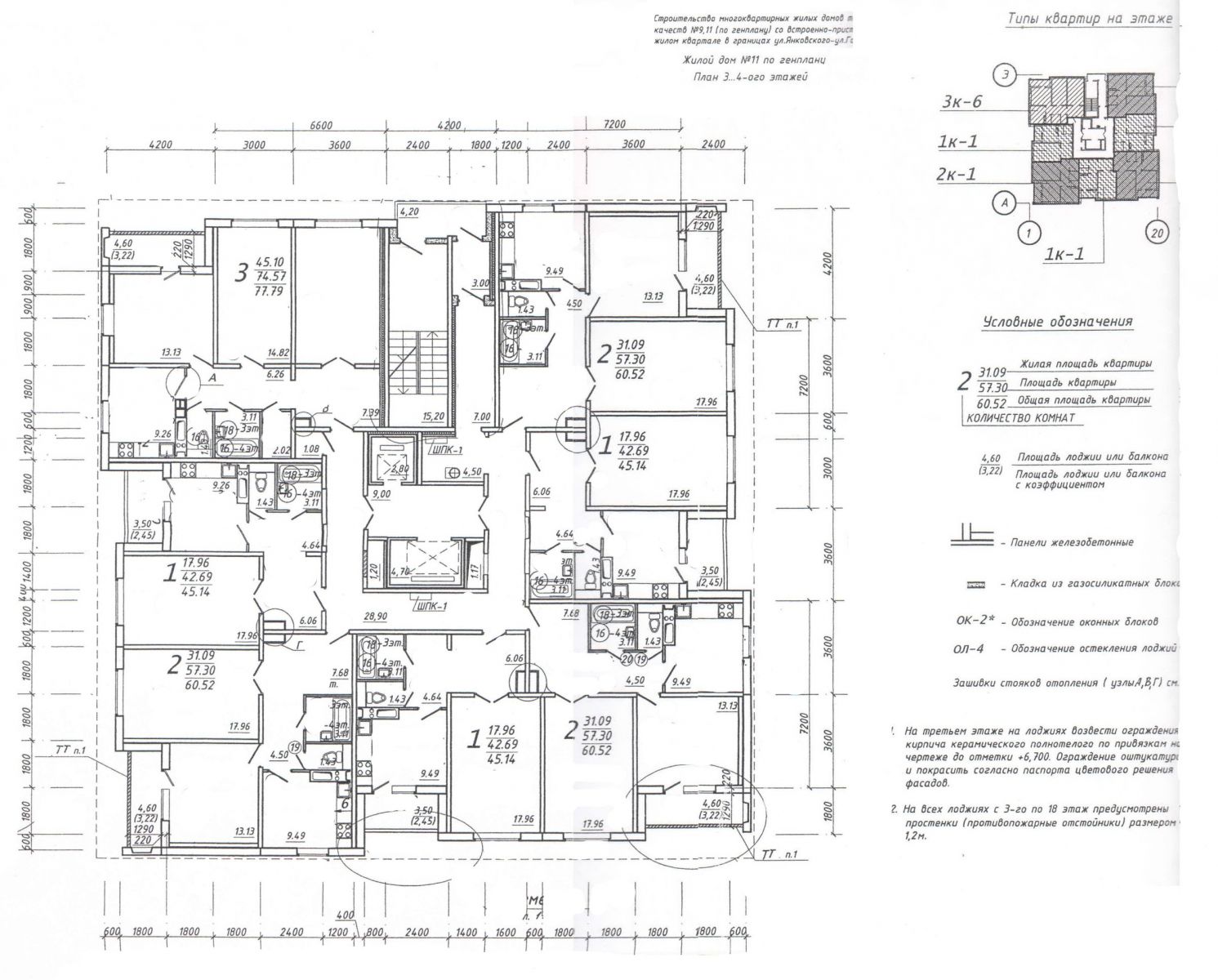
«Сухаревский квартал»

«Сухаревский квартал» — это группа многоквартирных жилых домов по генплану № 11, 12, 13 в микрорайоне № 1 реконструируемой застройки в границах улиц Шаранговича, Горецкого, Рафиева (бывшая деревня Сухарево). Генеральный подрядчик застройки —ООО «МАПИД».

Планировки и цены на квартиры:

Цены на квартиры в ЖК «Сухаревский квартал» варьируются от Br 12 800 000 до Br 14 350 000 за квадратный метр.

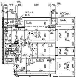
Жилой дом № 11 панельный, одноподъездный, 19-этажный.

· 1-комнатные квартиры— от 44,96 до 45,16 кв.м.

· 2-комнатные квартиры — от 60,57 до 68,19 кв.м.

· 3-комнатные квартиры — от 78,06 до 85,68 кв.м.

Начало строительства: 4-й квартал 2013 года.

Сдача в эксплуатацию: 1-й квартал 2015 года.

Жилые дома № 12 (1) и № 12 (2) панельные, одноподъездные, 16-этажные.

· 3-комнатные квартиры — 90 кв.м.

· 2-комнатные квартиры — 64,7 кв.м.

· 1-комнатные квартиры — 49,3 кв.м.

Стоимость квадратного метра от 1070 у.е..

Жилой дом № 13 панельный, 10-секционный, 10-этажный.

Начало строительства: июнь 2013

Сдача в эксплуатацию: 4-й квартал 2014

Стоимость 1 кв.м.:

· 1-комн. квартира — от 15 млн руб.

· 2-комн. квартира 13,5 млн руб.

· 3-комн. квартира 13 млн руб.

Жилой дом № 2 (по генплану) в границах улиц Шаранговича, Горецкого, Рафиева

19-этажный монолитный односекционный жилой дом. Материал наружных стен — блоки ячеистого бетона с утеплением. Заказчик проекта — КУП «УКС Фрунзенского района» г. Минска, генподрядчик — «СУ-1 БЕЛБУД».

Начало строительства: октябрь 2013 года.

Сдача в эксплуатацию: ноябрь 2014 года.

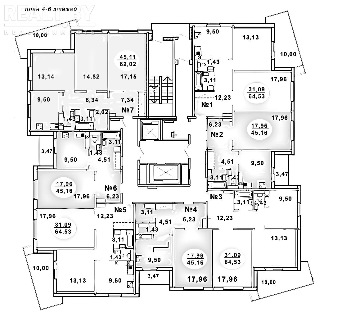
Планировки:

Цены на недвижимость:

Квадратный метр стоит Br 13 383 000. Первоначальный взнос — 25%, рассрочка рассчитана до ноября 2014 года.

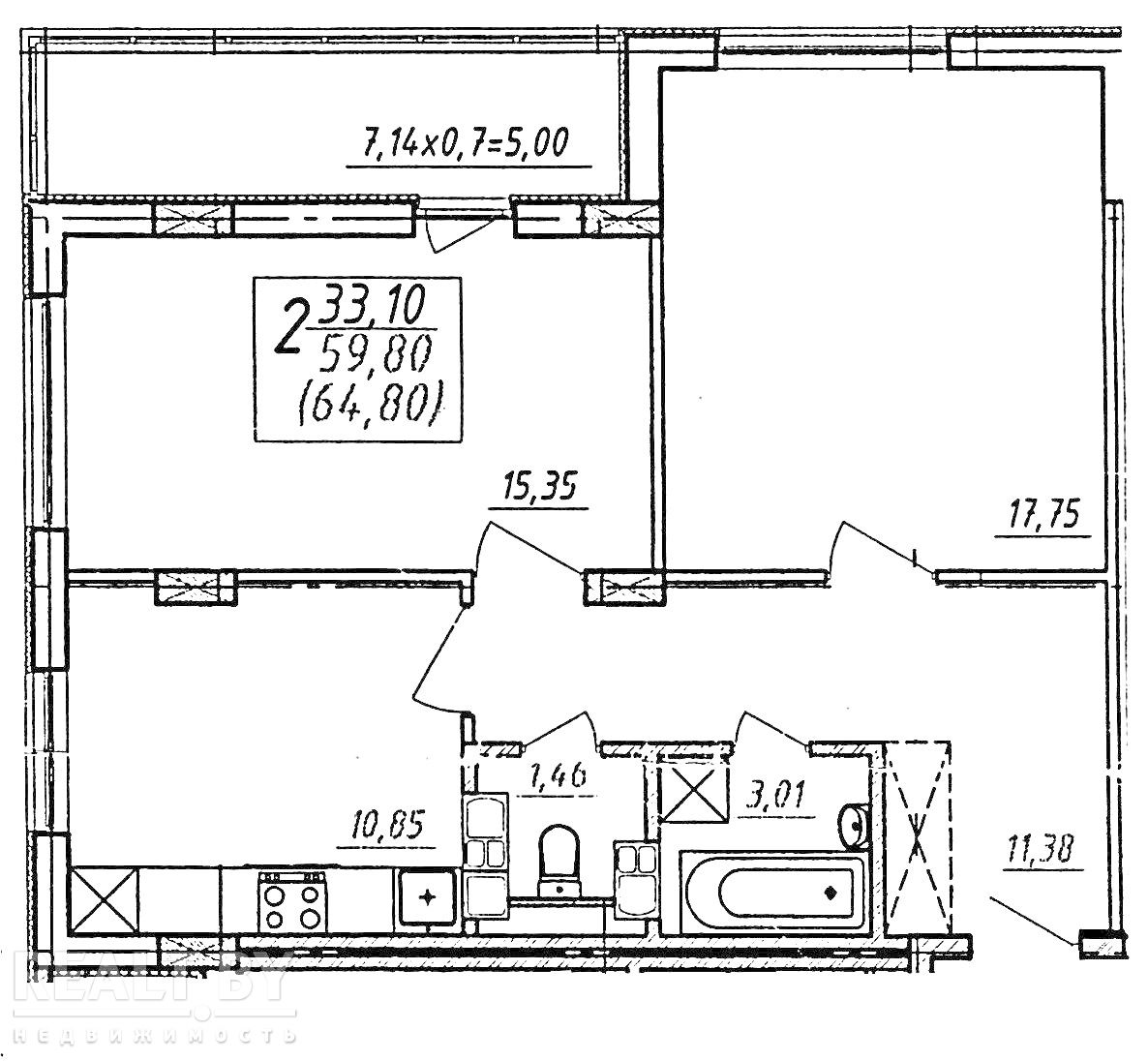
16-этажный жилой дом по г/п № 12 в границах ул. Шаранговича, Горецкого, Рафиева

В жилом доме запроектирована 111 квартир, среди которых 47 однокомнатных, 32 двухкомнатные и 32 трехкомнатные. Все квартиры с раздельными санузлами, остекленным балконом или лоджией. Жилые этажи связаны незадымляемой лестницей и двумя пассажирскими лифтами грузоподъемностью 400 кг и 630 кг.

Наружная отделка: окна — пластиковые двухкамерные стеклопакеты, входные двери в квартиры — металлические. Квартиры сдаются без внутренней отделки.

Начало строительства — ноябрь 2013 г.

Окончание строительства — май 2015 года.

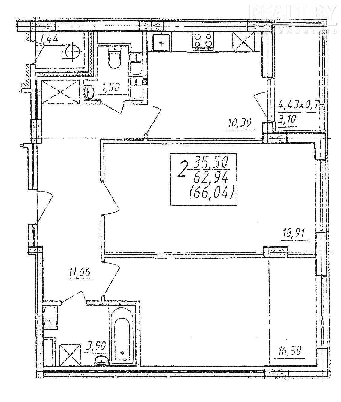
Планировки:

Цена на недвижимость:

Стоимость квадратного метра варьируется от $ 1400 до $ 1550. Размер первоначального взноса — 30%. Оплата первоначального взноса производится в течение 7 рабочих дней с момента регистрации договора в Мингорисполкоме, 70% от стоимости выплачиваются ежемесячно в срок до апреля 2015 г.

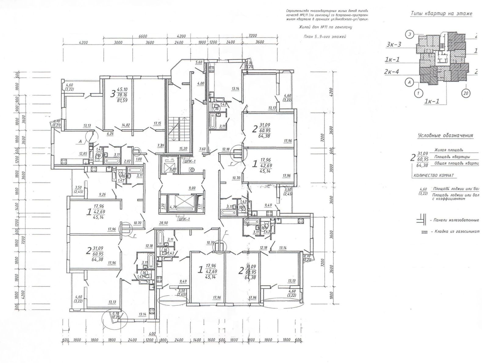
Жилой дом № 11 по генплану в границах ул. Янковского — ул. Горецкого — ул. Проектируемой

18-этажный жилой дом сдается в эксплуатацию с отделкой. Застройщик — ГПО «Минскстрой». Генподрядчик — ООО «МАПИД».

Начало строительства: июнь 2013 года.

Окончание строительства: сентябрь 2014 года.

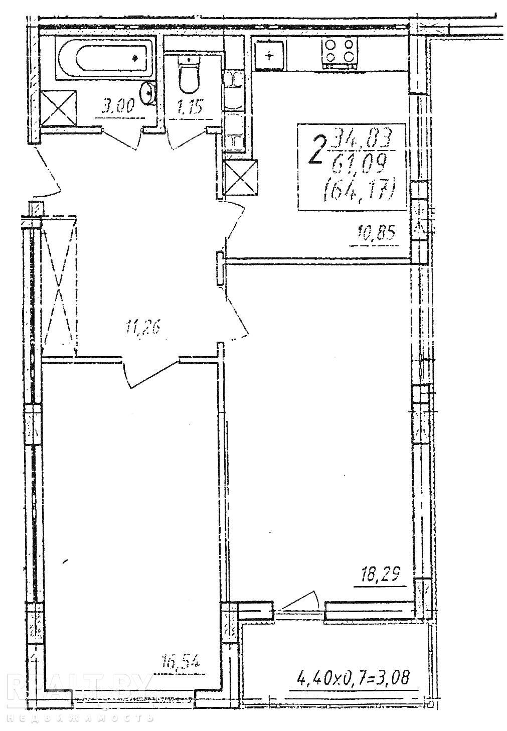
Планировки:

Цены на недвижимость:

Стоимость квадратного метра в однокомнатных квартирах составляет $ 1500, в двухкомнатных — $ 1300. При 100% оплате действует скидка в $ 50 за каждый квадратный метр.

Арендный жилой многоквартирный дом в районе улиц Тимошенко и Шаранговича

Заказчик КУП «УКС администрации Фрунзенского района». Застройщик ОАО «Минский домостроительный комбинат».

Начало строительства: ноябрь 2013 года.

Окончание строительства: 4-ый квартал 2014 года.

Realt.by Недвижимость

Есть что сказать?
Читать:
Лента новостей
Опрос
Как вы считаете, покупать квартиру лучше сейчас или следует подождать?