Регистрация

Заброшенный детский сад в центре Минска превратился в площадку для детей. Битое стекло и ржавые гвозди — привычные игрушки для малышей

02.07.2013 2 7580

Мария Сорока, Мария Сорока

Недалеко от станции метро «Парк Челюскинцев», прямо во дворе жилых домов разместился опасный по всем статьям объект. Казалось бы, доступ на территорию заброшенного здания должен быть закрыт во избежание чрезвычайный происшествий. Однако нет, интернет так и пестрит яркими фотографиями и страшными историями, связанными с этим садиком. Сегодня решается судьба объекта — с 28 июня по 12 июля проходит общественное обсуждение по поводу реконструкции здания. В связи с этим журналист портала Realt.by Мария Сорока отправилась на Калинина, 26а, чтобы оценить всю ситуацию лично.

Не скрою, что некоторое волнение появилось ещё на подходе к зданию — от заросшего зеленью объекта доносился лай собак, крики и грохот. «Чёрт дёрнул меня сюда сунуться!» — думала я про себя. Оказалось, что дворовая территория детского сада используется для выгула собак. В основном здесь тренировались немецкие овчарки. Без намордников, конечно, но под бдительным присмотром хозяев.

Об изоляции объекта говорить не приходится. Территория не то что не охраняется, отсутствует даже видимая защита — забор. От заброшенного детского сада до многоэтажек рукой подать. Похоже поэтому здесь так людно. Из комнат доносятся крики детей — они дерутся на деревянных мечах. На крыше молодёжь выясняет отношения. На лестнице отдыхает компания постарше. Место, видимо, уже обжитое. Ребята нисколько не стесняются — пьют, громко ругаются и курят, видно правоохранительные органы сюда совсем не заглядывают…

Говорят, что раньше здесь жили бомжи. Однако мной они замечены не были. Скорее всего, дети оказались напористее. Вокруг здание обросло непролазным кустарником. На стенах следы проявления творчества молодёжи. Внутри всё гораздо печальнее.

Передвигаться по коридорам и помещениям бывшего детсада трудно и, как по мне, очень опасно. Вокруг битое стекло, ржавые гвозди, дыры в полу, полуразрушенные стены и лестничные пролёты. Однако малышам всё нипочём. Они носятся туда-обратно без страха упасть или пораниться, заглядывают в ямы, пролазят в щели в стенах, им всё интересно. Оно и верно - в детстве, как правило, не заботят такие мелочи, как ушибы. Но вот увидели бы это родители! Вряд ли оставили бы парнишек без наказания. Оттого ребята и попросили: «Только не снимайте лица, а то мамка будет ругать!». Лица, как и обещала, не показываю, но надеюсь, что в каждом ребёнке мамы узнают своего сына и постараются заинтересовать куда более безопасным увлечением.

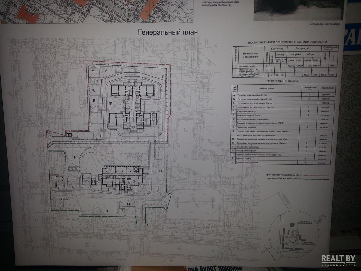
Вот что творится здесь сегодня. А что же планируется поменять? Экспозиция проекта располагается на Калинина, 19, в здании расчетно-справочного центра № 3 КУП «ЖЭУ-6, 19, 33 и 71». Ежедневно кроме воскресенья с 8.00 до 20.00 каждый может ознакомиться с проектом, оставив свои замечания или предложения. К слову, пока обе книги пустуют.

Сама экспозиция размещается в углу помещения. Проекты имеют названия «Реконструкция части здания по ул. Калинина, 26а для размещения детского сада до 120 мест» и «Многоквартирный жилой дом со встроенными помещениями и гаражом-стоянкой».

Вот и подвох: на карте места хватает всем, но в действительности места для многоэтажки, прямо скажем, немного. Однако вряд ли кто-то стал бы заниматься реконструкцией садика просто так, да и участок уж больно лакомый… Скорее всего строительство жилого дома вызовет негатив со стороны местных жителей, но, кто знает какая из бед здесь большая — уплотнение района или «заброшка» во дворе…

Пару лет назад похожая история была связана с заброшенным детсадом по улице Мирошниченко. Правда, там никто не планировал реконструкцию. На месте заброшенного дошкольного учреждения должно было появиться офисное здание. Этот факт возмутил население, мамы выступили против. Ведь до ближайшего садика нужно ехать три остановки на общественном транспорте. Мы решили проверить, как сегодня выглядит этот объект.

Прошло уже несколько лет, но здание по-прежнему пустует. Некоторые окна застеклены, другие так и остались сквозными дырами в стене. О заброшенности объекта говорит и бурьян, сквозь который и здание то не везде видно.

Однако два замка на воротах намекают на то, что стройка всё же охраняется. Местная жительница нам пояснила, что с недавних пор в здании появился сторож. Объект обнесён забором, но как говорится, кто ищет, тот всегда найдёт.

Узнать, что же сегодня здесь строится, нам так и не удалось: паспорта объекта нет, сторож так и не откликнулся на наш зов, а жители разводят руками: «Ничего здесь не происходит! Хотелось бы сад для малышей, но увы. Вот у нас тут и школа рядом и лес, Цнянка в двух шагах — всё хорошо. Только детского сада и не хватает».

Что же случится с заброшенным детсадом на Калинина, предугадать сложно. Но в судьбе объекта может поучаствовать каждый. Напоминаем, что экспозиция проекта размещена по адресу ул. Калинина, 19. Свои замечания и предложения можно оставлять там или направлять по адресу: пер. К. Чорного, 5, каб. 306, 308 (с пометкой «Общественное обсуждение», тел. 280−21−49, 280−45−41), а также на электронный адрес: perv.arhit@minsk.gov.by до 22 июля 2013 года.

Realt.by Недвижимость

Есть что сказать?
Читать:
Лента новостей
Опрос
Как вы считаете, покупать квартиру лучше сейчас или следует подождать?