Проект односемейного дома с жилой мансардой "ZD-07" площадью 174 кв.м.
Компания: Загородный дом Проект
Адрес: ул. Якуба Коласа, д.37 (ТРЦ "Айсберг")
Контакты: т/ф: (017) 296-63-63, моб: 8 (029) 1-977-977, 8 (029) 7700-900
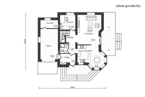
| Используемых уровней | 2 этажа |
| Площадь застройки | 171 кв.м. |
| Площадь общая | 174 кв.м. |
| Площадь жилая | 94 кв.м. |
| Минимальная ширина участка | 19 м. |
| Минимальная длина участка | 21 м. |
| Строительный объем здания (кубатура) | 726 м3 |
| Минимальная высота здания | 7.7 м. |
| Площадь крыши | 240 кв.м. |
| Уклон крыши | 40 град. |
| Стены | газосиликатный блок 500 мм |
| Перекрытия | сборные ж/б плиты |
| Крыша | двускатная |
| Гараж | на 1 автомобиль |







