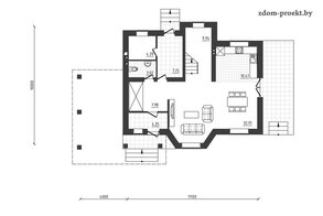
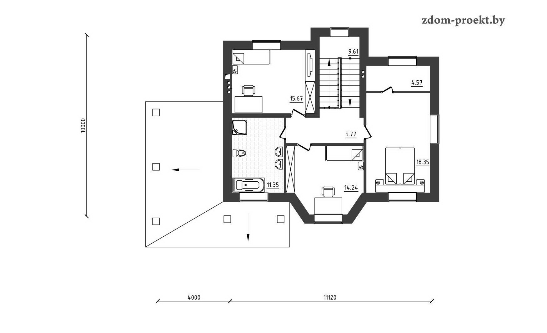
Проект односемейного двухэтажного дома "ZD-01" площадью 178 кв.м.
Компания: Загородный дом Проект
Адрес: ул. Якуба Коласа, д.37 (ТРЦ "Айсберг")
Контакты: т/ф: (017) 296-63-63, моб: 8 (029) 1-977-977, 8 (029) 7700-900
| Используемых уровней | 2 этажа |
| Площадь застройки | 198 кв.м. |
| Площадь общая | 178 кв.м. |
| Площадь жилая | 92 кв.м. |
| Минимальная ширина участка | 16 м. |
| Минимальная длина участка | 22 м. |
| Строительный объем здания (кубатура) | 936 м3 |
| Минимальная высота здания | 7.8 м. |
| Площадь крыши | 220 кв.м. |
| Уклон крыши | 28 град. |
| Стены | керамзитобетонный или газосиликатный блок 500 мм |
| Перекрытия | сборные ж/б плиты |
| Крыша | односкатная |
| Гараж | навес на 1 автомобиль |








